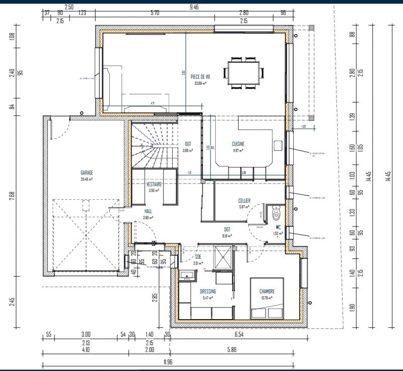
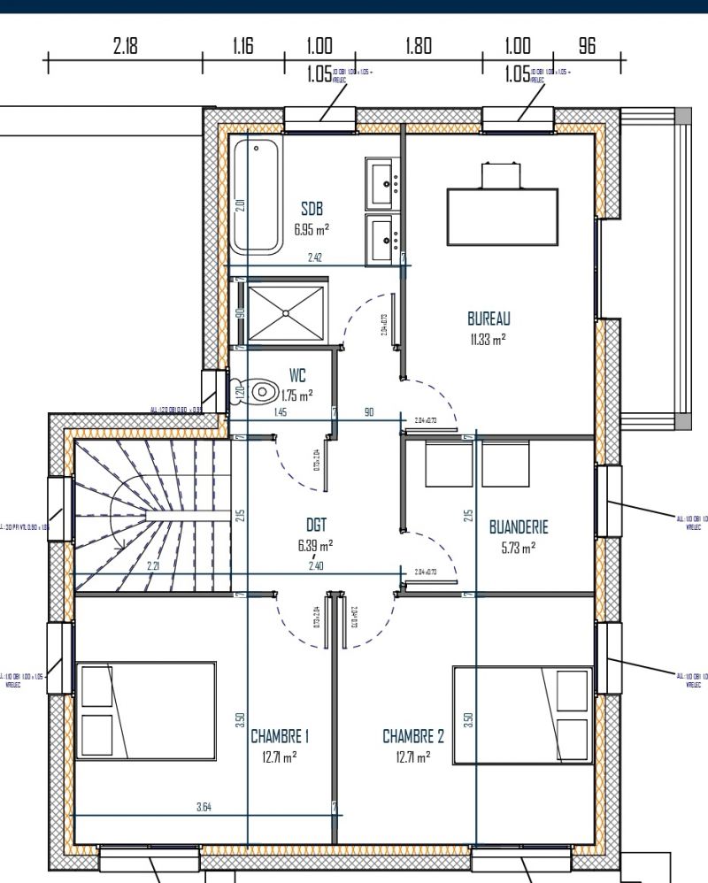
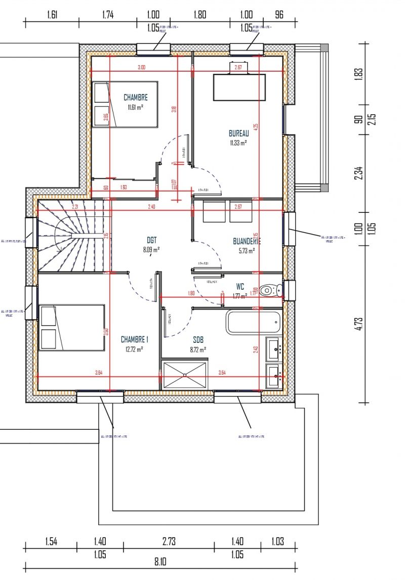
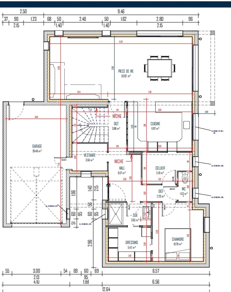
Bonjour, que pensez-vous de mon plan?. Y-a-t-il des améliorations à apporter ?
Ce sujet comporte 70 messages et a été affiché 563 fois
Nouveau sujet
Répondre
|
3 abonnés surveillent ce sujet |
Membre utile
Membre utile
Membre utile
Membre utile
Membre utile
Membre utile
Membre super utileActuellement en ligne !
Membre super utileActuellement en ligne !
Membre super utileActuellement en ligne !
Membre super utileActuellement en ligne !
Membre super utileActuellement en ligne !
Membre utile
Membre super utileActuellement en ligne !
Membre utile
Membre utile
Membre super utileActuellement en ligne !
Membre utile
Membre super utileActuellement en ligne !
Membre utile
Membre super utileActuellement en ligne !
Membre utile
Membre utile
Membre utile
Membre ultra utile
Ce sujet vous a-t-il aidé ?
0
Votez !
0
Votez !
C'est intéressant aussi !
Devis plan de maison
Demandez, en 5 minutes, 3 devis comparatifs aux professionnels de votre région. Gratuit et sans engagement.
Demandez, en 5 minutes, 3 devis comparatifs aux professionnels de votre région. Gratuit et sans engagement.
25 erreurs à éviter dans son plan de maison
Les guides vous aident à y voir plus clair sur la construction.
Les guides vous aident à y voir plus clair sur la construction.
Les 10 maisons les plus extraordinaires des membres ...
L'équipe de Forum Construire sélectionne pour vous les plus belles photos des membres et du web.
L'équipe de Forum Construire sélectionne pour vous les plus belles photos des membres et du web.
3
abonnés
surveillent ce sujet
surveillent ce sujet
Autres discussions sur ce sujet :
-
Avis sur ma premiere ebauche de plan
9 réponses Forum Plans de maisons -
Des bonnes idées a prendre et à donner
6 réponses Forum Plans de maisons -
Avis sur plan
13 réponses Forum Plans de maisons -
Recherche Logiciel pour plans 2D avec cotes
4 réponses Forum Plans de maisons -
Logiciel Architecte 3D ou 3D Architecte
20 réponses Forum Plans de maisons -
Projet dans le 59 - Mes plans
10 réponses Forum Plans de maisons -
Logiciel Architecture 3D
45 réponses Forum Plans de maisons -
Avis sur plan....
15 réponses Forum Plans de maisons -
Projet toulousain, essai de plan
13 réponses Forum Plans de maisons -
Des avis sur nos plans ?
17 réponses Forum Plans de maisons




Nouveau sujet
Répondre








Edité 1 fois, la dernière fois il y a 15 jours.









C'est intéressant aussi !




Autres discussions sur ce sujet :