Retour
Menu utilisateur
Menu

Photos et idées Terrain

Trouvez des idées en parcourant les photos des autres !
Ordre d'affichage :
Le terrain était rempli d?arbres et par conséquent de souches. J?ai du faire venir une grue pour tout dessoucher et rassembler. A savoir que les dechetteries n?en veulent pas ! Pas facile de s´en debarasser ! A l?avenir je saurai qu?il faut les enterrer...
Le terrain était rempli d?arbres et par conséquent de ...
Rendu 3D de notre maison sur le terrain
Rendu 3D de notre maison sur le terrain
Dernière étape, prévenir le constructeur que c'est propre
Dernière étape, prévenir le constructeur que ...
Débroussaillage
Débroussaillage
Terrain avant débroussaillage et abatages des 2 arbres
Terrain avant débroussaillage et abatages des 2 arbres
Dégagement de la végétation du mur, un arbre à poussé dans les pierres, il faut tout reconstruire !
 
Dégagement de la végétation du mur, un arbre ...
Fondation coulée
Fondation coulée
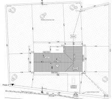
Plan de masse
 
1
Plan de masse
Plan de masse
2
Plan de masse
Après quelques heures, 4 mètres de muret sont déposé... plus de bras pour le dernier mètre en espérant que ça soit suffisant pour l'accès au chantier. On est en S15
Après quelques heures, 4 mètres de muret sont déposé... ...
Le terrain : 20 ares
Le terrain : 20 ares
Entrée du terrain
Entrée du terrain
Aménagement terrain
 
1
Aménagement terrain
Voilà ce que c'est que travailler sans gant!!!
Voilà ce que c'est que travailler sans gant!!!
2nd projet de division
2nd projet de division
Finalisation de la viabilisation - en attente du bornage :)
Finalisation de la viabilisation - en attente du bornage :)
Vue terrain: terrain légèrement en pente 7%
 
Vue terrain: terrain légèrement en pente 7%
Fin du nettoyage.
Fin du nettoyage.
Aujourd'hui les fondations ont été faites
Aujourd'hui les fondations ont été faites
Un grand terrain disponible et tout constructible qui accueilleras sans doute un jour une autre construction
 
Un grand terrain disponible et tout constructible qui accueilleras ...
Ça décaisse...
 
Ça décaisse...
Voilà notre terrain vu depuis le côté Sud
1
Voilà notre terrain vu depuis le côté Sud
Terrain
Terrain
Plan du terrain
1
Plan du terrain


Trumeaux en béton entre les baies vitrées
Trumeaux en béton entre les baies vitrées
Photo des travaux sur le lotissement
 
Photo des travaux sur le lotissement
Débrousaillage
Débrousaillage
Raccordements gaz et élec
 
1
Raccordements gaz et élec
Terrain lors de l'achat
Terrain lors de l'achat
Terrain après débroussaillage
 
1
Terrain après débroussaillage
Le terrain côté nord est
 
Le terrain côté nord est
Voici le terrain choisi !!
Voici le terrain choisi !!
Terrain en attente
 
Terrain en attente
Fin du coupage et brûlage le 02 janvier 2020
Il n'y a plus qu'a attendre le terrassier pour le déssouchage
1
Fin du coupage et brûlage le 02 janvier 2020 Il n'y a plus qu'a ...
Prévision
 
1
Prévision
Plu
 
1
Plu
Photo vendredi 13 mai
Photo vendredi 13 mai
Implantation de la maison sur le terrain
Implantation de la maison sur le terrain
Dessoussage en cours...
1
Dessoussage en cours...
Panneau d'affichage 1 mois après sa mise en place
Panneau d'affichage 1 mois après sa mise en place
Une vue du lot et des lots voisins
Une vue du lot et des lots voisins
Mise en place des coffrets
Mise en place des coffrets
Terrain
 
Terrain
Terrain numéro 3
 
1
Terrain numéro 3
Une partie du terrain avec sa colline à gauche.
2
Une partie du terrain avec sa colline à gauche.
Plan de notre terrain
Plan de notre terrain
Le muret représente le niveau final du goudron pour les places de parkings
 
Le muret représente le niveau final du goudron pour les places ...
Voilà le gros est fait, on a broyé les petites branches et on embarque le reste pour en faire du bois de chauffage ! Il reste que les arbres du fond mais on verra ça plus tard.
Voilà le gros est fait, on a broyé les petites branches ...
Vue plein nord : la dent de Crolles (déjà sous la neige)
 
Vue plein nord : la dent de Crolles (déjà sous la neige)
Nettoyage du terrain en octobre 2020
 
Nettoyage du terrain en octobre 2020
Passage de l'étude de sol
 
Passage de l'étude de sol
Préparation du terrain pour la construction
Préparation du terrain pour la construction
Emplacement de la maison sur le terrain
Emplacement de la maison sur le terrain
Bornage
Bornage
La vue est bouchée.
1
La vue est bouchée.
Après l'abattage du gros arbre gênant l'implantation de la maison (vue avant)
Après l'abattage du gros arbre gênant l'implantation ...
LA MAISON SERA CONSTRUITE SUR LA 1ER PLANCHE AU ARBRES
LA MAISON SERA CONSTRUITE SUR LA 1ER PLANCHE AU ARBRES
Un beau terrain
1
Un beau terrain
2 mètres d'orties sur la totalité de la parcelle et plein de cadeau dans la terre ... (clous, briques, grillages, tuyaux, baches...)
2 mètres d'orties sur la totalité de la parcelle et ...
Vue sur la prairie
 
1
Vue sur la prairie
La piscine dans son jus, elle n'est clairement pas récente. Il y a du travail pour reprendre le liner à jeter, de même que l'installation de filtration qui n'est pas bien dimensionnée pour le volume d'eau.
 
1
La piscine dans son jus, elle n'est clairement pas récente. ...
Vue depuis le balcon, le terrain descend en pente à 20% vers le nord.
 
Vue depuis le balcon, le terrain descend en pente à 20% vers ...
Début de la viabilisation
 
Début de la viabilisation
Terrain
 
Terrain
Terrain avant
 
1
Terrain avant


Les photos terrain sont déposées et décrites par les membres eux mêmes, sans aucun contrôle de la part de ForumConstruire.com. De ce fait, il se peut que certaines photos soient mal détaillées, placées dans de mauvaises catégories, mal orientées, etc ...

Sur le même thème :

Devis géomètreArtisan
Devis géomètre
Demandez, en 5 minutes, 3 devis comparatifs aux professionnels de votre région. Gratuit et sans engagement.
Acheter un terrain à bâtir
Acheter un terrain à bâtir
Les guides vous aident à y voir plus clair sur la construction.
Forum terrainForum
Forum terrain
Dans le forum, posez vos questions, consultez celles des autres, entraidez-vous.
Annonces de terrains
Annonces de terrains
Découvrez les outils et services exclusifs de ForumConstruire.com
Vous aussi, participez ! Envoyez vos photos !

Sélectionnez une étape :

Voir