Conseil sur la pose de barre de seuil ou pas
Ce sujet comporte 3 messages et a été affiché 149 fois
Nouveau sujet
Répondre
|
1 personne surveille ce sujet |
Membre super utileEn cache depuis le samedi 07 mars 2026 à 17h08
Ce sujet vous a-t-il aidé ?
0
Votez !
0
Votez !
C'est intéressant aussi !
Devis pose parquet
Demandez, en 5 minutes, 3 devis comparatifs aux professionnels de votre région. Gratuit et sans engagement.
Demandez, en 5 minutes, 3 devis comparatifs aux professionnels de votre région. Gratuit et sans engagement.
20 idées de sols de différentes teintes et/ou matières
L'équipe de Forum Construire sélectionne pour vous les plus belles photos des membres et du web.
L'équipe de Forum Construire sélectionne pour vous les plus belles photos des membres et du web.
1
personne
surveille ce sujet
surveille ce sujet
Autres discussions sur ce sujet :
-
Par où commencer pour la pose d’un parquet sans barre de seuil
5 réponses Forum Décoration -
Pose parquet sur dalle non isolée dans maison ancienne
1 réponses Forum Décoration -
Pose de parquet sur un sol osb3 avec margelle béton plus haute de 10mm le long d'un mur.
1 réponses Forum Décoration -
Restauration parquet bois au dessus d'une cave, risque d'humidité ?
1 réponses Forum Décoration -
Parquet flottant : pare vapeur obligatoire ?
2 réponses Forum Décoration
Résolu -
Sens de pose du parquet dans une pièce...originale!
2 réponses Forum Décoration -
Enlever ragréage pour récupérer niveau parquet existant.
2 réponses Forum Décoration -
Un calepinage pour mon parquet stratifié
26 réponses Forum Décoration
Résolu -
barre de seuil, quelles sont vos idées ?
8 réponses Forum Décoration -
Pose de parquet et de carreaux de ciment d'epaisseur différente dans une construction neuve
2 réponses Forum Décoration




Nouveau sujet
Répondre

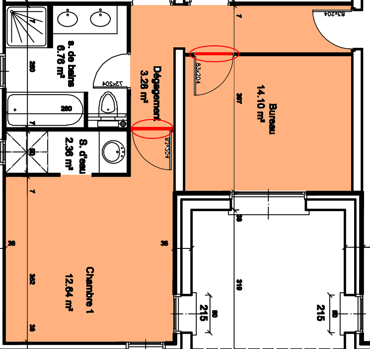
. Après avoir créé cette nouvelle cloison, je me pose la question de faire un joint de dilatation et pose de barre de seuil entre le couloir et le bureau (je joins une photo du plan). J'en profite également pour poser ce parquet sur une autre chambre en continuité du couloir et me pose également la question sur la barre de seuil entre la chambre et le couloir. Sans aucune barre de seuil, la superficie totale serait de 30m2 ce qui me semble important sans barre de seuil, sachant que dans un premier temps, c'est plutôt la barre de seuil et joint de dilatation entre bureau et couloir que je souhaiterais supprimer.



C'est intéressant aussi !




Autres discussions sur ce sujet :
Résolu