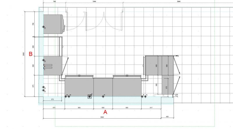
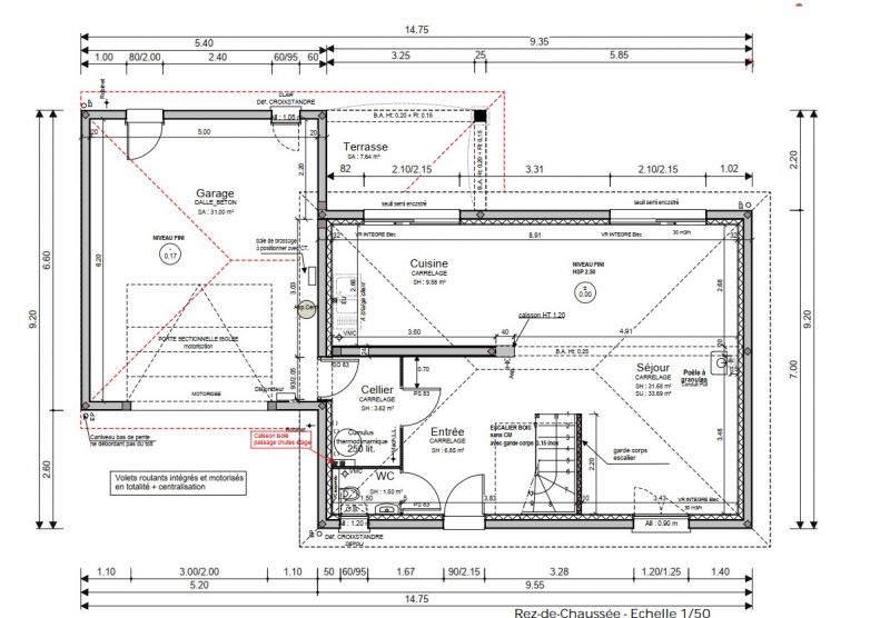
Aide implentation spots cuisine
Ce sujet comporte 7 messages et a été affiché 167 fois
Nouveau sujet
Répondre
|
3 abonnés surveillent ce sujet |
Membre utile
Membre ultra utile
Membre ultra utile
Membre ultra utileEn cache depuis le mercredi 01 avril 2026 à 12h32
Ce sujet vous a-t-il aidé ?
0
Votez !
0
Votez !
C'est intéressant aussi !
Devis travaux électriques
Demandez, en 5 minutes, 3 devis comparatifs aux professionnels de votre région. Gratuit et sans engagement.
Demandez, en 5 minutes, 3 devis comparatifs aux professionnels de votre région. Gratuit et sans engagement.
Bien choisir ses spots à économie d'énergie (led, etc)
Les guides vous aident à y voir plus clair sur la construction.
Les guides vous aident à y voir plus clair sur la construction.
Photos d'éclairages extérieurs
Picorez des idées en parcourant les photos des constructions des autres !
Picorez des idées en parcourant les photos des constructions des autres !
16 idées d'éclairages indirects
L'équipe de Forum Construire sélectionne pour vous les plus belles photos des membres et du web.
L'équipe de Forum Construire sélectionne pour vous les plus belles photos des membres et du web.
3
abonnés
surveillent ce sujet
surveillent ce sujet
Autres discussions sur ce sujet :
-
Besoin d’aide branchement éclairage garage réglette
5 réponses Forum Electricité, domotique et sécurité
Résolu -
Schéma electrique - changement interrupteur
6 réponses Forum Electricité, domotique et sécurité
Résolu -
Recherche une marque connue pour luminaire
5 réponses Forum Electricité, domotique et sécurité
Résolu -
La moitié des spots d'une cuisine ne s'allument plus
4 réponses Forum Electricité, domotique et sécurité -
Pose spots d’un point lumineux cuisine
8 réponses Forum Electricité, domotique et sécurité -
Comment brancher plafonnier avec fils bleu, gris et vert/jaune
5 réponses Forum Electricité, domotique et sécurité
Résolu -
Avis emplacement spots pour salon,séjour,cuisine,hall
7 réponses Forum Electricité, domotique et sécurité -
Éclairage principal spots led pour petite cuisine
14 réponses Forum Electricité, domotique et sécurité -
Ajout d'un interrupteur cuisine pour spots
8 réponses Forum Electricité, domotique et sécurité




Nouveau sujet
Répondre






C'est intéressant aussi !




Autres discussions sur ce sujet :
Résolu