Retour
Menu utilisateur
Menu

Photos et idées Terrain

Trouvez des idées en parcourant les photos des autres !
Ordre d'affichage :
Terrain avant permis de construire
1
Terrain avant permis de construire
Le panneau !!!!
desole, obligée de cacher certaines infos pour ne pas avoir d embrouilles ...
1
Le panneau !!!! desole, obligée de cacher certaines infos ...
La parcelle
La parcelle
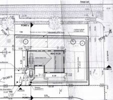
Plan topo, implantation maison et pergola, en rouge emplacement approximatif de l'enrochement. En grisé enrochement déjà existant. 
Le long du chemin, il y aura un mur béton banché de soutènement de 1m50 au plus bas du terrain à 40 cm au plus haut, . Le mur de soutènement permettra d'aplanir le terrain devant la maison qui est en légère pente. Et d'éviter le talus que l'on voit le long du chemin pour gagner un peu en largeur.
Plan topo, implantation maison et pergola, en rouge emplacement approximatif ...
Terrain avant permis de construire
1
Terrain avant permis de construire
Village de Montesquieu Lauragais 31
Village de Montesquieu Lauragais 31
Notre bout de terrain tout gadouilleux
Notre bout de terrain tout gadouilleux
Le terrain est clôturé à moitié, il reste les clôture électrique à ôter, car c'était un pré  pour des chevaux
Le terrain est clôturé à moitié, il reste ...
Emplacement en attendant que les travaux de lotir commencent. Ils ne devraient pas tarder. Courant octobre.
Emplacement en attendant que les travaux de lotir commencent. Ils ...
Situation du terrain sur la parcelle constituant les 15 lots
 
1
Situation du terrain sur la parcelle constituant les 15 lots
Futur petit lotissement de 6 terrains
 
Futur petit lotissement de 6 terrains
Terrain avant permis de construire
1
Terrain avant permis de construire
Bornes EDF
1
Bornes EDF
Arrière de la maison côté jardin
Arrière de la maison côté jardin
Vue d'en face du futur lotissement
 
Vue d'en face du futur lotissement
Découverte du terrain
 
Découverte du terrain
Emplacement en attendant que les travaux de lotir commencent. Ils ne devraient pas tarder. Courant octobre.
Emplacement en attendant que les travaux de lotir commencent. Ils ...
Terrain avant travaux
Terrain avant travaux
Terrain :...:
 
Terrain :...:
Implantation de la maison par le géomètre sur le terrain.
C'est pas grand chose mais ça fait toujours plaisir de voir un peu de nouveauté.
 
Implantation de la maison par le géomètre sur le terrain. C'est ...
Partie gauche du terrain... talus avec arbustes locaux obligatoire, planté par la mairie et possibilité de réduire sa largeur. ça fera des arbustes en moins à planter!
Partie gauche du terrain... talus avec arbustes locaux obligatoire, ...
Beau terrain plat
Beau terrain plat
L'entrée de la futur Maison
L'entrée de la futur Maison
Le terrain avec le droit de passage en vert.
Le terrain avec le droit de passage en vert.


Voila le lotissement, nous avons reservé le lot n°7
Voila le lotissement, nous avons reservé le lot n°7
Vu comme cela, ce sous-bois n'était pas très engageant   :-)
Vu comme cela, ce sous-bois n'était pas très engageant ...
Emplacement en attendant que les travaux de lotir commencent. Ils ne devraient pas tarder. Courant octobre.
Emplacement en attendant que les travaux de lotir commencent. Ils ...
Terrain en restanques à Vallauris, avant le terrassement
 
1
Terrain en restanques à Vallauris, avant le terrassement
Devant de la maison
Devant de la maison
Terrain : façade 16.71 m (686 m²)
 
Terrain : façade 16.71 m (686 m²)
Une photo du terrain
Une photo du terrain
Les 22 200 m² où ont été créés les 15 lots de notre lotissement
 
Les 22 200 m² où ont été créés ...
Le terrain
Le terrain
Notre terrain
1
Notre terrain
Parcelle 25
Parcelle 25
Voici le terrain en question
Voici le terrain en question
Partie droite du terrain, la maison voisine est en mitoyenneté avec la bordure du terrain.. son tas de terre est sur notre futur terrain (si la banque dit oui!)
Partie droite du terrain, la maison voisine est en mitoyenneté ...
Découverte du terrain => il ne nous a pas fallu 10 secondes pour savoir que ce serait LÀ !
 
Découverte du terrain => il ne nous a pas fallu 10 secondes ...
Terrain avant permis de construire
1
Terrain avant permis de construire
L'entrée de la futur Maison
L'entrée de la futur Maison
Fixe de l?escalier
 
Fixe de l?escalier
Vue depuis la mezzanine
 
Vue depuis la mezzanine
Ça cr précise
Ça cr précise
Avant le nettoyage ;-)
 
Avant le nettoyage ;-)
Tas Terre
Tas Terre
Tas Terre
Tas Terre
Pose du panneau de PC!
 
Pose du panneau de PC!
Engins de chantier partis!!
 
Engins de chantier partis!!
Lampadaires posés!!
 
Lampadaires posés!!
Implantation de notre maison sur le terrain
 
Implantation de notre maison sur le terrain
Ils ont garée leur pelleteuse chez nous ;-D
 
Ils ont garée leur pelleteuse chez nous ;-D
Bitume des allées du lot fait!!
 
Bitume des allées du lot fait!!
Vue entre l'allée, la zone non constructible et notre terrain
 
Vue entre l'allée, la zone non constructible et notre terrain
Allée toujours
 
Allée toujours
Allée qui passe derrière notre terrain
 
Allée qui passe derrière notre terrain
Allée entre le champ et notre terrain
 
1
Allée entre le champ et notre terrain
Notre terrain vu du bas du lotissement
 
Notre terrain vu du bas du lotissement
Beau compteur...nous sommes très contents!!
 
Beau compteur...nous sommes très contents!!
Oh notre compteur est posé...!!
 
Oh notre compteur est posé...!!
L'allée avant les travaux d'assainissement ...
L'allée avant les travaux d'assainissement ...
Trottoirs en préparation
 
Trottoirs en préparation
Ca y est ils attaquent les trottoirs, les lampadaires...etc
 
Ca y est ils attaquent les trottoirs, les lampadaires...etc
Il faut imaginer notre entrée environ entre le tout à l'égout et les arrivées!!
 
Il faut imaginer notre entrée environ entre le tout à ...
Les arrivées
 
Les arrivées
Oh le beau remblais que voilà!! A quand le macadam?
 
Oh le beau remblais que voilà!! A quand le macadam?


Les photos terrain sont déposées et décrites par les membres eux mêmes, sans aucun contrôle de la part de ForumConstruire.com. De ce fait, il se peut que certaines photos soient mal détaillées, placées dans de mauvaises catégories, mal orientées, etc ...

Sur le même thème :

Devis géomètreArtisan
Devis géomètre
Demandez, en 5 minutes, 3 devis comparatifs aux professionnels de votre région. Gratuit et sans engagement.
Terrain avec constructeur imposé : comment se séparer du constructeur ?
Terrain avec constructeur imposé : comment se séparer ...
Les guides vous aident à y voir plus clair sur la construction.
Forum terrainForum
Forum terrain
Dans le forum, posez vos questions, consultez celles des autres, entraidez-vous.
Annonces de terrains
Annonces de terrains
Découvrez les outils et services exclusifs de ForumConstruire.com
Vous aussi, participez ! Envoyez vos photos !

Sélectionnez une étape :

Voir