Retour
Menu utilisateur
Menu

Photos et idées Terrain

Trouvez des idées en parcourant les photos des autres !
Ordre d'affichage :
Vue du terrain après avoir coupé les arbres et commencé les haies
 
Vue du terrain après avoir coupé les arbres et commencé ...
Les fameuses souches
 
Les fameuses souches
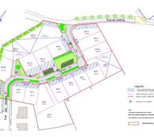
Plan global du lotissement
 
1
Plan global du lotissement
Entrée
Entrée
Les souches ont été retirés !
Les souches ont été retirés !
Les souches ont été retirés !
Les souches ont été retirés !
Au bout du terrain
Au bout du terrain
Dessouchage
 
Dessouchage
Parcelle enneigée sous un ciel couvert. Je sais à présent qu'il est possible de faire des bonhommes de neige, des rackettes et du ski à Ranchal.
Parcelle enneigée sous un ciel couvert. Je sais à présent ...
Défrichage en cours, quelques arbres enlevés, les côtés sont nettoyés pour le passage du géomètre et bornage du terrain.
 
1
Défrichage en cours, quelques arbres enlevés, les côtés ...
Terrain sud ouest
 
Terrain sud ouest
Et déjà 2 voisins!
 
1
Et déjà 2 voisins!
La route d'accès du lotissement
 
La route d'accès du lotissement
On coupe, on élague
On coupe, on élague
Le Terrain : ancien champs. l'arrière du terrain est non constructible nous laissant une très belle vue...quoi rêver de mieux dans un secteur où les maisons se construisent les une sur les autres?
Le Terrain : ancien champs. l'arrière du terrain est non constructible ...
Lotissement
 
1
Lotissement
Le terrain sans les arbres!
Le terrain sans les arbres!
Vue du coté droit
Vue du coté droit
Arrivée de la pelteuse
Arrivée de la pelteuse
Le 35 !
 
1
Le 35 !
Autres vues de la piscine
 
Autres vues de la piscine
Notre petit lutin s'y voit déja!
 
2
Notre petit lutin s'y voit déja!
Le Terrain : ancien champs. l'arrière du terrain est non constructible nous laissant une très belle vue...quoi rêver de mieux dans un secteur où les maisons se construisent les une sur les autres?
Le Terrain : ancien champs. l'arrière du terrain est non constructible ...
Le terrain vu depuis le sud-est.
Le terrain vu depuis le sud-est.


Vue de la piscine et du dome sur le coté
 
Vue de la piscine et du dome sur le coté
Terrain à l'achat
 
Terrain à l'achat
Décapage terrain   création de l entrée
Décapage terrain création de l entrée
Le terrain. Photo prise depuis l'est. Le devant de la maison sera donc à l'est, le jardin à l'ouest.
 
Le terrain. Photo prise depuis l'est. Le devant de la maison sera ...
Nous sommes propriétaires du terrain !
 
Nous sommes propriétaires du terrain !
Vue arriere du terrain
Vue arriere du terrain
Futur emplacement de notre maison "les arbres vont malheureusement disparaitre "
vous pouvez apercevoir le puits sous les vivaces prêt du sapin.
Futur emplacement de notre maison "les arbres vont malheureusement ...
Terrain après fauchage, 15 jours avant le début des travaux
1
Terrain après fauchage, 15 jours avant le début des ...
Une partie à l'arrière du terrain, en friche.
 
1
Une partie à l'arrière du terrain, en friche.
Gele
Gele
Vue du fond
Vue du fond
Photo prise avant le début du terrassement
Photo prise avant le début du terrassement
Bon travail!
 
Bon travail!
Vue de la cuisine d'été
 
Vue de la cuisine d'été
Un avant goût du terrain choisit
Un avant goût du terrain choisit
Forage géothermie
Forage géothermie
Lotissement
 
1
Lotissement
Terrain à l'achat
 
Terrain à l'achat
Voici notre parcelle
 
Voici notre parcelle
Ouverture de la haie de tuyas et mise en forme du terrain
1
Ouverture de la haie de tuyas et mise en forme du terrain
C'est le lot N°9.
C'est le lot N°9.
Entrée du terrain, sans nettoyage, l'arrière est complètement en friche.
 
1
Entrée du terrain, sans nettoyage, l'arrière est complètement ...
Le Terrain : ancien champs. l'arrière du terrain est non constructible nous laissant une très belle vue...quoi rêver de mieux dans un secteur où les maisons se construisent les une sur les autres?
Le Terrain : ancien champs. l'arrière du terrain est non constructible ...
Pose du permis
Pose du permis
Notre terrain! on arrive jusqu'au futur portail sans problème
 
1
Notre terrain! on arrive jusqu'au futur portail sans problème
Le terrain vue depuis le nord-est
Le terrain vue depuis le nord-est
Terrain roche
Terrain roche
Allée donnant vers la maison
Allée donnant vers la maison
Effectivement, une coquille s'est glissée dans mon photo montage.... C'est bien le lot 21!
1
Effectivement, une coquille s'est glissée dans mon photo montage.... ...
Forage géothermie
Forage géothermie
Lot 2
 
1
Lot 2
Le Terrain : ancien champs. l'arrière du terrain est non constructible nous laissant une très belle vue...quoi rêver de mieux dans un secteur où les maisons se construisent les une sur les autres?
Le Terrain : ancien champs. l'arrière du terrain est non constructible ...
Futur lotissement.
 
Futur lotissement.
Terrain=carré rouge
Terrain=carré rouge
Photo prise avant le début du terrassement
Photo prise avant le début du terrassement
Terrain à l'achat
 
Terrain à l'achat
Implantation de la maison sur le terrain
1
Implantation de la maison sur le terrain
Terrain avant travaux
Terrain avant travaux
C'est ça, nos "Charmes"
 
1
C'est ça, nos "Charmes"
Le terrain avant travux
Le terrain avant travux
Un avant goût du terrain choisit
Un avant goût du terrain choisit


Les photos terrain sont déposées et décrites par les membres eux mêmes, sans aucun contrôle de la part de ForumConstruire.com. De ce fait, il se peut que certaines photos soient mal détaillées, placées dans de mauvaises catégories, mal orientées, etc ...

Sur le même thème :

Devis géomètreArtisan
Devis géomètre
Demandez, en 5 minutes, 3 devis comparatifs aux professionnels de votre région. Gratuit et sans engagement.
Guide : diviser son terrain
Guide : diviser son terrain
Les guides vous aident à y voir plus clair sur la construction.
Forum terrainForum
Forum terrain
Dans le forum, posez vos questions, consultez celles des autres, entraidez-vous.
Annonces de terrains
Annonces de terrains
Découvrez les outils et services exclusifs de ForumConstruire.com
Vous aussi, participez ! Envoyez vos photos !

Sélectionnez une étape :

Voir