Retour
Menu utilisateur
Menu

Photos et idées Terrain

Trouvez des idées en parcourant les photos des autres !
Ordre d'affichage :
Photo du terrain ( route principale au fond)
1
Photo du terrain ( route principale au fond)
Le chemin communal qui dessert le terrain
Le chemin communal qui dessert le terrain
Notre futur village
Notre futur village
Terrain vue 2
Terrain vue 2
Implantation 3
 
Implantation 3
Notre terrain vu de la route.
Notre terrain vu de la route.
Implantation de notre maison
Implantation de notre maison
Implantation sur le Terrain
 
Implantation sur le Terrain
Vue côté Est avec mon voisin  du lot 4
Vue côté Est avec mon voisin du lot 4
Terrain vu d'en bas
1
Terrain vu d'en bas
Implantation du panneau du PC accordé
Implantation du panneau du PC accordé
Emplacement de la maison sur notre terrain (exposition plein sud)
Emplacement de la maison sur notre terrain (exposition plein sud)
Voici notre terrain avec une superbe grange que la tempete n'a pas emportée avec elle....ce que nous allons faire a sa place
Voici notre terrain avec une superbe grange que la tempete n'a pas ...
Autre vue
1
Autre vue
Premier coup de pelle
 
Premier coup de pelle
Et encore une autre vue (jusqu'aux arbres)
1
Et encore une autre vue (jusqu'aux arbres)
Fin de la première journée de démolition .
 
Fin de la première journée de démolition .
Terrain nue
 
Terrain nue
Nous voici sur notre terrain
à gauche Donatien, au milieu Maëva, et moi à droite
 
Nous voici sur notre terrain à gauche Donatien, au milieu ...
Fondations cloture realisees maintenant les briques vont monter ....
Quel plaisir .
 
Fondations cloture realisees maintenant les briques vont monter .... Quel ...
Vue du fond du terrain sur la route
Vue du fond du terrain sur la route
Ca pousse... (l'herbe pas les parpaings malheuresement!)
Ca pousse... (l'herbe pas les parpaings malheuresement!)
Vu depuis la rue
Vu depuis la rue
Est ce bien un chêne??  en tout cas, l'est chouette, l'arbre
Est ce bien un chêne?? en tout cas, l'est chouette, l'arbre


4
1
4
Terrain sous la neige
Terrain sous la neige
Debut des travaux, chemin d'accès
Debut des travaux, chemin d'accès
Vue de derrière avant les travaux
Vue de derrière avant les travaux
De la bonne, de la mauvaise terre :-)
 
De la bonne, de la mauvaise terre :-)
Photo du terrain vu des champs de derrière
Photo du terrain vu des champs de derrière
Terrain après débroussaillage et préparation à l'implantation
Terrain après débroussaillage et préparation ...
Implantation
 
Implantation
La vue
1
La vue
Plan du lotissement envoyé par la mairie par mail.
Notre lot c'est le numéro 33.
Plan du lotissement envoyé par la mairie par mail. Notre lot ...
Devant du terrai, vu depuis le coté du cabanon
Devant du terrai, vu depuis le coté du cabanon
Vue depuis le fond
Vue depuis le fond
Plan de notre futur terrain
1
Plan de notre futur terrain
Notre future vue
Notre future vue
Nous y voila avec du retard mais la meteo ne nous a pas aidé  les fondations sont coule ........
Nous y voila avec du retard mais la meteo ne nous a pas aidé ...
Le panneau du permis affiché...yes!
Le panneau du permis affiché...yes!
Plan terrain
1
Plan terrain
Voila la maison  poser sur notre terrain
seul hic la maison apparait au centre alors qu'en réalité elle sera sur la gauche du terrain
Voila la maison poser sur notre terrain seul hic la maison apparait ...
Détails 116 et 117
Détails 116 et 117
La "route"
La "route"
Chemin d'acces sur le terrain
Chemin d'acces sur le terrain
Photos pour le permis de construire
Photos pour le permis de construire
Le début de chantier
1
Le début de chantier
Terrain en travaux de viabilité
Terrain en travaux de viabilité
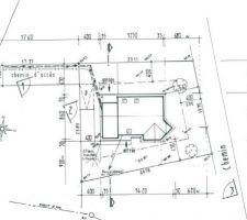
Plan du terrain avec l'implantation de la maison.
 
3
Plan du terrain avec l'implantation de la maison.
Terrain
Terrain
Devant la petite maisonnette que je compte garder
Devant la petite maisonnette que je compte garder
Décapage du terrain
Décapage du terrain
Vue d'en haut n°2
 
Vue d'en haut n°2
Le mur plein sud!!! on va tombé le mur de moitier pour le garder en cloture de terrain
Le mur plein sud!!! on va tombé le mur de moitier pour le garder ...
Préparation aux fondations
Préparation aux fondations
Terrain en cour de viabilisation 2
Terrain en cour de viabilisation 2
Débroussaillage du terrain
 
Débroussaillage du terrain
Les troncs coupés pas mon mari avec des pots. Nous avons du bois pour quelques temps. (43 chênes)
Les troncs coupés pas mon mari avec des pots. Nous avons du ...
Fondation coulé
Fondation coulé
Depuis notre venue en aout cela construit autour(merci la belle soeur d'hyeres)
Depuis notre venue en aout cela construit autour(merci la belle soeur ...
Commencement du coullage de la dalle
Commencement du coullage de la dalle
C'est un terrain en deuxième ligne, situé sur un avenue.L'allée fait un peu plus de 100M2.
 
C'est un terrain en deuxième ligne, situé sur un avenue.L'allée ...
Accès chantier
Accès chantier
Le terran que nous avons trouvé
Le terran que nous avons trouvé
Lot n°3
 
Lot n°3


Les photos terrain sont déposées et décrites par les membres eux mêmes, sans aucun contrôle de la part de ForumConstruire.com. De ce fait, il se peut que certaines photos soient mal détaillées, placées dans de mauvaises catégories, mal orientées, etc ...

Sur le même thème :

Devis géomètreArtisan
Devis géomètre
Demandez, en 5 minutes, 3 devis comparatifs aux professionnels de votre région. Gratuit et sans engagement.
Comment connaitre l'ensoleillement d'un terrain ?
Comment connaitre l'ensoleillement d'un terrain ?
Les guides vous aident à y voir plus clair sur la construction.
Forum terrainForum
Forum terrain
Dans le forum, posez vos questions, consultez celles des autres, entraidez-vous.
Annonces de terrains
Annonces de terrains
Découvrez les outils et services exclusifs de ForumConstruire.com
Vous aussi, participez ! Envoyez vos photos !

Sélectionnez une étape :

Voir