Retour
Menu utilisateur
Menu

Photos et idées Terrain

Trouvez des idées en parcourant les photos des autres !
Ordre d'affichage :
Notre futur terrain
 
1
Notre futur terrain
Terrain viabilisé
1
Terrain viabilisé
2ème mur pour l'accès au terrain avant qu'on y touche
1
2ème mur pour l'accès au terrain avant qu'on y touche
Terrain
Terrain
ENTRÉE DU TERRAIN
1
ENTRÉE DU TERRAIN
Premiere page de l'etude de sol
Premiere page de l'etude de sol
Vue du terrain
Vue du terrain
Vue du terrain (terrain n'est pas creux, c'est l'effet de la vue panoramique)
1
Vue du terrain (terrain n'est pas creux, c'est l'effet de la vue panoramique)
Notre terrain en friche!!!!
Notre terrain en friche!!!!
Lotissement, première visite.
Lotissement, première visite.
Coffret électrique en limite de propriété
1
Coffret électrique en limite de propriété
Un ancien verger c'est beau tout pousse en abondance mais gros travaille pour laisser place a une maison bois le comble c'est que j'ai du abattre deux boulots de 25 ans et un poirrier de 60 ans
Un ancien verger c'est beau tout pousse en abondance mais gros travaille ...
Voici le bâtiment!
Voici le bâtiment!
Le terrain avant le début de la construction
Le terrain avant le début de la construction
Notre terrain
Notre terrain
La parcelle (cadastre)
La parcelle (cadastre)
Le terrain découverte de la pépite deux ans que l'on cherche dans ce secteur donc après quelques concessions "la taille"  on réserve et là ça va vite!!!
Le terrain découverte de la pépite deux ans que l'on ...
Lieu de construction
Lieu de construction
La petite maison à démolir
La petite maison à démolir
Notre terrain est celui qui fait l'angle
vue du haut
Notre terrain est celui qui fait l'angle vue du haut
Voici notre terrain
 
Voici notre terrain
Notre terrain :-)
1
Notre terrain :-)
Voila notre terrain!
Voila notre terrain!
Terrain en cours de viabilisation. Vue Ouest.
Un champ de patates. En plus cher...
Terrain en cours de viabilisation. Vue Ouest. Un champ de patates. ...


Promesse de vente du terrain faite au moi de janvier , signature prévu au mois de septembre.
le terrain est viabiliser,le lot fait partie d'un lotissement.
Promesse de vente du terrain faite au moi de janvier , signature prévu ...
Notre terrain sous la neige, les travaux n'ont pas encore commencé...
Notre terrain sous la neige, les travaux n'ont pas encore commencé...
Cuve de recuperation d'eau de pluie 12m2,
qui servira a l alimentation en eau de la maison
Cuve de recuperation d'eau de pluie 12m2, qui servira a l alimentation ...
Viabilisation terrain finie
 
Viabilisation terrain finie
Lotissement en viabilisation
Lotissement en viabilisation
Et voila le terrain en vert, nord en haut :D
1
Et voila le terrain en vert, nord en haut :D
Notre terrain ... 
Livraison Prevue fin Aout m ais nous le signerons pas avant Oct "A c ause de notre mauvaise mésaventure"
A moins que l'administratif avance plus vite que prevue .
Notre terrain ... Livraison Prevue fin Aout m ais nous le signerons ...
Terrain avant terrasement
Terrain avant terrasement
Le terrain nu
Le terrain nu
Notre parcelle est la 133.le reglement autorise la construction en limite de propriete à condition que cela soit type annexe (garage, abris ....)
Notre parcelle est la 133.le reglement autorise la construction en ...
Premier état des lieux
1
Premier état des lieux
Le terrain.
 
1
Le terrain.
Avant les travaux
 
Avant les travaux
Plan de masse
Plan de masse
Bat B
Bat B
Vue du terrain
1
Vue du terrain
Le plan du terrain que nous avons trouvé !

Terrain de 697 m2
SHON partie hachurée
2
Le plan du terrain que nous avons trouvé ! Terrain de 697 ...
Repérage du terrain...il sera a peu près...par là !
 
Repérage du terrain...il sera a peu près...par là ...
étude de drainage du terrain
étude de drainage du terrain
Voici le terrain avec ses arbres.
Voici le terrain avec ses arbres.
Terrain avant début des travaux
Terrain avant début des travaux
Fin de viabilisation des parcelles du lotissement
Fin de viabilisation des parcelles du lotissement
Terrain!
 
1
Terrain!
Le terrain après débroussaillage
Le terrain après débroussaillage
Un bout de terrain, je suis pas bon photographe :)
Un bout de terrain, je suis pas bon photographe :)
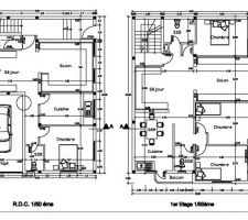
Svp, j'aimerai bien connaitre vos points de vue quant �  la structure de ce plan. ne s'agit il pas d'une structure faible �  cause de la non-superposition des poteaux de l'�©tage avec ceux du rdc , et surtout quand il s'agit d'une construction (R 3) dans une zone qui a connu par le pass�© de nombreuses secousses telluriques bien que d'amplitude faible (maroc)? Que me proposez vous pour rem�©diez �  cette situation sachant que la conception du 1er �©tage m'a plue et que je peux accepter une option �  2 chambres seulement en 1er �©tage si cela sâ��av�¨re n�©cessaire ? et merci d'avance pour votre aide.
Svp, j'aimerai bien connaitre vos points de vue quant �  ...
Notre terrain lot numero 5
Notre terrain lot numero 5
Donc voici notre terrain situé sur les hauteurs de Lannion. Il va falloir commencer par défricher
Donc voici notre terrain situé sur les hauteurs de Lannion. ...
Viabilisation en cours ! débutée le 02/08/15
Viabilisation en cours ! débutée le 02/08/15
État des lieux du terrain
État des lieux du terrain
Le terrain vient d'être délimité pour le chantier.
Le terrain vient d'être délimité pour le chantier.
Accés
Accés
Mon fils sur la pelleteuse. Travaux de viabilisation complète de notre rue.
Début des travaux : début mai, fin des travaux : fin juin... (sur la papier). Ce qui n'a pas empêché notre constructeur d'avancer pour l'instant.
Mon fils sur la pelleteuse. Travaux de viabilisation complète ...
Terrain avant travaux.
Terrain avant travaux.
Vue sud
1
Vue sud
En phase de terassement. Photo a l envers desolee :(
En phase de terassement. Photo a l envers desolee :(
Notre terrain
Notre terrain
Terrain en panoramique
Terrain en panoramique
Voila le terrain ou sera implanté  les lot des 8 maison de 65 à 72
Voila le terrain ou sera implanté les lot des 8 maison de ...
Terrain avant viabilisation.
Terrain avant viabilisation.
Voila le permis d'amenager de la parcelle
Voila le permis d'amenager de la parcelle


Les photos terrain sont déposées et décrites par les membres eux mêmes, sans aucun contrôle de la part de ForumConstruire.com. De ce fait, il se peut que certaines photos soient mal détaillées, placées dans de mauvaises catégories, mal orientées, etc ...

Sur le même thème :

Devis géomètreArtisan
Devis géomètre
Demandez, en 5 minutes, 3 devis comparatifs aux professionnels de votre région. Gratuit et sans engagement.
Terrain avec constructeur imposé : comment se séparer du constructeur ?
Terrain avec constructeur imposé : comment se séparer ...
Les guides vous aident à y voir plus clair sur la construction.
Forum terrainForum
Forum terrain
Dans le forum, posez vos questions, consultez celles des autres, entraidez-vous.
Annonces de terrains
Annonces de terrains
Découvrez les outils et services exclusifs de ForumConstruire.com
Vous aussi, participez ! Envoyez vos photos !

Sélectionnez une étape :

Voir