Retour
Menu utilisateur
Menu

Photos et idées Terrain

Trouvez des idées en parcourant les photos des autres !
Ordre d'affichage :
Le muret représente le niveau final du goudron pour les places de parkings
 
1
Le muret représente le niveau final du goudron pour les places ...
Plan du terrain, nord à droite de la photo.
Entrée pour les voitures sur le terrain par le bord au nord ouest
 
1
Plan du terrain, nord à droite de la photo. Entrée pour ...
Vue du terrain.
 
Vue du terrain.
Terrain
Terrain
Affichage DP 24nov 2023
Affichage DP 24nov 2023
Terrain en cours de viabilisation
1
Terrain en cours de viabilisation
Le terrain du côté droit
 
Le terrain du côté droit
Implantation du nouveau lotissement
 
Implantation du nouveau lotissement
Exposition du terrain
Exposition du terrain
Notre terrain (entouré en vert) d'environ 1200m²
3
Notre terrain (entouré en vert) d'environ 1200m²
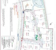
Plan de masse
 
1
Plan de masse
Notre future maison sortie de sol, pose de la toiture en cours
1
Notre future maison sortie de sol, pose de la toiture en cours
Une photo de notre terrain. 
Nous avons une longue rade de casiment 50m.
Un de mes critères c?était ? Banni les terrains en bord de route.
J?aurai aimer avoir un terrain avec une vue lointaine et dégagée, mais nous avions sélectionner en priorité la commune pour la proximité avec l?école de notre petit bout.

?? Un conseil pour ceux qui voit ça & sont au début de leur projet, nous avons négligé de nous renseigner sur le taux de la taxe d?aménagement.. et la surprise peut s?avérer être coûteuse ..
Notre commune taxe fort.. très fort ! 
Heureusement je m?étais renseigner côté impôts fonciers & de ce côté ça va ?
 
Une photo de notre terrain. Nous avons une longue rade de casiment ...
Terrain déboisé
 
Terrain déboisé
Voici le terrain avant de le défraichir !
1
Voici le terrain avant de le défraichir !
Photo du terrain lors de la première visite
 
Photo du terrain lors de la première visite
Terrain de 500m2
Pas encore cloturé
Terrain de 500m2 Pas encore cloturé
Terrain vue ouest
1
Terrain vue ouest
Le terrain !
Le terrain !
Vue terrain: première visite
 
Vue terrain: première visite
1 mois après la pose du panneau, de retour sur le terrain ^^ tout les papiers sont OK plus qu'à fixer le rdv pour l'achat du terrain ^^
 
1 mois après la pose du panneau, de retour sur le terrain ^^ ...
Lotissement au 24/04/2020
 
1
Lotissement au 24/04/2020
Terrassement du terrain
 
1
Terrassement du terrain
Terrain vierge
Terrain vierge


Le terrain concerné est en rose
1
Le terrain concerné est en rose
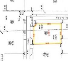
Plan Terrain
Plan Terrain
Terrain à acheter février 2021
Terrain à acheter février 2021
Terrain en projet d'acquisition
Terrain en projet d'acquisition
Initialement, c'est grande parcelle qui est coupée en deux. On a la partie du fond ; une servitude de passage permet d?accéder au terrain. Il y a deux garages jumeaux qu'on va conserver.
Initialement, c'est grande parcelle qui est coupée en deux. ...
Notre terrain acheter en 2021
Notre terrain acheter en 2021
Le terrain
Le terrain
Hello

2021 nous remarquons que tout à été détruit, c'était un ancien stand de tir, on se dit que va t'il se passer ici, nous habitons pas très loin, notre appartement se trouver a 700 mettre

2022 je remarque que la mairie viabilise le tout, pas dur de comprendre donc que tout ça va devenir un coin de construction maison
 
Hello 2021 nous remarquons que tout à été détruit, ...
Terrain de la ZAC à Saint Orens où sera construit la maison individuelle par la société ACCESSIS anciennement JRHC.
Terrain de la ZAC à Saint Orens où sera construit la ...
Entretien du terrain
Entretien du terrain
Notre terrain
 
1
Notre terrain
Notre terrain mais il ressemble plus à un bois
Notre terrain mais il ressemble plus à un bois
Côté où l'on doit faire l'accès au terrain selon les directives du CU.
Côté où l'on doit faire l'accès au terrain ...
Étude de sol
 
Étude de sol
Terrain initialement
1
Terrain initialement
La voiture noire est sur le chemin terrassé pour accéder au terrain en haut à droite.
Nous partageons la réunion de nos 2 chemins d'accès avec nos voisins.
La voiture noire est sur le chemin terrassé pour accéder ...
Terrain côté est, après la barrière.
 
Terrain côté est, après la barrière.
Photo bout terrain
Photo bout terrain
Premier intervention des VRD sur le terrain
 
Premier intervention des VRD sur le terrain
Petite photo du terrain avant mon passage tronçonneuse à la main ! 
C'était du sport ! Mais en famille cela se fait bien !
Je vous rassure, nous allons replanter des arbres, ceux-ci étaient pour la plus part totalement morts de l'intérieur... Nous allons donc replanter des arbres en pleine forme !
Petite photo du terrain avant mon passage tronçonneuse à ...
Terrain avant viabilisation
Terrain avant viabilisation
Terrain de 1400m2 non viabilisé et fosse septique à prévoir.
 
Terrain de 1400m2 non viabilisé et fosse septique à ...
Photo du terrain
 
Photo du terrain
Terrain
 
1
Terrain
Notre petit lotissement
Notre petit lotissement
Terrain Artis commune de Trossy Vue du sol
 
Terrain Artis commune de Trossy Vue du sol
Vue
Vue
Premier jet de l'emprise au sol et placement de la maison
 
Premier jet de l'emprise au sol et placement de la maison
Parcelle 752 section C avant division de cella-ci
Parcelle 752 section C avant division de cella-ci
Vue vers l'ouest du terrain
Vue vers l'ouest du terrain
Vue du terrain
 
Vue du terrain
Voici l'implantation définie pour notre maison, nous sommes presque au bout du lotissement, maison 4/5.
 
Voici l'implantation définie pour notre maison, nous sommes ...
Le terrain est agréable, orienté Nord côté rue et Sud côté verger.
Le terrain est agréable, orienté Nord côté ...
Terrain de 1600m2 divisé en deux parcelles avec une création d'une rampe d'accès pour la deuxième maison
Terrain de 1600m2 divisé en deux parcelles avec une création ...
Avant
Avant
Le terrain : nous avons trouvé un terrain de 1000m2 en fond d?allée. Il y aura beaucoup de travail avant de pouvoir commencer les travaux, le terrain étant en grand partie arboré.
Le terrain : nous avons trouvé un terrain de 1000m2 en fond ...
Terrain achetée le 8 août 2023
Terrain achetée le 8 août 2023
Terrain = 1042m²
 
Terrain = 1042m²
Le panneau d'affichage obligatoire
Le panneau d'affichage obligatoire
Affichage du permis et début du délai de recours des tiers.
Affichage du permis et début du délai de recours des ...
Une partie du terrain et accès chantier réalisé le 18/02/22
 
Une partie du terrain et accès chantier réalisé ...


Les photos terrain sont déposées et décrites par les membres eux mêmes, sans aucun contrôle de la part de ForumConstruire.com. De ce fait, il se peut que certaines photos soient mal détaillées, placées dans de mauvaises catégories, mal orientées, etc ...

Sur le même thème :

Devis construction de maisonArtisan
Devis construction de maison
Demandez, en 5 minutes, 3 devis comparatifs aux professionnels de votre région. Gratuit et sans engagement.
Comment connaitre l'ensoleillement d'un terrain ?
Comment connaitre l'ensoleillement d'un terrain ?
Les guides vous aident à y voir plus clair sur la construction.
Forum terrainForum
Forum terrain
Dans le forum, posez vos questions, consultez celles des autres, entraidez-vous.
Annonces de terrains
Annonces de terrains
Découvrez les outils et services exclusifs de ForumConstruire.com
Vous aussi, participez ! Envoyez vos photos !

Sélectionnez une étape :

Voir