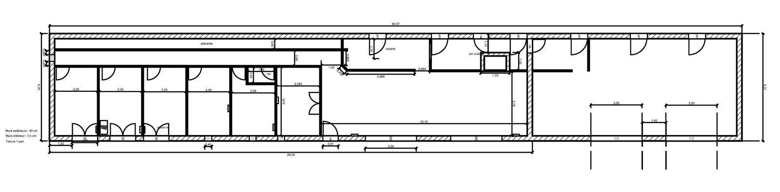
Projet de maison ossature bois avec toiture simple pente
Ce sujet comporte 17 messages et a été affiché 16.939 fois
Nouveau sujet
Répondre
|
2 abonnés surveillent ce sujet |
Membre utile
Membre utile
Membre utile
Membre utile
Membre utile
Membre utileEn cache depuis avant-hier à 06h51
Ce sujet vous a-t-il aidé ?
0
Votez !
0
Votez !
C'est intéressant aussi !
Devis Toiture
Demandez, en 5 minutes, 3 devis comparatifs aux professionnels de votre région. Gratuit et sans engagement.
Demandez, en 5 minutes, 3 devis comparatifs aux professionnels de votre région. Gratuit et sans engagement.
2
abonnés
surveillent ce sujet
surveillent ce sujet
Autres discussions sur ce sujet :
-
Un insecte dans ma charpente depuis 24 heures quoi faire?
15 réponses Forum Charpente, toiture et zinguerie -
Couvrir une pergola en fer forgé
15 réponses Forum Charpente, toiture et zinguerie -
Fissure au plafond apres modfication de fermettes
16 réponses Forum Charpente, toiture et zinguerie -
Plancher Bois sur garage : comment faut faire ? :-)
16 réponses Forum Charpente, toiture et zinguerie -
Calcul charpente avec uniquement des pannes
17 réponses Forum Charpente, toiture et zinguerie -
Croisement antiflambages et lisses bizarre
15 réponses Forum Charpente, toiture et zinguerie -
Avis sur conformité pente gouttière maison ?
15 réponses Forum Charpente, toiture et zinguerie -
Comment ma charpente est ventilé car je n'ai pas de chatière
15 réponses Forum Charpente, toiture et zinguerie -
Quel est pour vous, l'intérêt du fibre-ciment ds une toiture
16 réponses Forum Charpente, toiture et zinguerie




Nouveau sujet
Répondre


Edité 2 fois, la dernière fois il y a +15 ans.


(l'image est une de ses réalisation).



C'est intéressant aussi !




Autres discussions sur ce sujet :