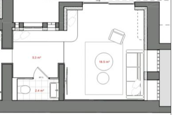
Vos idées pour notre cuisine
Ce sujet comporte 7 messages et a été affiché 356 fois
Nouveau sujet
Répondre
|
3 abonnés surveillent ce sujet |
Membre ultra utile
Membre utileEn cache depuis le mercredi 06 mai 2026 à 03h11
Ce sujet vous a-t-il aidé ?
0
Votez !
0
Votez !
C'est intéressant aussi !
Devis création de cuisine
Demandez, en 5 minutes, 3 devis comparatifs aux professionnels de votre région. Gratuit et sans engagement.
Demandez, en 5 minutes, 3 devis comparatifs aux professionnels de votre région. Gratuit et sans engagement.
Réussir sa cuisine : les conseils des membres
Les guides vous aident à y voir plus clair sur la construction.
Les guides vous aident à y voir plus clair sur la construction.
Photos de cuisines avec ilot central
Picorez des idées en parcourant les photos des constructions des autres !
Picorez des idées en parcourant les photos des constructions des autres !
10 idées de cuisines aux meubles laqués blancs et bois
L'équipe de Forum Construire sélectionne pour vous les plus belles photos des membres et du web.
L'équipe de Forum Construire sélectionne pour vous les plus belles photos des membres et du web.
3
abonnés
surveillent ce sujet
surveillent ce sujet
Autres discussions sur ce sujet :
-
Besoin de conseils tech / pose évier et plans de travail
6 réponses Forum Cuisine : aménagement et décoration -
cuisine BUT - voici mon projet
6 réponses Forum Cuisine : aménagement et décoration -
Idée cuisine avec entrée intégrée
5 réponses Forum Cuisine : aménagement et décoration -
Casserolier ou étagères pour les assiettes
7 réponses Forum Cuisine : aménagement et décoration -
Implantation cuisine et coin tv
5 réponses Forum Cuisine : aménagement et décoration -
Comment découper un plan de travail ?
5 réponses Forum Cuisine : aménagement et décoration -
Profondeur meuble qui dépasse le mur
5 réponses Forum Cuisine : aménagement et décoration -
Aménagement d'un séjour/cuisine de 24 m²
5 réponses Forum Cuisine : aménagement et décoration -
Chute d'un mobilier de cuisine
7 réponses Forum Cuisine : aménagement et décoration




Nouveau sujet
Répondre





, évidemment ça part.







C'est intéressant aussi !




Autres discussions sur ce sujet :