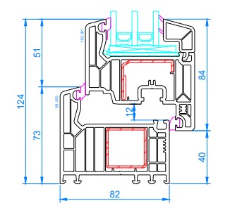
Choix menuiseries exterieurs TV DV et chassis différents
Ce sujet comporte 8 messages et a été affiché 218 fois
Nouveau sujet
Répondre
|
1 personne surveille ce sujet |
Nouvel Aviseur
Membre utile
Nouvel Aviseur
Membre utile
Nouvel Aviseur
Membre utile
Nouvel Aviseur
Nouvel AviseurEn cache depuis le dimanche 24 mai 2026 à 08h15
Ce sujet vous a-t-il aidé ?
0
Votez !
0
Votez !
C'est intéressant aussi !
Devis fenêtres
Demandez, en 5 minutes, 3 devis comparatifs aux professionnels de votre région. Gratuit et sans engagement.
Demandez, en 5 minutes, 3 devis comparatifs aux professionnels de votre région. Gratuit et sans engagement.
23 idées de jolies portes d'entrée
L'équipe de Forum Construire sélectionne pour vous les plus belles photos des membres et du web.
L'équipe de Forum Construire sélectionne pour vous les plus belles photos des membres et du web.
1
personne
surveille ce sujet
surveille ce sujet
Autres discussions sur ce sujet :
-
Doute sur menuiseries Alu installées
7 réponses Forum Menuiserie et isolation -
Pose de fenetre K-line en tableau
6 réponses Forum Menuiserie et isolation -
Pose de mes menuiseries non conforme
8 réponses Forum Menuiserie et isolation -
Infiltration par seuil de porte : solution = carrelage ?
7 réponses Forum Menuiserie et isolation -
Rayures sur menuiseries aluminium noir 2100 sablé
3 réponses Forum Menuiserie et isolation -
Combler espace entre menuiserie et carrelage d'une baie vitrée
6 réponses Forum Menuiserie et isolation -
menuiseries MENBAT alu noir extérieur et soleil
8 réponses Forum Menuiserie et isolation -
Comment poser une poignée extérieure sur une baie vitrée?
7 réponses Forum Menuiserie et isolation -
Nouvelle construction : menuiseries Millet ou Bouvet ?
3 réponses Forum Menuiserie et isolation




Nouveau sujet
Répondre






C'est intéressant aussi !




Autres discussions sur ce sujet :