Retour
Menu utilisateur
Menu

Photos et idées Autres

Trouvez des idées en parcourant les photos des autres !
Ordre d'affichage :
Niveau posé sur le bac de douche extra plat... On comprend pourquoi l'eau stagne d'un côté...
 
Niveau posé sur le bac de douche extra plat... On comprend ...
Plan SDB
1
Plan SDB
Meuble 3 tiroirs derrière
 
1
Meuble 3 tiroirs derrière
Grange jouxtant la maison, il y a un plancher en bois qui a déjà été fait. Au premier étage, on voit la chambre 2 pour laquelle il faudra bâtir un mur de séparation pour l'isoler de la grange.
 
1
Grange jouxtant la maison, il y a un plancher en bois qui a déjà ...
Détail receveur
2
Détail receveur
Façade sud, vue du futur jardin, l'excédent de terre a été étalé sur le terrain.
Façade sud, vue du futur jardin, l'excédent de terre ...
Chantier pause dej et  gardiennage
 
1
Chantier pause dej et gardiennage
Notre futur cuisine
Notre futur cuisine
Pose de la balustrade de mezzanine
Pose de la balustrade de mezzanine
Autre vue
1
Autre vue
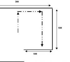
Receveur WEDI 150 x 150 donc à couper à l'ouverture de ma douche 150 x 100
Receveur WEDI 150 x 150 donc à couper à l'ouverture ...
Traces de moisissures sur la peinture
 
Traces de moisissures sur la peinture
WC avant le début des travaux
WC avant le début des travaux
Detail visse
Detail visse
La traditionnelle souillarde querçynoise avec ses belles pierres où l'on faisait la vaisselle jadis.
La traditionnelle souillarde querçynoise avec ses belles pierres ...
Vue arriere
1
Vue arriere
Un jour
1
Un jour
Pour accéder aux combles, j'ai un espace relativement réduit pour poser l'escalier. je pense faire faire un 1/2 tournant. Pour le moment la seule solution que j'ai trouvé en escalier "standard" vient de chez ARKE. 
Avez-vous des idée sur le type d'escalier que je pourrais faire réaliser ?
1
Pour accéder aux combles, j'ai un espace relativement réduit ...
Idem
on voit encore que le carrelage est scellé sur mortier (ce qui coute beaucoup moins cher au constructeur,)
les pieds de porte et les canalisations ne sont pas désolidarisées,
le mortier sèche sur place, les canalisations sont noyées
1
Idem on voit encore que le carrelage est scellé sur mortier ...
Le bac a douche italienne a carreler nu, faience a presque 1cm.
Le bac a douche italienne a carreler nu, faience a presque 1cm.
Projet sur sketchup vue 1
Projet sur sketchup vue 1
Projet de salle de bain avec douche italienne
1
Projet de salle de bain avec douche italienne
Découpe à la scie sauteuse
Découpe à la scie sauteuse
Vue de face
 
Vue de face


Plan cuisine
1
Plan cuisine
Vue générale du conduit de cheminée avant l'installation du coffrage qui se trouve dans le placard.
Vue générale du conduit de cheminée avant l'installation ...
Devis imagé de la cuisine
1
Devis imagé de la cuisine
Pose d'un système coulissant couloir - sdb 
de chaque coté du couloir mur porteur à gauche et huisserie bois grise à droite.
Pose d'un système coulissant couloir - sdb de chaque coté ...
Ici le futur evier
Ici le futur evier
Voici la photo des machines qui ont asséchées le placo et la laine de verre
1
Voici la photo des machines qui ont asséchées le placo ...
Plan détaillé de la cuisine
Plan détaillé de la cuisine
Première fixation du faux plafond dans le prolongement du mur
Première fixation du faux plafond dans le prolongement du mur
Crédence cuisine
1
Crédence cuisine
Voici les pierres de tailles que j'aimerais poser sur mon mur
1
Voici les pierres de tailles que j'aimerais poser sur mon mur
2ème vue
4
2ème vue
Notre projet cuisine 1
Notre projet cuisine 1
Mise en place d'une porte de couloir.
Mise en place d'une porte de couloir.
Porte de douche 2
1
Porte de douche 2
Vue du salon
1
Vue du salon
Fuite au niveau des bouches d'aération réalisée après la remise des terres
1er appel au constructeur pour expliquer le problème... nous pensions que l'étanchéité, le delta MS avait été abimé lors de la réalisation des trous > réponse: pas possible > il refait alors soir disant les joints autour des bouches.
Cette photo a été prise au début d'une averse après la réalisation de ces joints 
>rappel du constructeur..... réponse après 1 mois 1/2 : nous allons peut être recreuser autour de la maison pour refaire l'étanchéité ! je vous rappelle demain : nous attendons toujours !!!!!ça fait 2 semaines maintenant
Fuite au niveau des bouches d'aération réalisée ...
Contruction du banc de douche
 
1
Contruction du banc de douche
Abris intérieur avant travaux
 
1
Abris intérieur avant travaux
La salle de bain de notre maison simple et efficace
La salle de bain de notre maison simple et efficace
Vision générale du remblai
 
Vision générale du remblai
Quel évacuation utiliser? La ronde la plus haute?
2
Quel évacuation utiliser? La ronde la plus haute?
Alarme complète
 
1
Alarme complète
Plan cuisine vue de face
Plan cuisine vue de face
Humidité mur
1
Humidité mur
Plan V1 de la future cuisine rénovée
 
1
Plan V1 de la future cuisine rénovée
Toilettes invités
1
Toilettes invités
Notre future cuisine
 
2
Notre future cuisine
Platine exterieure
 
1
Platine exterieure
Trou / fissure profondes sur le côté de la fenêtre
Trou / fissure profondes sur le côté de la fenêtre
Après avoir enlevé la cabine de douche
Après avoir enlevé la cabine de douche
Ceci est le toit de mon garage (toit terrasse), l'eau ne s'écoule pas, c'est une vraie piscine et un futur nid à moustiques en période estivale...
Ceci est le toit de mon garage (toit terrasse), l'eau ne s'écoule ...
Entrée d\'air hygroréglable VMC Anjos - Vis de réglage
1
Entrée d\'air hygroréglable VMC Anjos - Vis de réglage
Construction de la structure qui portera le plancher en bois. chevrons 50*75. tous les 45cm car plancher en osb3 18mn. et cales (ou autres chevrons) entre chevrons et bauge pour que le sol reste plat et solide.
Construction de la structure qui portera le plancher en bois. chevrons ...
Mur tv et plafond fini d'etre plaqué
Mur tv et plafond fini d'etre plaqué
Chape avant carrelage
Chape avant carrelage
Cheminée imposante ... que faire pour en faire une solution de chauffage ?
Cheminée imposante ... que faire pour en faire une solution ...
Manque la chape (au moins 2 cm)
Manque la chape (au moins 2 cm)
Litige artisan cuisine
Litige artisan cuisine
Mise en place de la base
Mise en place de la base
Mise à jour du réseau envisagé.
1
Mise à jour du réseau envisagé.
Entrée d'air hygroréglable VMC Anjos - Vis de réglage
1
Entrée d'air hygroréglable VMC Anjos - Vis de réglage


Les photos autres sont déposées et décrites par les membres eux mêmes, sans aucun contrôle de la part de ForumConstruire.com. De ce fait, il se peut que certaines photos soient mal détaillées, placées dans de mauvaises catégories, mal orientées, etc ...

Sur le même thème :

Devis construction de maisonArtisan
Devis construction de maison
Demandez, en 5 minutes, 3 devis comparatifs aux professionnels de votre région. Gratuit et sans engagement.
Faire construire : le guide du débutant
Faire construire : le guide du débutant
Les guides vous aident à y voir plus clair sur la construction.
Les 10 maisons les plus extraordinaires des membres de Forum Construire
Les 10 maisons les plus extraordinaires des membres ...
L'équipe de Forum Construire sélectionne pour vous les plus belles photos des membres et du web.
Forum Forum
Forum "faire construire, par où commencer ?"
Dans le forum, posez vos questions, consultez celles des autres, entraidez-vous.
Vous aussi, participez ! Envoyez vos photos !

Sélectionnez une étape :

Voir