Retour
Menu utilisateur
Menu

Photos et idées Plan de maison

Trouvez des idées en parcourant les photos des autres !
Ordre d'affichage :
Plans sous sol
Plans sous sol
Plan de base du modele
1
Plan de base du modele
Plan masse
 
2
Plan masse
Vu de l'étage
 
1
Vu de l'étage
Étage
 
Étage
Plans façades
 
1
Plans façades
Nous avons travaillé avec notre architecte François BERNIER à Pérouges.
Voici les plans qu'il nous a proposés.

C'était une maison non habitée depuis 5 ans. 
Seul l'étage avait était occupé. Le rez de chaussée servait de débarras. 
C'était une maison de 170 m2 avec pleins de petites piièces et de longs couloirs. 
Nous voulions bénéficier d'une belle vue sur la campagne, aussi nous avons décidé avec l'architecte, de mettre les pièces à vivre et une chambre parentale au premier étage avec la terrasse d'hiver et les chambres enfants et bureau au rez de chaussée. 
A chaque étage, il y a une salle de bain et des toilettes.
Les plans ont été un peu modifiés pendant les travaux. 
Nous avons fait déplacer les escaliers afin d'avoir une entrée plus grande.
Nous avons ajouté un vélux dans la chambre parentale
Nous avons travaillé avec notre architecte François ...
Combles chambre parentale
 
2
Combles chambre parentale
Plan de coupe
1
Plan de coupe
Plan du rez-de-chaussée
 
Plan du rez-de-chaussée
Vue Face Avant
 
Vue Face Avant
Plan RDC esquisse
 
1
Plan RDC esquisse
Ebauche de l'étage
Ebauche de l'étage
1er plan effectué
 
2
1er plan effectué
Plan RDC avec garage intégré
 
Plan RDC avec garage intégré
Plan RDC
 
1
Plan RDC
Plan Etage
2
Plan Etage
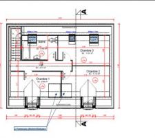
Plan avec mesures
 
1
Plan avec mesures
Vue d'ensemble
Vue d'ensemble
Plan détaillé
1
Plan détaillé
Façade de la maison Avant / Arrière
Façade de la maison Avant / Arrière
Face arrière
Face arrière
Sous sol
 
Sous sol
Test de plan avec escalier central
 
1
Test de plan avec escalier central


Sous-sol et Vide Sanitaire
Sous-sol et Vide Sanitaire
Vue de l'entrée, ancien garage réaménagé
Vue de l'entrée, ancien garage réaménagé
Le salon de la petite maison. La fenêtre va être agrandie et va devenir une baie vitrée donnant sur une terrasse plein sud.
 
Le salon de la petite maison. La fenêtre va être agrandie ...
Plan contractuel du modèle ORLÉANS 
Et plans électriques RDV + étage
Plan contractuel du modèle ORLÉANS Et plans électriques ...
Façade ouest
Façade ouest
Plan de maison en L
Plan de maison en L
Cuisine de chez EcoCuisine
Cuisine de chez EcoCuisine
Le projet initial avec l'accès fauteuil autour de la maison + piscine.
Le projet initial avec l'accès fauteuil autour de la maison ...
Plan de notre rez de chaussées
 
1
Plan de notre rez de chaussées
Plan du 1er étage sous combles
1
Plan du 1er étage sous combles
Vue 3D
Vue 3D
Proposition 4
 
1
Proposition 4
Plan avec piscine coté
1
Plan avec piscine coté
Vues d'ensemble côté Ouest et Sud
 
Vues d'ensemble côté Ouest et Sud
Façade côté jardin/terrasse et façade côté accès terrain
Façade côté jardin/terrasse et façade côté ...
.
1
.
Vue de dessus
 
1
Vue de dessus
Sous sol
 
1
Sous sol
Plan cuisine
Plan cuisine
Après signature du terrain et achat en avril 2018 chez le notaire avec obtention du permis de construire effectué par EPC, le traçage en vue du démarrage de chantier s?est fait rapidement.
 
Après signature du terrain et achat en avril 2018 chez le notaire ...
Le 1er étage
Le 1er étage
Version avec vide sur SAM et cuisine au Nord + fenêtre de toit
1
Version avec vide sur SAM et cuisine au Nord + fenêtre de toit
La disposition des pièces définitive au rez-de-chaussée
La disposition des pièces définitive au rez-de-chaussée
Plan avec déco - R+1
 
Plan avec déco - R+1
Plan V3 (Permis de Construire)
1
Plan V3 (Permis de Construire)
Plan cuisine
Plan cuisine
Plan RDC au moment de la vente.
 
1
Plan RDC au moment de la vente.
Vu 3D
1
Vu 3D
Rdc 3d
 
Rdc 3d
Plan du 1 er étage
 
Plan du 1 er étage
Voilà le premier jeu de plan... un peu déçu 3 semaines d?attente pour un plan pleins d?erreurs... la gaine technique dans le chambre 2 va nous poser souci je pense..
 
Voilà le premier jeu de plan... un peu déçu 3 ...
Vue du dessus  et implantation de ma maison sur mon terrain
1
Vue du dessus et implantation de ma maison sur mon terrain
Plan de façade car pas encore fait de vue 3d
 
Plan de façade car pas encore fait de vue 3d
Notre sous sol
Notre sous sol
étage
2
étage
Vue en perspective du RDC avec de l'ameublement pour mieux se rendre compte
 
Vue en perspective du RDC avec de l'ameublement pour mieux se rendre ...
Plan d'aménagement de l'étage
 
Plan d'aménagement de l'étage
Vu des facades PC
 
Vu des facades PC
Chambre parents test 2
1
Chambre parents test 2
Plan du rez de chaussée avec quelques modifications minime apportées comme par exemple un cellier buanderie fermé tout le fond du garage et une cuisine fermé par une verrière
Plan du rez de chaussée avec quelques modifications minime ...
La cuisine
 
La cuisine


Les photos plan de maison sont déposées et décrites par les membres eux mêmes, sans aucun contrôle de la part de ForumConstruire.com. De ce fait, il se peut que certaines photos soient mal détaillées, placées dans de mauvaises catégories, mal orientées, etc ...

Sur le même thème :

Devis plan de maisonArtisan
Devis plan de maison
Demandez, en 5 minutes, 3 devis comparatifs aux professionnels de votre région. Gratuit et sans engagement.
25 erreurs à éviter dans son plan de maison
25 erreurs à éviter dans son plan de maison
Les guides vous aident à y voir plus clair sur la construction.
Les 10 maisons les plus extraordinaires des membres de Forum Construire
Les 10 maisons les plus extraordinaires des membres ...
L'équipe de Forum Construire sélectionne pour vous les plus belles photos des membres et du web.
Demandez l'avis des autres membres sur votre planForum
Demandez l'avis des autres membres sur votre plan
Dans le forum, posez vos questions, consultez celles des autres, entraidez-vous.
Vous aussi, participez ! Envoyez vos photos !

Sélectionnez une étape :

Choisissez les détails :


Visualiser les photos correspondant à :
au moins un choix
tous les choix
Voir