Retour
Menu utilisateur
Menu

Photos et idées Plan de maison

Trouvez des idées en parcourant les photos des autres !
Ordre d'affichage :
Voici un plan 3d de la parti intérieur côté entrée salon cuisine.
1
Voici un plan 3d de la parti intérieur côté entrée ...
Plan 1er etage
1
Plan 1er etage
Rez de chaussée
1
Rez de chaussée
Vide sanitaire/sous sol
1
Vide sanitaire/sous sol
Facade
1
Facade
Les différentes façades
1
Les différentes façades
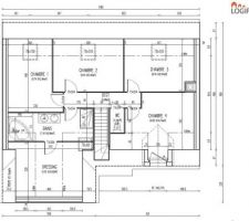
Plan RDC
1
Plan RDC
Et la version nº3 !
1
1
Et la version nº3 !
Plan de notre maison, il y a juste eu deux changements, la fenêtre de la cuisine et celle du bureau sont en 100 et non en 80.
1
1
Plan de notre maison, il y a juste eu deux changements, la fenêtre ...
Vue coté sud et est
 
1
Vue coté sud et est
Vue de la façade
1
1
Vue de la façade
LE PLAN DE NOTRE MAISON LE VOICI:
IL Y A DEUX CHAMBRES QUIDONNE DEVANT, LE SALON/SEJOUR, LA SALLE DE BAIN QUI FAIT 7M2 ET QUI SERA EQUIPE D'UNE DOUCHE ITALIENNE, ET LES WC A L'INTERIEUR, UNE BUANDERIE POUR METTRE LA MACHINE A LAVER, LE CUMULUS ET LES BALAIS ETC....
DANS LE SALON IL Y AURA UN FOYER/INSERT, UN PLACARD AVEC DEUX PORTE MIROIRS, LA CUISINE SERA DE COULEUR ROUGE, ET DONNERA DIRECTEMENT DANS LE JARDIN
IL YA AURA BIEN SUR UN ESCALIER 1/4 TOURNANT BAS QUI DONNER SUR LES COMBLES
1
LE PLAN DE NOTRE MAISON LE VOICI: IL Y A DEUX CHAMBRES QUIDONNE DEVANT, ...
Nouvelle version!
2
1
Nouvelle version!
Plan interieur
1
Plan interieur
Projet de drainage
1
1
Projet de drainage
Côté ouest
1
Côté ouest
Plan de la maison
 
1
1
Plan de la maison
Plan du rez de chaussée
1
Plan du rez de chaussée
Cuisine trend sans angle
1
Cuisine trend sans angle
Facade avant
 
1
1
Facade avant
Vue de la maison derrière
 
1
Vue de la maison derrière
Terrasse non couverte au sud sud est et réservation piscine
1
1
Terrasse non couverte au sud sud est et réservation piscine
Plan RDC
 
1
Plan RDC
Etage modifié
2
1
Etage modifié


Nouveau projet plan
1
Nouveau projet plan
Il s'agit du rez de chaussé pour la partie jour, la partie nuit est située au dessus du sous sol et donc pas au niveau rez de chaussé
1
1
Il s'agit du rez de chaussé pour la partie jour, la partie ...
Plan de l'étage de la maison
 
1
Plan de l'étage de la maison
Plan
1
Plan
Maquette au 1/30ème de notre maison
Un plaisir personnel mais au combien précieux (à mon gout) et qui en jette !

Ceci dit, grace à cette maquette, nous nous sommes aperçus de pas mal d'erreurs aussitôt corrigées sur le plan définitif.

En revanche, je laisserai la maquette telle quelle, en souvenir.
1
Maquette au 1/30ème de notre maison Un plaisir personnel mais ...
Plan maison 1
1
1
Plan maison 1
2ème prise de vue du rdc
9
1
2ème prise de vue du rdc
Rdc
1
Rdc
Plan de la maison
1
1
Plan de la maison
Vue nord
 
1
Vue nord
Plan étage
 
1
Plan étage
Vue d'ensemble de la maison par l'avant.
Plan 3D créé avec sweet home 3D
1
Vue d'ensemble de la maison par l'avant. Plan 3D créé ...
RdC
1
RdC
Plan de la maison VERSION 3 :
- augmentation de la taille de la SDB qui passe à plus de 9 m², avec décallage de la cloison
- diminution de la taille du salon / SàM d'environ 2 m²
Projet qui nous semble plus pertinent ?!
1
Plan de la maison VERSION 3 : - augmentation de la taille de la SDB ...
Étage se composant de 4 chambres avec placard intérégré et d'une salle de bain avec une baignoire, douche, lavabo et wc d'appoint
1
Étage se composant de 4 chambres avec placard intérégré ...
Vue coté jardin

Cette illustration n'est pas libre d'utilisation.
1
Vue coté jardin Cette illustration n'est pas libre d'utilisation.
Plan RDC
 
1
Plan RDC
Vu face avant
1
Vu face avant
Une vue des façades, nous souhaitons des volets coulissants en bois sur la façade sud.
 
1
Une vue des façades, nous souhaitons des volets coulissants ...
Le plan définitif
1
Le plan définitif
Voici une autre idée, tout en décroché
1
Voici une autre idée, tout en décroché
Plan du rdc.
1
Plan du rdc.
Rendu final
1
Rendu final
Plan de la maison, 3 chambre, un bureau, une sdb, dressing, cuisine ouverte, garage, terrasse d'angle couverte.
1
Plan de la maison, 3 chambre, un bureau, une sdb, dressing, cuisine ...
Toujours le crépi gris au lieu de beige
1
Toujours le crépi gris au lieu de beige
La vue 3D
1
La vue 3D
Futurs combles qui seront faits plus tard.
1
Futurs combles qui seront faits plus tard.
Projection façade arrière
1
1
Projection façade arrière
Plan RDC espace vie et espace nuit
 
1
Plan RDC espace vie et espace nuit
Façade avant.
 
1
1
Façade avant.
Plan définitif
 
1
1
Plan définitif
Vue facade Est
1
Vue facade Est
Facade sud et est
1
1
Facade sud et est
Insertion 3D de la maison par le contructeur
1
Insertion 3D de la maison par le contructeur
Plan de masse face nord
 
2
1
Plan de masse face nord
Dessin de la maison
 
1
Dessin de la maison
Vue de l'arrière
 
1
1
Vue de l'arrière
Rez de chaussée
2
1
Rez de chaussée
Façade sud
 
1
1
Façade sud
Voici un des visuels de la maison. Une maison de 210m2, avec un étage et un garage. Un mixte d?enduit et de briques et de grandes baies vitrées pour donner un maximum de luminosité à la maison.
1
Voici un des visuels de la maison. Une maison de 210m2, avec un étage ...
PC v1 RdC
 
1
1
PC v1 RdC


Les photos plan de maison sont déposées et décrites par les membres eux mêmes, sans aucun contrôle de la part de ForumConstruire.com. De ce fait, il se peut que certaines photos soient mal détaillées, placées dans de mauvaises catégories, mal orientées, etc ...

Sur le même thème :

Devis plan de maisonArtisan
Devis plan de maison
Demandez, en 5 minutes, 3 devis comparatifs aux professionnels de votre région. Gratuit et sans engagement.
25 erreurs à éviter dans son plan de maison
25 erreurs à éviter dans son plan de maison
Les guides vous aident à y voir plus clair sur la construction.
Demandez l'avis des autres membres sur votre planForum
Demandez l'avis des autres membres sur votre plan
Dans le forum, posez vos questions, consultez celles des autres, entraidez-vous.
Tour de France : 10 constructions typiques de nos régions (revisitées ou non)
Tour de France : 10 constructions typiques de nos régions ...
L'équipe de Forum Construire sélectionne pour vous les plus belles photos des membres et du web.
Vous aussi, participez ! Envoyez vos photos !

Sélectionnez une étape :

Choisissez les détails :


Visualiser les photos correspondant à :
au moins un choix
tous les choix
Voir