Photos et idées Travaux de finitions
Trouvez des idées en parcourant les photos des autres !Ordre d'affichage :
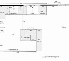
Les photos travaux de finitions sont déposées et décrites par les membres eux mêmes, sans aucun contrôle de la part de ForumConstruire.com. De ce fait, il se peut que certaines photos soient mal détaillées, placées dans de mauvaises catégories, mal orientées, etc ...
Sur le même thème :
Devis pose carrelage
Demandez, en 5 minutes, 3 devis comparatifs aux professionnels de votre région. Gratuit et sans engagement.
Demandez, en 5 minutes, 3 devis comparatifs aux professionnels de votre région. Gratuit et sans engagement.
Decoration : quel professionnel Choisir ?
Les guides vous aident à y voir plus clair sur la construction.
Les guides vous aident à y voir plus clair sur la construction.
12 idées de salons scandinaves
L'équipe de Forum Construire sélectionne pour vous les plus belles photos des membres et du web.
L'équipe de Forum Construire sélectionne pour vous les plus belles photos des membres et du web.
Vous aussi, participez ! Envoyez vos photos !



Aide


































































