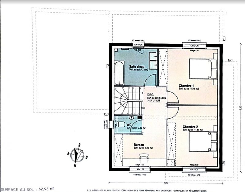
Analyse plan maison R+1 -130 m²
Ce sujet comporte 2 messages et a été affiché 181 fois
Nouveau sujet
Répondre
|
1 personne surveille ce sujet |
Membre super utileEn cache depuis aujourd'hui à 19h53
Ce sujet vous a-t-il aidé ?
0
Votez !
0
Votez !
C'est intéressant aussi !
Devis plan de maison
Demandez, en 5 minutes, 3 devis comparatifs aux professionnels de votre région. Gratuit et sans engagement.
Demandez, en 5 minutes, 3 devis comparatifs aux professionnels de votre région. Gratuit et sans engagement.
25 erreurs à éviter dans son plan de maison
Les guides vous aident à y voir plus clair sur la construction.
Les guides vous aident à y voir plus clair sur la construction.
Les 10 maisons les plus extraordinaires des membres ...
L'équipe de Forum Construire sélectionne pour vous les plus belles photos des membres et du web.
L'équipe de Forum Construire sélectionne pour vous les plus belles photos des membres et du web.
1
personne
surveille ce sujet
surveille ce sujet
Autres discussions sur ce sujet :
-
plan aménagement chambre.
14 réponses Forum Plans de maisons -
Dimension cellier / buanderie.
16 réponses Forum Plans de maisons -
Bonjour nous venons d acheter une maison de plain pied de 94m2 avec sous sol total. Pouvez vous nous aider à optimiser
1 réponses Forum Plans de maisons -
Problème respect plan conduit poele + plomberie sdb
0 réponses Forum Plans de maisons -
plan maison 110m2
10 réponses Forum Plans de maisons -
plan de maison investissement locatif
1 réponses Forum Plans de maisons
Résolu -
plan maison plain pied 80-85m2 avec beaucoup de contraintes
0 réponses Forum Plans de maisons -
Avis sur mon plan de maison :)
458 réponses Forum Plans de maisons -
Aide plan maison par rapport à orientation terrain
2 réponses Forum Plans de maisons
Résolu




Nouveau sujet
Répondre





C'est intéressant aussi !




Autres discussions sur ce sujet :
Résolu