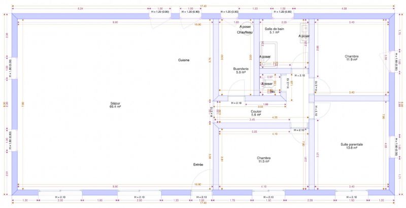
CHoix de la puissance d'un gainable pour 120m2
Ce sujet comporte 7 messages et a été affiché 190 fois
Nouveau sujet
Répondre
|
2 abonnés surveillent ce sujet |
En cache depuis le samedi 21 février 2026 à 10h09
Ce sujet vous a-t-il aidé ?
0
Votez !
0
Votez !
C'est intéressant aussi !
Devis pompe à chaleur air/air
Demandez, en 5 minutes, 3 devis comparatifs aux professionnels de votre région. Gratuit et sans engagement.
Demandez, en 5 minutes, 3 devis comparatifs aux professionnels de votre région. Gratuit et sans engagement.
Photos installations chauffages
Picorez des idées en parcourant les photos des constructions des autres !
Picorez des idées en parcourant les photos des constructions des autres !
2
abonnés
surveillent ce sujet
surveillent ce sujet
Autres discussions sur ce sujet :
-
Conseil installation clim salon avec veranda attenante
6 réponses Forum Chauffage, climatisation et ventilation -
R134a au lieu de R407
6 réponses Forum Chauffage, climatisation et ventilation -
Finalement j'ai opté pour cette climatisation mobile
6 réponses Forum Chauffage, climatisation et ventilation -
Puissance Installation Clim gainable
8 réponses Forum Chauffage, climatisation et ventilation -
Suggestions de climatisation non réversible gainable pour combles : quel modèle conviendrait le mieux à mon installation
1 réponses Forum Chauffage, climatisation et ventilation -
Une climatisation gainable pour diffuser la chaleur de la cheminée ?
4 réponses Forum Chauffage, climatisation et ventilation -
Aide choix puissance climatisation
6 réponses Forum Chauffage, climatisation et ventilation -
Climatisation gainable : besoin de conseils techniques sur proposition - merci
3 réponses Forum Chauffage, climatisation et ventilation -
Ma climatisation gainable AIRZONE EASYZONE génère un léger courant d'air frais lorsque le système est à l'arrêt.
1 réponses Forum Chauffage, climatisation et ventilation




Nouveau sujet
Répondre



C'est intéressant aussi !




Autres discussions sur ce sujet :