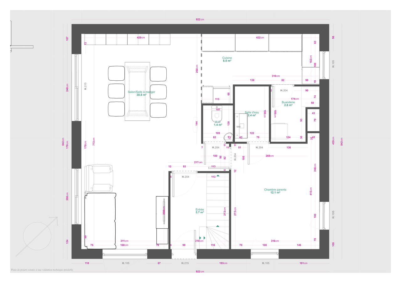
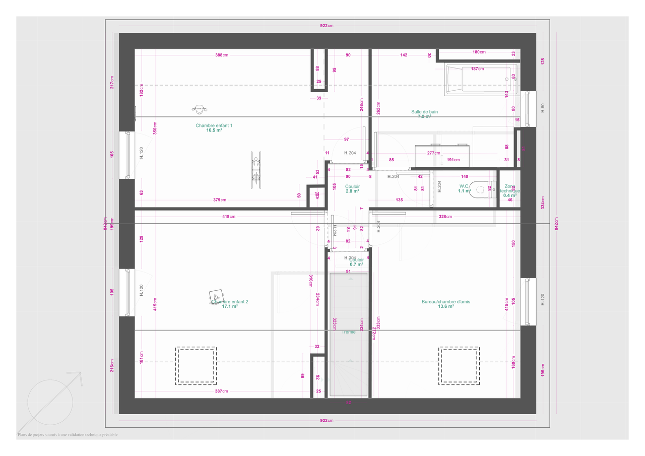
Avis sur plan de maison R+1 122m2
Ce sujet comporte 7 messages et a été affiché 280 fois
Nouveau sujet
Répondre
|
2 abonnés surveillent ce sujet |
Membre utile
Membre utile
Membre utileEn cache depuis le jeudi 16 avril 2026 à 19h23
Ce sujet vous a-t-il aidé ?
0
Votez !
0
Votez !
C'est intéressant aussi !
Devis plan de maison
Demandez, en 5 minutes, 3 devis comparatifs aux professionnels de votre région. Gratuit et sans engagement.
Demandez, en 5 minutes, 3 devis comparatifs aux professionnels de votre région. Gratuit et sans engagement.
25 erreurs à éviter dans son plan de maison
Les guides vous aident à y voir plus clair sur la construction.
Les guides vous aident à y voir plus clair sur la construction.
Tour de France : 10 constructions typiques de nos régions ...
L'équipe de Forum Construire sélectionne pour vous les plus belles photos des membres et du web.
L'équipe de Forum Construire sélectionne pour vous les plus belles photos des membres et du web.
2
abonnés
surveillent ce sujet
surveillent ce sujet
Autres discussions sur ce sujet :
-
Trouver plan de ce type de maison
6 réponses Forum Plans de maisons -
Demande avis sur plan maison 140m2 (Fenêtres type meurtrière)
6 réponses Forum Plans de maisons -
Cave dans vide sanitaire possible ??
6 réponses Forum Plans de maisons -
Redistribution pièces plan (rénovation maison)
6 réponses Forum Plans de maisons -
Avis sur plan de maison 85m2
6 réponses Forum Plans de maisons -
Demande avis pour plans maison 150 m²
6 réponses Forum Plans de maisons -
Orientation de la porte d'entrée
6 réponses Forum Plans de maisons -
Avis et conseils sur plan constructeur maison R+1
6 réponses Forum Plans de maisons -
Votre avis sur l'aménagement de l'entrée et du salon
6 réponses Forum Plans de maisons




Nouveau sujet
Répondre









C'est intéressant aussi !




Autres discussions sur ce sujet :