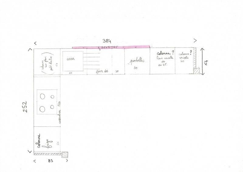
Plan de notre cuisine: on est perdus, besoin de vos avis éclairés
Ce sujet comporte 3 messages et a été affiché 201 fois
Nouveau sujet
Répondre
|
1 personne surveille ce sujet |
Membre super utileEn cache depuis le mercredi 18 mars 2026 à 05h34
Ce sujet vous a-t-il aidé ?
0
Votez !
0
Votez !
C'est intéressant aussi !
Devis création de cuisine
Demandez, en 5 minutes, 3 devis comparatifs aux professionnels de votre région. Gratuit et sans engagement.
Demandez, en 5 minutes, 3 devis comparatifs aux professionnels de votre région. Gratuit et sans engagement.
Réussir sa cuisine : les conseils des membres
Les guides vous aident à y voir plus clair sur la construction.
Les guides vous aident à y voir plus clair sur la construction.
16 superbes cuisines avec ilôt central
L'équipe de Forum Construire sélectionne pour vous les plus belles photos des membres et du web.
L'équipe de Forum Construire sélectionne pour vous les plus belles photos des membres et du web.
Photos de cuisines avec ilot central
Picorez des idées en parcourant les photos des constructions des autres !
Picorez des idées en parcourant les photos des constructions des autres !
1
personne
surveille ce sujet
surveille ce sujet
Autres discussions sur ce sujet :
-
plan de notre future cuisine qu'en pensez vous?
49 réponses Forum Cuisine : aménagement et décoration -
Poubelle dans plan de travail
39 réponses Forum Cuisine : aménagement et décoration -
plan de cuisine... dur dur d'être objectif
50 réponses Forum Cuisine : aménagement et décoration -
Vos avis sur mon plan de cuisine - version 3 p2 - Merci !
55 réponses Forum Cuisine : aménagement et décoration -
Îlot avec plaque a induction et plancher chauffant
3 réponses Forum Cuisine : aménagement et décoration
Résolu -
1er plan de cuisine avec kitchenDraw...
55 réponses Forum Cuisine : aménagement et décoration -
Mes plans, vos commentaires...
79 réponses Forum Cuisine : aménagement et décoration -
Avis plan cuisine fermée en i (avec verrière atelier)
3 réponses Forum Cuisine : aménagement et décoration -
Quelle implantation choisir pour une cuisine ouverte avec coin repas ?
8 réponses Forum Cuisine : aménagement et décoration




Nouveau sujet
Répondre










C'est intéressant aussi !




Autres discussions sur ce sujet :
Résolu