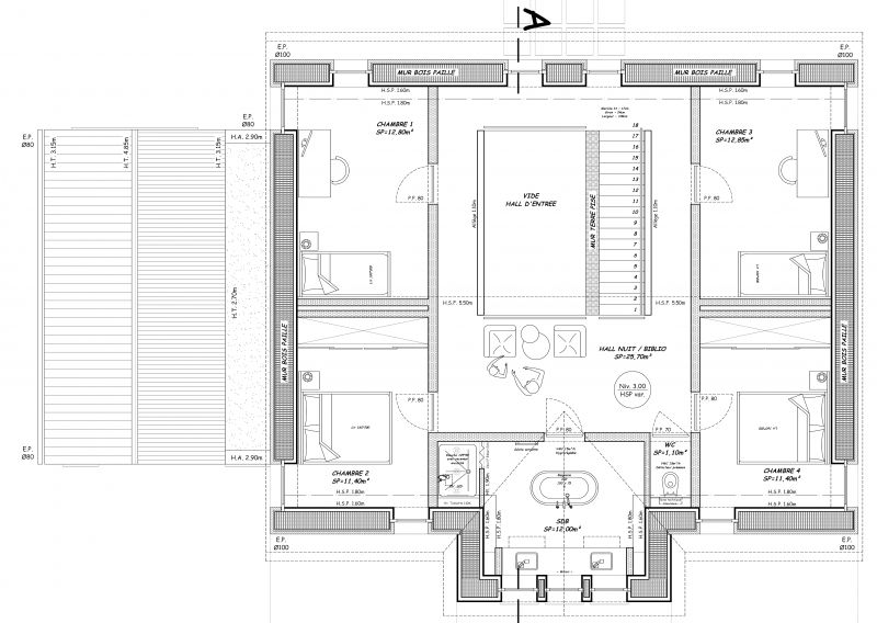
Avis sur la charpente par rapport au plan fait par architecte
Ce sujet comporte 1 message et a été affiché 94 fois
										
				
											
																							   Nouveau sujet 
																						
																							  Répondre    
																																	 
									 | 
									
							
										 1  personne surveille ce sujet  | 
								
Généré à l'aide d'une IA
							En cache depuis le samedi 01 novembre 2025 à 23h14
							
							Ce sujet vous a-t-il aidé ?
							
								
									
								
							
								
									
								
						
					
						
										0
									
								Votez !
							
										0
									
								Votez !
							
 C'est intéressant aussi !
									
			
			Devis Toiture
Demandez, en 5 minutes, 3 devis comparatifs aux professionnels de votre région. Gratuit et sans engagement.
									
									
									
				Demandez, en 5 minutes, 3 devis comparatifs aux professionnels de votre région. Gratuit et sans engagement.
		1
 personne
surveille ce sujet
surveille ce sujet
 Autres discussions sur ce sujet :
				- 
									
									Bruits fort craquements charpente ou plafond ?
29 réponses Forum Charpente, toiture et zinguerie - 
									
									Modification charpente - Pose velux dans panne ventrière...
22 réponses Forum Charpente, toiture et zinguerie - 
									
									Comment faire un renforcement de charpente
20 réponses Forum Charpente, toiture et zinguerie
 Résolu									 - 
									
									charpente fermette entraxe 60cm : qu'est-ce que cela signifie exactement ?
21 réponses Forum Charpente, toiture et zinguerie - 
									
									Apparition de taches blanches sur charpente, soucis ou pas ?
5 réponses Forum Charpente, toiture et zinguerie
 Résolu									 




 Nouveau sujet
 Répondre





 C'est intéressant aussi !




 Autres discussions sur ce sujet :
									
 Résolu