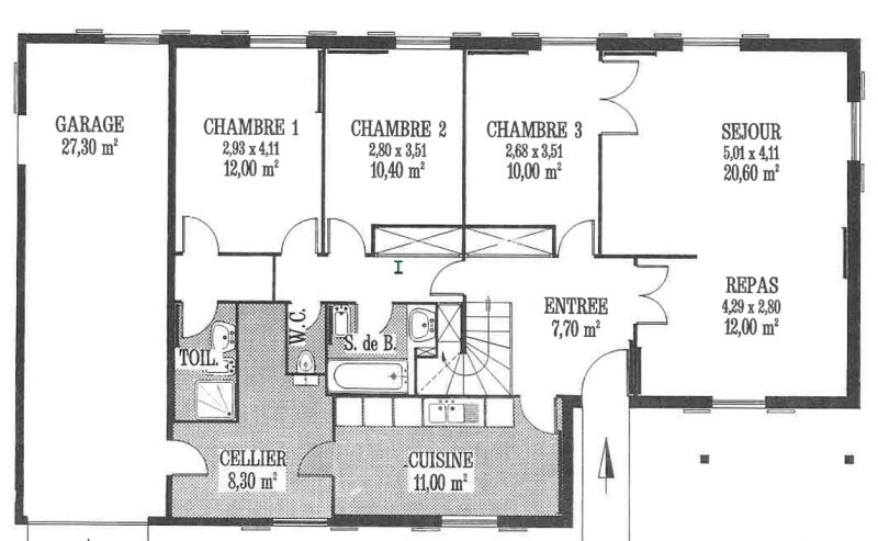
Avis avant achat de maison et suppression d'un mur
Ce sujet comporte 8 messages et a été affiché 128 fois
Nouveau sujet
Répondre
|
1 personne surveille ce sujet |
Membre super utile
Membre ultra utile
Membre ultra utile
Membre ultra utileEn cache depuis le jeudi 18 décembre 2025 à 11h17
Ce sujet vous a-t-il aidé ?
0
Votez !
0
Votez !
C'est intéressant aussi !
Devis Toiture
Demandez, en 5 minutes, 3 devis comparatifs aux professionnels de votre région. Gratuit et sans engagement.
Demandez, en 5 minutes, 3 devis comparatifs aux professionnels de votre région. Gratuit et sans engagement.
1
personne
surveille ce sujet
surveille ce sujet
Autres discussions sur ce sujet :
-
Comment caler un plancher OSB pour qu'il soit de niveau ?
15 réponses Forum Charpente, toiture et zinguerie -
Faut-il mettre des bandes résiliente sur le solivage avant de mettre un plancher OSB vissé a l'étage ?
6 réponses Forum Charpente, toiture et zinguerie -
Réhausse poutre pour solivage
33 réponses Forum Charpente, toiture et zinguerie
Résolu -
Plancher intermédiaire HEA ou solivage laméllé-collé sans poutre ?
22 réponses Forum Charpente, toiture et zinguerie -
Réparation d'une solive pourrie
19 réponses Forum Charpente, toiture et zinguerie -
Charge admissible d'une poutre lamellé collé
8 réponses Forum Charpente, toiture et zinguerie -
Parquet flottant sur dalle agglo pas droite
34 réponses Forum Charpente, toiture et zinguerie -
Comment renforcer plancher bois
20 réponses Forum Charpente, toiture et zinguerie -
Tolérance solivage pour plancher bois
24 réponses Forum Charpente, toiture et zinguerie




Nouveau sujet
Répondre





C'est intéressant aussi !




Autres discussions sur ce sujet :
Résolu