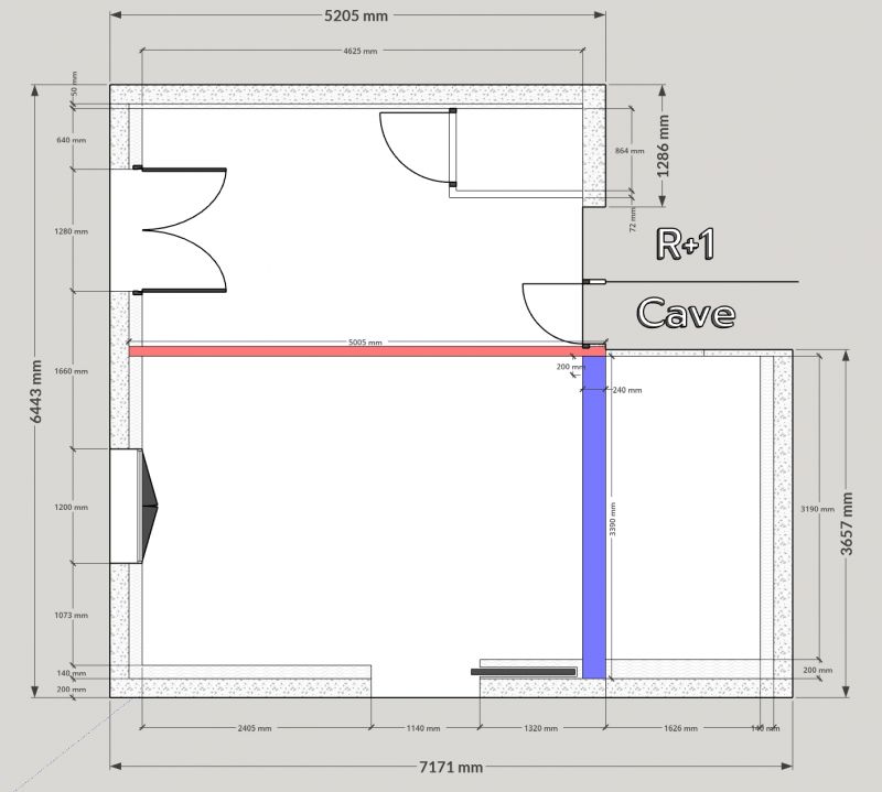
Calcul dimensions poutres porteuses Bois ou Acier
Ce sujet comporte 1 message et a été affiché 40 fois
Nouveau sujet
Répondre
|
1 personne surveille ce sujet |
Shopper
Ce sujet vous a-t-il aidé ?
0
Votez !
0
Votez !
C'est intéressant aussi !
Devis Toiture
Demandez, en 5 minutes, 3 devis comparatifs aux professionnels de votre région. Gratuit et sans engagement.
Demandez, en 5 minutes, 3 devis comparatifs aux professionnels de votre région. Gratuit et sans engagement.
1
personne
surveille ce sujet
surveille ce sujet
Autres discussions sur ce sujet :
-
Parquet flottant sur dalle agglo pas droite
34 réponses Forum Charpente, toiture et zinguerie -
Réalisation d'un plancher bois dans un garage
15 réponses Forum Charpente, toiture et zinguerie -
Tolérance solivage pour plancher bois
24 réponses Forum Charpente, toiture et zinguerie -
Comment renforcer plancher bois
20 réponses Forum Charpente, toiture et zinguerie -
Faut-il mettre des bandes résiliente sur le solivage avant de mettre un plancher OSB vissé a l'étage ?
6 réponses Forum Charpente, toiture et zinguerie -
Charge admissible d'une poutre lamellé collé
8 réponses Forum Charpente, toiture et zinguerie -
Comment caler un plancher OSB pour qu'il soit de niveau ?
15 réponses Forum Charpente, toiture et zinguerie -
Réparation d'une solive pourrie
19 réponses Forum Charpente, toiture et zinguerie -
Osb ou pin massif
26 réponses Forum Charpente, toiture et zinguerie




Nouveau sujet
Répondre




C'est intéressant aussi !




Autres discussions sur ce sujet :