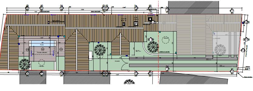
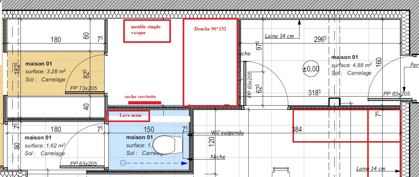
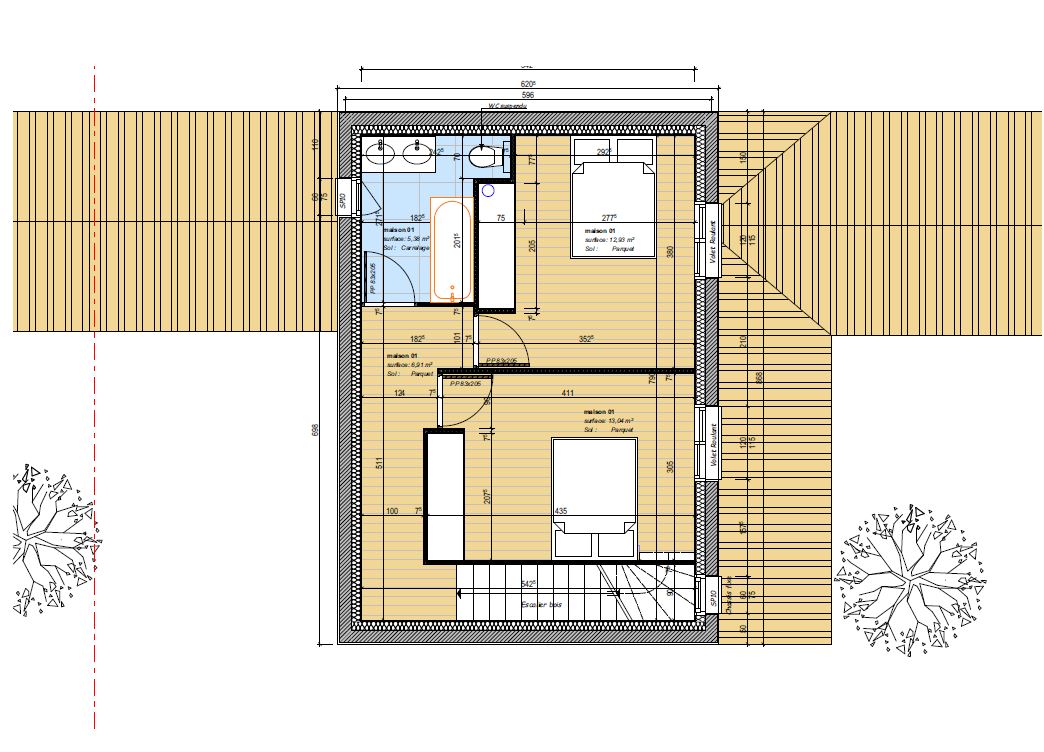
J'AIMERAIS UN AVIS SUR UNE MAISON r+1 110m2
Ce sujet comporte 7 messages et a été affiché 209 fois
Nouveau sujet
Répondre
|
2 abonnés surveillent ce sujet |
Membre super utile
Membre ultra utile
Messages : Env. 20000
De : Un Coin Discret De Haute-savoie (74)
Ancienneté : + de 9 ans
De : Un Coin Discret De Haute-savoie (74)
Ancienneté : + de 9 ans
Membre utileEn cache depuis le samedi 11 avril 2026 à 15h38
Ce sujet vous a-t-il aidé ?
0
Votez !
0
Votez !
C'est intéressant aussi !
Devis plan de maison
Demandez, en 5 minutes, 3 devis comparatifs aux professionnels de votre région. Gratuit et sans engagement.
Demandez, en 5 minutes, 3 devis comparatifs aux professionnels de votre région. Gratuit et sans engagement.
25 erreurs à éviter dans son plan de maison
Les guides vous aident à y voir plus clair sur la construction.
Les guides vous aident à y voir plus clair sur la construction.
Les 10 maisons les plus extraordinaires des membres ...
L'équipe de Forum Construire sélectionne pour vous les plus belles photos des membres et du web.
L'équipe de Forum Construire sélectionne pour vous les plus belles photos des membres et du web.
2
abonnés
surveillent ce sujet
surveillent ce sujet
Autres discussions sur ce sujet :
-
Fenetre d'angle de 2.80m par 1.25m. Trop grand ou normal
6 réponses Forum Plans de maisons -
Sondage du mois : le style de votre prochaine maison
6 réponses Forum Plans de maisons -
Avis plan maison R+1 Besoin de votre aide !!!!!!
6 réponses Forum Plans de maisons -
Plans maison ossature bois : votre avis nous intéresse...
6 réponses Forum Plans de maisons -
Modification permis, besoin d'aide
6 réponses Forum Plans de maisons -
Avis implantation maison sur terrain de 490m²
6 réponses Forum Plans de maisons -
En panne d'idée pour R+1
6 réponses Forum Plans de maisons -
Placement de la chaudière et ballon thermodynamique au RDC ?
6 réponses Forum Plans de maisons -
Avis sur plan de maison 85m2
6 réponses Forum Plans de maisons




Nouveau sujet
Répondre

Edité 3 fois, la dernière fois il y a +2 mois.
C'est intéressant aussi !




Autres discussions sur ce sujet :