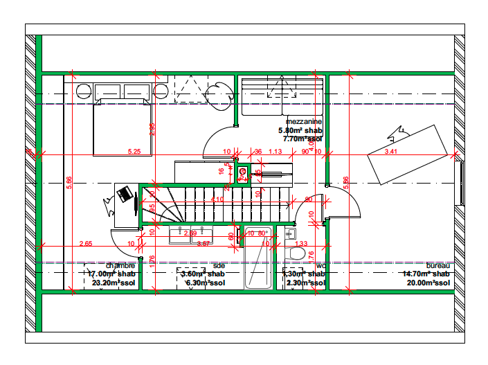
Douche sous rampants : comment gérer les contraintes techniques?
Ce sujet comporte 4 messages et a été affiché 104 fois
Nouveau sujet
Répondre
|
1 personne surveille ce sujet |
Membre utile
Membre utileEn cache depuis avant-hier à 15h41
Ce sujet vous a-t-il aidé ?
0
Votez !
0
Votez !
C'est intéressant aussi !
Devis plomberie
Demandez, en 5 minutes, 3 devis comparatifs aux professionnels de votre région. Gratuit et sans engagement.
Demandez, en 5 minutes, 3 devis comparatifs aux professionnels de votre région. Gratuit et sans engagement.
1
personne
surveille ce sujet
surveille ce sujet
Autres discussions sur ce sujet :
-
Quelle colonne de douche thermostatique et à quel prix?
14 réponses Forum Salle de bains : aménagement et décoration -
J'ai besoin de vos idées et conseils pour ma future sdb...
11 réponses Forum Salle de bains : aménagement et décoration -
Receveur de douche plancher bois Fabricant?marque?
2 réponses Forum Salle de bains : aménagement et décoration -
Avis sur coffrage bac a douche
3 réponses Forum Salle de bains : aménagement et décoration
Résolu -
Bac de douche - Votre avis sur ce qui est possible ?
15 réponses Forum Salle de bains : aménagement et décoration -
Étapes pose mitigeur de douche
3 réponses Forum Salle de bains : aménagement et décoration
Résolu -
Joints epoxy + colle classique
7 réponses Forum Salle de bains : aménagement et décoration
Résolu -
Combien de spots TBTS pour éclairer une douche ?
15 réponses Forum Salle de bains : aménagement et décoration -
CCMI : receveur à poser ou à encastrer
3 réponses Forum Salle de bains : aménagement et décoration
Résolu




Nouveau sujet
Répondre






C'est intéressant aussi !




Autres discussions sur ce sujet :
Résolu