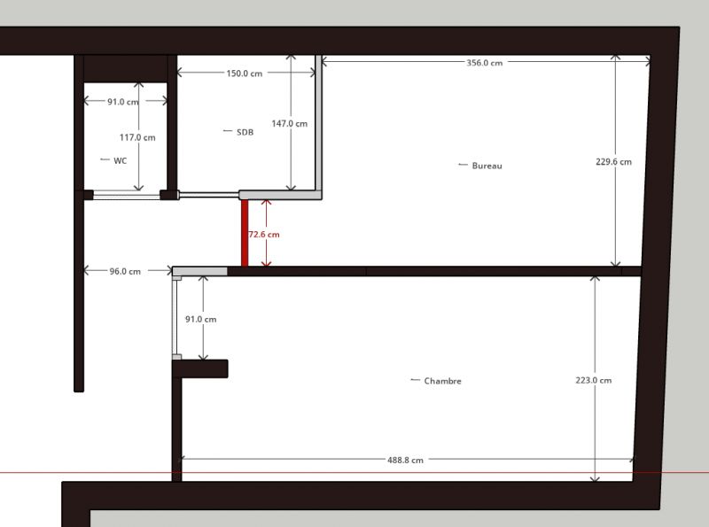
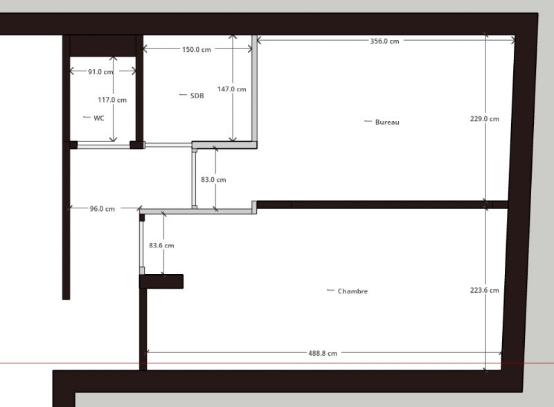
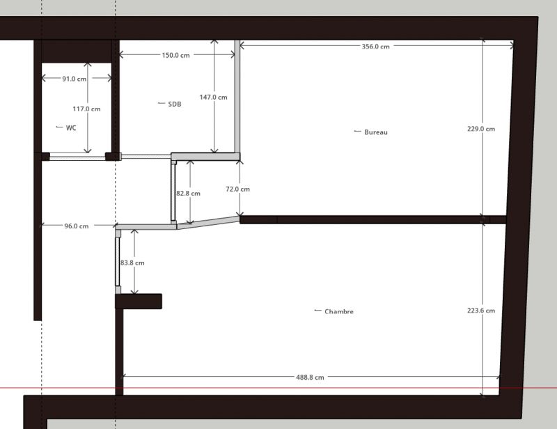
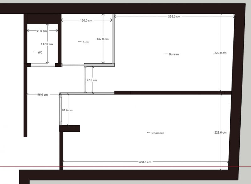
Création SDB et distribution des pièces
Ce sujet comporte 4 messages et a été affiché 128 fois
Nouveau sujet
Répondre
|
2 abonnés surveillent ce sujet |
Membre utileEn cache depuis le vendredi 17 avril 2026 à 10h10
Ce sujet vous a-t-il aidé ?
0
Votez !
0
Votez !
C'est intéressant aussi !
Devis cloison
Demandez, en 5 minutes, 3 devis comparatifs aux professionnels de votre région. Gratuit et sans engagement.
Demandez, en 5 minutes, 3 devis comparatifs aux professionnels de votre région. Gratuit et sans engagement.
Photos cloisons et isolations
Picorez des idées en parcourant les photos des constructions des autres !
Picorez des idées en parcourant les photos des constructions des autres !
2
abonnés
surveillent ce sujet
surveillent ce sujet
Autres discussions sur ce sujet :
-
[Placo] Quelle structure métallique au dessus d'une baie ?
2 réponses Forum Cloisons, portes intérieures et escaliers -
Remplir entre deux plaques de placo
3 réponses Forum Cloisons, portes intérieures et escaliers -
Placo dans maison ossature bois
15 réponses Forum Cloisons, portes intérieures et escaliers -
Polyane et placo
5 réponses Forum Cloisons, portes intérieures et escaliers
Résolu -
Entraxe de 120 cm entre deux montants : risqué de fixer une charge au milieu ?
3 réponses Forum Cloisons, portes intérieures et escaliers -
Humidité placo
14 réponses Forum Cloisons, portes intérieures et escaliers -
Bruit dans combles
19 réponses Forum Cloisons, portes intérieures et escaliers -
Isolation phonique bruits de chocs faux plafond
3 réponses Forum Cloisons, portes intérieures et escaliers -
Calcul du quantitatif pour cloison
2 réponses Forum Cloisons, portes intérieures et escaliers
Résolu




Nouveau sujet
Répondre








C'est intéressant aussi !




Autres discussions sur ce sujet :
Résolu