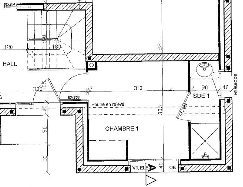
Conseils sur plans pour agrandir la chambre d'amis
Ce sujet comporte 4 messages et a été affiché 143 fois
Nouveau sujet
Répondre
|
2 abonnés surveillent ce sujet |
Membre ultra utile
Membre ultra utileEn cache depuis le lundi 19 janvier 2026 à 20h23
Ce sujet vous a-t-il aidé ?
0
Votez !
0
Votez !
C'est intéressant aussi !
Devis DPE
Demandez, en 5 minutes, 3 devis comparatifs aux professionnels de votre région. Gratuit et sans engagement.
Demandez, en 5 minutes, 3 devis comparatifs aux professionnels de votre région. Gratuit et sans engagement.
MaPrimeRenov' : comment ça marche ? A quoi ai-je droit ...
Les guides vous aident à y voir plus clair sur la construction.
Les guides vous aident à y voir plus clair sur la construction.
Les 10 maisons les plus extraordinaires des membres ...
L'équipe de Forum Construire sélectionne pour vous les plus belles photos des membres et du web.
L'équipe de Forum Construire sélectionne pour vous les plus belles photos des membres et du web.
Photos cloisons et isolations
Picorez des idées en parcourant les photos des constructions des autres !
Picorez des idées en parcourant les photos des constructions des autres !
2
abonnés
surveillent ce sujet
surveillent ce sujet
Autres discussions sur ce sujet :
-
Enlevage d'un crépi dans une chambre - maison années 70
4 réponses Forum Rénovation et extension -
Isoler une chambre dans hangar
3 réponses Forum Rénovation et extension -
Creer une chambre d'amis dans un garage
2 réponses Forum Rénovation et extension -
Comment agrandir un appartement rez de jardin pour creer une chambre supplementaire.
1 réponses Forum Rénovation et extension -
Saignee de plafond placo rebouchee avec de l enduit a placo
3 réponses Forum Rénovation et extension -
Quel expert pour choix stratégique : démolir pour reconstruire ou pas avant rénovation
3 réponses Forum Rénovation et extension -
Rénovation,normes sur l isolant mur pans de bois torchis
3 réponses Forum Rénovation et extension -
Besoin de conseils pour rénovation ,réagencement des espaces.
3 réponses Forum Rénovation et extension -
Choix IPN pour plancher de chambre à l'étage
4 réponses Forum Rénovation et extension




Nouveau sujet
Répondre




C'est intéressant aussi !




Autres discussions sur ce sujet :