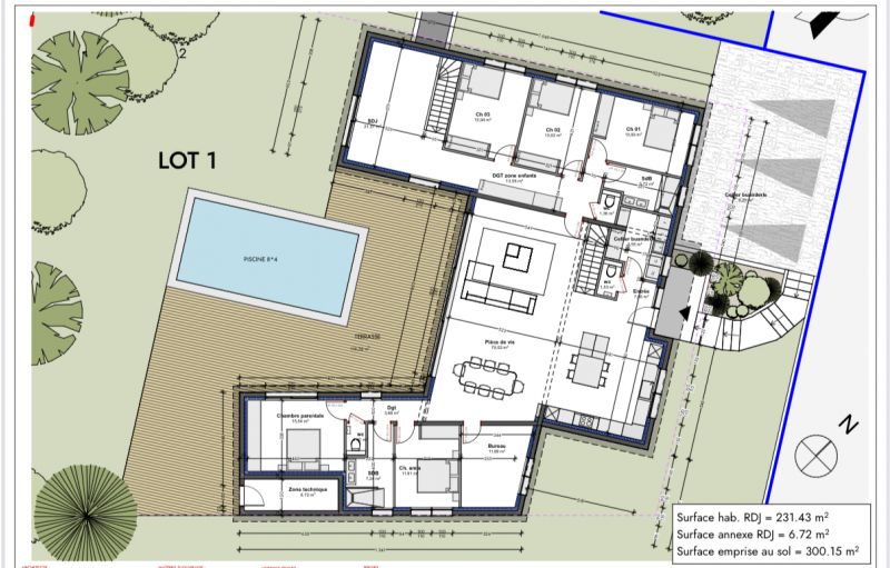
J’ai des plans de ma maison et je voudrais savoir où mettre les caméras ?
Ce sujet comporte 19 messages et a été affiché 248 fois
Nouveau sujet
Répondre
|
5 abonnés surveillent ce sujet |
Membre ultra utile
Membre ultra utile
Membre ultra utile
Membre ultra utile
Membre super utile
Membre super utile
Membre ultra utile
Membre super utile
Membre ultra utile
Membre super utile
Membre ultra utile
Membre ultra utile
Membre ultra utile
Membre super utileEn cache depuis le mercredi 29 avril 2026 à 15h55
Ce sujet vous a-t-il aidé ?
0
Votez !
0
Votez !
C'est intéressant aussi !
Devis home cinéma
Demandez, en 5 minutes, 3 devis comparatifs aux professionnels de votre région. Gratuit et sans engagement.
Demandez, en 5 minutes, 3 devis comparatifs aux professionnels de votre région. Gratuit et sans engagement.
5
abonnés
surveillent ce sujet
surveillent ce sujet
Autres discussions sur ce sujet :
-
Câblage audio d'un appartement (haut-parleurs tout simples)
43 réponses Forum Electricité, domotique et sécurité -
Comment installer une caméra connectée dans sa maison ?
21 réponses Forum Electricité, domotique et sécurité -
Connecter une caméra en wifi sur longue distance
5 réponses Forum Electricité, domotique et sécurité -
Problème de répartition signal TV
21 réponses Forum Electricité, domotique et sécurité
Résolu -
Diffuser musique dans enceintes au plafond
20 réponses Forum Electricité, domotique et sécurité -
Câblage caméra extérieure de type POE.
19 réponses Forum Electricité, domotique et sécurité -
Aide pour implantation Home Cinéma dans maison en construction
12 réponses Forum Electricité, domotique et sécurité -
Fibre optique SFR: des communs à l'appartement coaxial
11 réponses Forum Electricité, domotique et sécurité -
Peut on recevoir le sattelite sur une prise TV normale ?
43 réponses Forum Electricité, domotique et sécurité




Nouveau sujet
Répondre






C'est intéressant aussi !




Autres discussions sur ce sujet :
Résolu