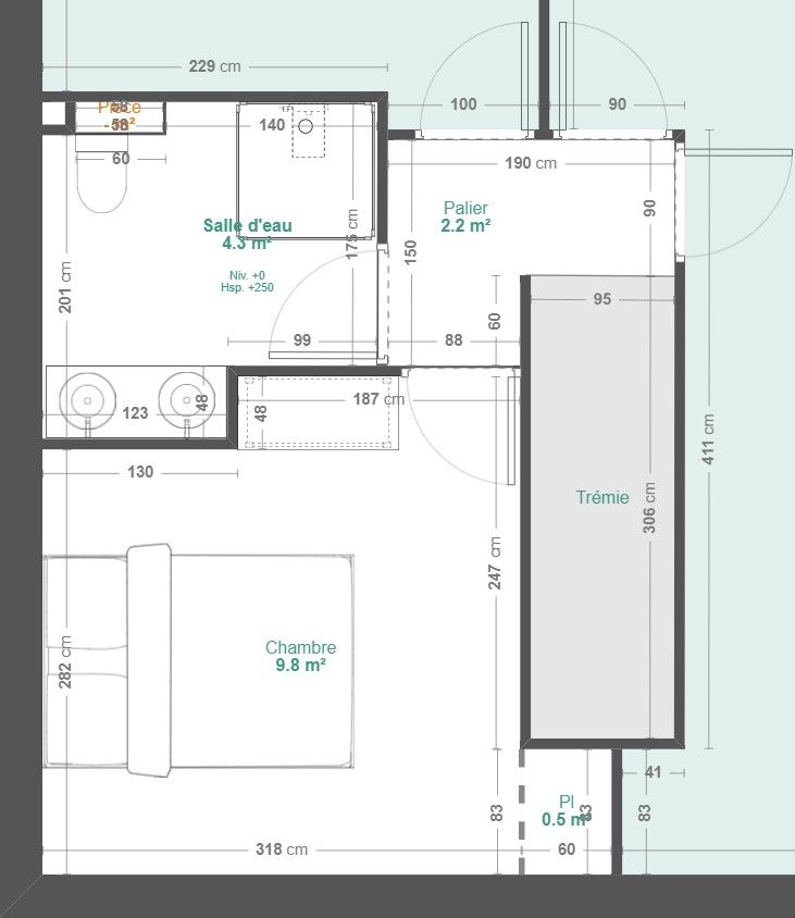
Modif plan maison besoin d’aide
Ce sujet comporte 13 messages et a été affiché 171 fois
Nouveau sujet
Répondre
|
3 abonnés surveillent ce sujet |
Membre ultra utile
Membre utile
Membre super utile
Membre utile
Membre super utile
Membre ultra utile
Membre utile
Membre utileEn cache depuis le mardi 24 février 2026 à 21h32
Ce sujet vous a-t-il aidé ?
0
Votez !
0
Votez !
C'est intéressant aussi !
Devis plan de maison
Demandez, en 5 minutes, 3 devis comparatifs aux professionnels de votre région. Gratuit et sans engagement.
Demandez, en 5 minutes, 3 devis comparatifs aux professionnels de votre région. Gratuit et sans engagement.
25 erreurs à éviter dans son plan de maison
Les guides vous aident à y voir plus clair sur la construction.
Les guides vous aident à y voir plus clair sur la construction.
Tour de France : 10 constructions typiques de nos régions ...
L'équipe de Forum Construire sélectionne pour vous les plus belles photos des membres et du web.
L'équipe de Forum Construire sélectionne pour vous les plus belles photos des membres et du web.
3
abonnés
surveillent ce sujet
surveillent ce sujet
Autres discussions sur ce sujet :
-
Besoin d'aide pour plan de rénovation maison
8 réponses Forum Plans de maisons -
plan pour une maison qui ne sera pas construite...
9 réponses Forum Plans de maisons -
Avis plan de maison (petite longère)
14 réponses Forum Plans de maisons -
Avis plan maison R+1 135m2, terrain exposé plein SUD
9 réponses Forum Plans de maisons -
Abri < 5m² + auvent : faut-il faire une déclaration ?
9 réponses Forum Plans de maisons -
Jardin exposé Est / Terasse Sud Est
9 réponses Forum Plans de maisons -
Demande d'avis sur plan de maison R + combles aménagés
12 réponses Forum Plans de maisons -
Les plans de mon garage ..... avec quel logiciel?
14 réponses Forum Plans de maisons -
Dimensions garage pour une voiture et une moto
8 réponses Forum Plans de maisons




Nouveau sujet
Répondre





)


C'est intéressant aussi !




Autres discussions sur ce sujet :