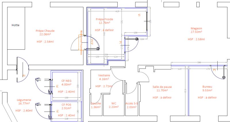
Demande d'avis sur une facture à payer
Ce sujet comporte 31 messages et a été affiché 375 fois
Nouveau sujet
Répondre
|
4 abonnés surveillent ce sujet |
Membre ultra utile
Membre ultra utile
Membre ultra utile
Membre ultra utile
Membre ultra utile
Membre ultra utile
Membre ultra utile
Membre ultra utile
Membre super utile
Membre ultra utile
Membre super utile
Membre super utile
Membre ultra utileEn cache depuis le samedi 14 février 2026 à 04h55
Ce sujet vous a-t-il aidé ?
0
Votez !
0
Votez !
C'est intéressant aussi !
Devis travaux électriques
Demandez, en 5 minutes, 3 devis comparatifs aux professionnels de votre région. Gratuit et sans engagement.
Demandez, en 5 minutes, 3 devis comparatifs aux professionnels de votre région. Gratuit et sans engagement.
Photos installations électriques
Picorez des idées en parcourant les photos des constructions des autres !
Picorez des idées en parcourant les photos des constructions des autres !
16 idées d'éclairages indirects
L'équipe de Forum Construire sélectionne pour vous les plus belles photos des membres et du web.
L'équipe de Forum Construire sélectionne pour vous les plus belles photos des membres et du web.
4
abonnés
surveillent ce sujet
surveillent ce sujet
Autres discussions sur ce sujet :
-
Branchement tableau électrique pour chaudière électrique
30 réponses Forum Electricité, domotique et sécurité -
Devis différents du simple au x7
31 réponses Forum Electricité, domotique et sécurité -
Rallonger câble H07RN-F 5G 1.5mm2 ?
25 réponses Forum Electricité, domotique et sécurité
Résolu -
2 prises RJ45 reliées entre elles
26 réponses Forum Electricité, domotique et sécurité -
Inversion Phase/neutre lors du test avec le METRIX VT35
26 réponses Forum Electricité, domotique et sécurité -
Rénovation tableau électrique et installation tableaux divionnaires
28 réponses Forum Electricité, domotique et sécurité -
Présentation projet changement de tableau elec et passage mono 12kVA à tri 36kVA
29 réponses Forum Electricité, domotique et sécurité -
Un interrupteur peut-il se désamorcer seul
25 réponses Forum Electricité, domotique et sécurité -
Coupure disjoncteur sans raison ?
27 réponses Forum Electricité, domotique et sécurité




Nouveau sujet
Répondre



C'est intéressant aussi !




Autres discussions sur ce sujet :
Résolu