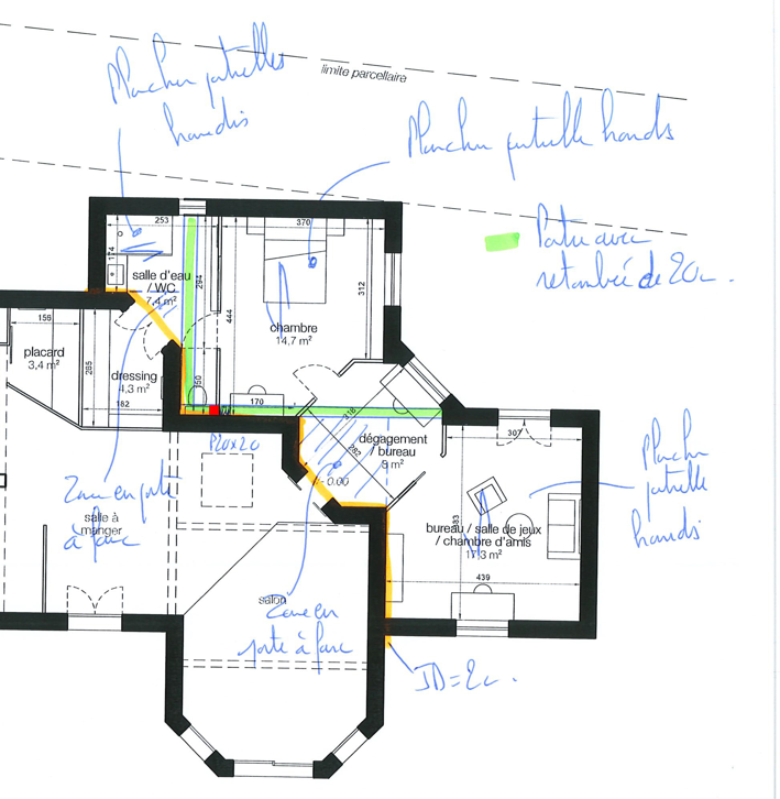
Isolation agrandissement 3 murs avec joint de dilatation
Ce sujet comporte 4 messages et a été affiché 135 fois
Nouveau sujet
Répondre
|
2 abonnés surveillent ce sujet |
Membre ultra utile
Membre ultra utileEn cache depuis aujourd'hui à 17h26
Ce sujet vous a-t-il aidé ?
0
Votez !
0
Votez !
C'est intéressant aussi !
Devis isolation
Demandez, en 5 minutes, 3 devis comparatifs aux professionnels de votre région. Gratuit et sans engagement.
Demandez, en 5 minutes, 3 devis comparatifs aux professionnels de votre région. Gratuit et sans engagement.
Photos cloisons et isolations
Picorez des idées en parcourant les photos des constructions des autres !
Picorez des idées en parcourant les photos des constructions des autres !
2
abonnés
surveillent ce sujet
surveillent ce sujet
Autres discussions sur ce sujet :
-
Avis pour la mise en oeuvre d'une ITI en laine de bois sur mur maçonné brique
2 réponses Forum Menuiserie et isolation -
Positionnement Pare-vapeur - Isolation doublage - Plaques de plâtre mur et plafond
2 réponses Forum Menuiserie et isolation -
Froid entre plafond en placo et dalle beton
2 réponses Forum Menuiserie et isolation -
Isolation TMS sous sol chauffant en rénovation ?
2 réponses Forum Menuiserie et isolation -
Parevapeur troué et laine de verre humide
2 réponses Forum Menuiserie et isolation -
Matériaux ou objets à utiliser pour ameliorer l accoustique de la piece et reduire le bruit sortant
2 réponses Forum Menuiserie et isolation -
Doublage isolé pour aménagement d’une cave
3 réponses Forum Menuiserie et isolation -
Isoler les bruits d'impact sur mur mitoyens, faible place
2 réponses Forum Menuiserie et isolation -
Question sur de l'humidité présente sur face intérieure d'un mur
2 réponses Forum Menuiserie et isolation




Nouveau sujet
Répondre



C'est intéressant aussi !




Autres discussions sur ce sujet :