Présentation du projet :
Historique:
En 2019 (il y a 6 ans au moment où j'écris ce récit), nous avons fait construire une maison BEPOS (basée sur la norme RE2020) sur un terrain déniché à Tours (37) : 130m² + garage, 3 chambres et un bureau.
Très vite, l'idée d'agrandir n'a eu de cesse de nous trotter dans la tête: la pièce de vie, bien que confortable, n'offrait pas de séparation suffisante entre cuisine, salle à manger et salon. Par ailleurs, la maison avait été construite en retrait sur la parcelle enclavée, laissant un espace inutilisé de 4-5 mètres sur 16 à l'arrière de la construction.
En 2023, nous prenons RDV avec un architecte pour entamer une réflexion sur un projet d'agrandissement. Entre temps, la famille s'agrandit, ce qui bouscule un peu le cahier des charges.
En 2024, nous rencontrons (sans le savoir) à l'occasion d'une soirée celle qui deviendra notre maître d'oeuvre. Quand le projet se finalise fin 2024, nous la contactons pour discuter du projet et évaluer l'enveloppe budgétaire. Gros point fort pour nous : elle travaille exclusivement avec un groupe d'entreprises, qui la suivent sur tous ses chantiers. Les devis arrivent, ça rentre dans le budget (au chausse-pied...), le feeling est bon - on y va.
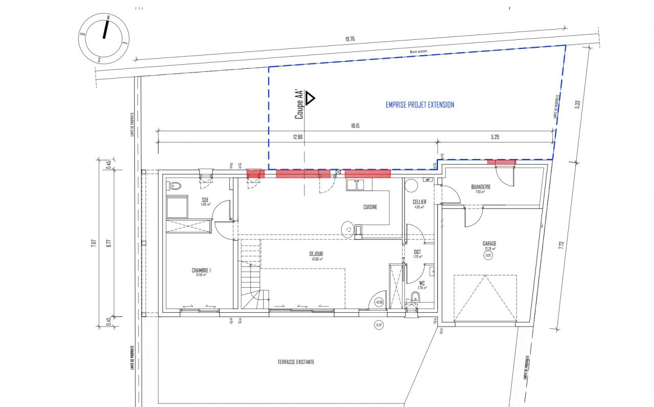
En Avril 2025, 4 ou 5 versions des plans plus tard, c'est l'ouverture de chantier : une extension bois de 67m² sera édifiée sur la parcelle arrière, et le garage deviendra une chambre (+90m² habitable).
La cuisine se déplace dans l'extension, ainsi que la SAM et la buanderie. Une SDB attenante à l'ancien garage y est prévue également.
Le 2 Octobre 2025, c'est la réception de l'extension et des travaux associés dans la maison d'origine - il reste le garage à transformer en chambre.
Plans:
- Extension bois (toit plat) sur l'arrière
- Côté extension, Velux zenitaux 90x90 dans la buanderie et SDB, grande verrière Velux 120x300 dans la cuisine.
- Ouverture du mur nord en plusieurs endroits
- Déplacement de la cuisine
- Déplacement de la buanderie
- Remplacement de la porte de garage par une baie vitrée
- Création d'une terrasse au nord
Entreprises
Nous recommandons chaudement toutes les entreprises qui ont pris part au chantier, conduites d'une main de maître par notre MO. Le chantier se termine avec 1 mois d'avance sur le planning, sans aucun soucis majeur et sans réserve significative. Nous vivions "dans le chantier", et tous les artisans ont fait montre de délicatesse et discretion, rendant le chantier bien plus supportable. Chantier qui était laissé parfaitement propre et rangé tous les soirs !
Architecte : Cyril Miroux
Maitrise d'oeuvre : Flore Chabassol
Maçonnerie: Batisilva
Ossature & étanchéité : Thibault Frères
Isolation et placage: Michel Dias
Plomberie : Entreprise Letiesse
Electricité : Batelec
Chauffage : Eco-Logis 37
Huisseries : Munch & Foucher
Peinture : Hulin-CPF
Carrelage : SARL Delafoulhouze
Menuiserie - agencement : CGAgencement
Mention spéciale pour notre MO, Flore Chabassol : sa double casquette d'architecte d'intérieur et de conduite de travaux aura vraiment permis au projet de prendre une autre dimension et pour nous d'être aussi contents du résultat.
Sommaire du récit :
Photos du récit :
Le récit de la construction :
Lorsque nous décidons d'entamer les études pour l'agrandissement, la première étape consiste à trouver un architecte.
Nous savons que nous voulons agrandir par l'arrière, afin d'utiliser la parcelle inutilisée aujourd'hui. Nous voulons agrandir la pièce de vie, qui cumule salon/SAM/cuisine dans 45m², agrandir la buanderie et rajouter une chambre (suite parentale) et un bureau.
Le premier architecte que nous voyons a travaillé sur des projets que nous avions visité et qui nous plaisait beaucoup. Mais il ne semble pas convaincu par notre projet, qui lui semble trop contraignant : il maintient qu'il sera impossible de vivre dans la maison pendant le chantier, ce qui est un no-go pour nous. Petit découragement qui met un peu en pause le projet... Mais on décide d'avoir un autre avis quelques mois plus tard.
Le second architecte ( Cyril Miroux) que nous contactons a plusieurs belles extensions à son palmares. Le courage passe très bien lors de la visite, et il a tout de suite identifié une solution pour rendre le projet compatible avec une co-habitation : il "suffira" de passer par le garage pour accéder à la parcelle nord. Ca implique de casser la cloison de la buanderie actuelle (donc plus de buanderie ni de garage dès le début des travaux) mais les pièces de vie restent intactes jusqu'à la fin du chantier.
On signe le contrat et les études démarrent.
S'en suivent plusieurs versions de plans, sur presque deux ans : un projet pro et l'agrandissement de la famille ayant chamboulé le planning et redéfini le cahier des charges...
Au début de l'état 2024, le permis est déposé. Il est accepté en Septembre.
Il faut maintenant trouver un.e maître d'oeuvre...

0
Membre utile
Messages : Env. 200
Dept : Indre Et Loire
Ancienneté : + de 8 ans
Etant situé dans le centre de Tours (avec un PLU assez restrictif) et l'extension se faisant en limite de propriété, les contraintes étaient assez fortes.
Après discussion avec la MOE et les maçons, le choix est fait de partir sur une ossature bois.
Le revêtement extérieur devait initialement être du zinc, mais le PLU nous impose un ton pierre - nous optons finalement pour un bardage bois dans un ton très proche de celui du crépis existant.
Les éléments de l'ossature seront donc bardés en usine, puis une grue les élèvera par-dessus la maison pour les installer sur la dalle.
Les huisseries (coté nord et à la place du garage) sont en RAL 7016, pour aller avec les menuiseries existantes.
Des velux supplémentaires étaient également prévus à l'étage - mais nous décalons ce chantier à plus tard, pour ne pas être dans la poussière au RDC et à l'étage, qui sera notre "refuge" pendant les travaux.
Un permis modificatif est demandé, afin d'enlever les velux et une ouverture prévue (la transformation de la petite fenêtre nord en porte fenêtre - celle-ci aurait été coincée entre les deux gouttières, ce qui n'était pas très esthétique.)

0
Membre utile
Messages : Env. 200
Dept : Indre Et Loire
Ancienneté : + de 8 ans
Maitrise d'oeuvre:
Pour aller au-delà des plans, il nous fallait un ou une maitre d'oeuvre, dans la mesure où nous ne voulions pas retravailler avec le constructeur d'origine.
Nous avions quelques contacts, mais avions déjà rencontrée notre MOE sans le savoir, à l'occasion d'une soirée chez elle et son mari. A ce moment, notre projet d'extension était en pause, un autre projet pro se dessinant.
A l'occasion de cette soirée, nous avions pu admirer leur superbe extension, qu'elle avait réalisée.
Quelques mois plus tard, le projet pro disparaissant à l'horizon - remplacé par la perspective d'une nouvelle arrivée dans la famille - le projet d'extension redevient d'actualité. Nous contactons celle qui deviendra de fait notre MOE, Flore Chabassol, pour discuter du projet.
Sa façon de travailler nous plait tout de suite : un groupe d'entreprises qu'elle connait et qui travaillent toujours ensemble, des réunions de chantier tous les jeudis sur place avec convocation des entreprises, un compte rendu partagé avec tout le monde dans la foulée, et une communication hyper réactive.
Ses projets réalisés au cours des dernières années finissent de nous conforter dans notre choix.
En tant qu'architecte, elle apporte également cet "oeil" qui, tout au long du chantier, aura permis de raffiner les choix (couleurs, matières, dessins des meubles, choix techniques...).
Maintenant que le chantier touche à sa fin, il devient évident que la choisir en tant que MOE était probablement la meilleure décision que nous pouvions faire: le suivi de chantier a été irréprochable (elle était sur site plusieurs fois par semaines, parfois plusieurs fois par jour !), ses entreprises ont fait un travail sans défaut, et la livraison a eu lieu avec un mois d'avance... Difficile à croire quand on le raconte !
Ouverture de chantier
L'ouverture de chantier a eu lieu courant Avril 2024 - 7 mois après l'obtention du permis, afin que les travaux aient lieu pendant les beaux jours.
La première étape a été la dépose de la cloison entre le garage et la buanderie, afin de laisser passer la pelleteuse et les artisans.

0
Membre utile
Messages : Env. 200
Dept : Indre Et Loire
Ancienneté : + de 8 ans
A partir de l'ouverture de chantier, les choses s'accélèrent. Profitant du beau temps, les maçons s'activent. Faute d'un accès simple à la parcelle arrière, tout est terrassé à la mini-pelle (qui passe dans une porte de 85cm) et évacué... à la brouette ! Il y a jusqu'à une dizaine d'artisans qui s'activent sur le terrain pour boucler les fondations, puis la dalle, en 15 jours.
Il faut également créer un nouvel accès au vide sanitaire, car l'actuel se trouve dans le garage, qui deviendra un chambre et sera donc fermé.
L'accès sera dissimulé sous la future terrasse bois qui viendra habiller l'espace devant les bambous.
Fondations, sable, TMS, baches, ferraillage... On coule la dalle ! Toujours impressionnant de voir la pompe passer par-dessus la maison.
Un petit chat se sera fait surprendre par la dalle fraiche... Mais pas d'inquiétudes, il va bien
Quelques jours après que la dalle ait été coulée, un surbot pour l'ossature bois est installé. C'est parti pour 1 mois de séchage...
Next : l'arrivée de l'ossature bois !
0
Membre utile
Messages : Env. 200
Dept : Indre Et Loire
Ancienneté : + de 8 ans
Mi-juin, après 4 semaines de séchage de la dalle, l'ossature bois arrive, avec une grue qui restera un long mois dans le jardin.
Les éléments sont en majorité bardés en usine, car l'installation se fait en limite de propriété.
Seule la partie côté terrasse reste à barder.
Sous le bardage, 5cm de laine de bois viennent compléter l'isolation intérieure qui sera réalisée par la suite.
Bardage Funlam de la marque Simonin, ton pierre pour coller au PLU et au crépis de la maison.
La charpente est rapidement réalisée, et nous laisse entrevoir les futures ouvertures pour les velux zenitaux de la buanderie et de la sdb, et surtout celle pour la grande verrière de la cuisine.
L'étanchéité suit très rapidement, mais restera incomplète jusqu'à la livraison de la verrière de la cuisine... qui n'arrivera que fin juillet, soit un mois plus tard. Difficle de croire qu'il est possible de perdre un colis aussi gros (la verrière fait 1,2 x 3m...) mais Velux y est parvenu !
Dans la foulée, la baie vitrée est posée. Nous sommes (presque) hors d'eau hors d'air !
L'isolation va pouvoir commencer. Mais avant ça, il faut parler du sujet qui nous a bien occupé pendant le séchage de la dalle, et qui constituera le nouveau coeur de la maison : l'aménagement de l'entrée et le choix de la cuisine !
0
Membre utile
Messages : Env. 200
Dept : Indre Et Loire
Ancienneté : + de 8 ans
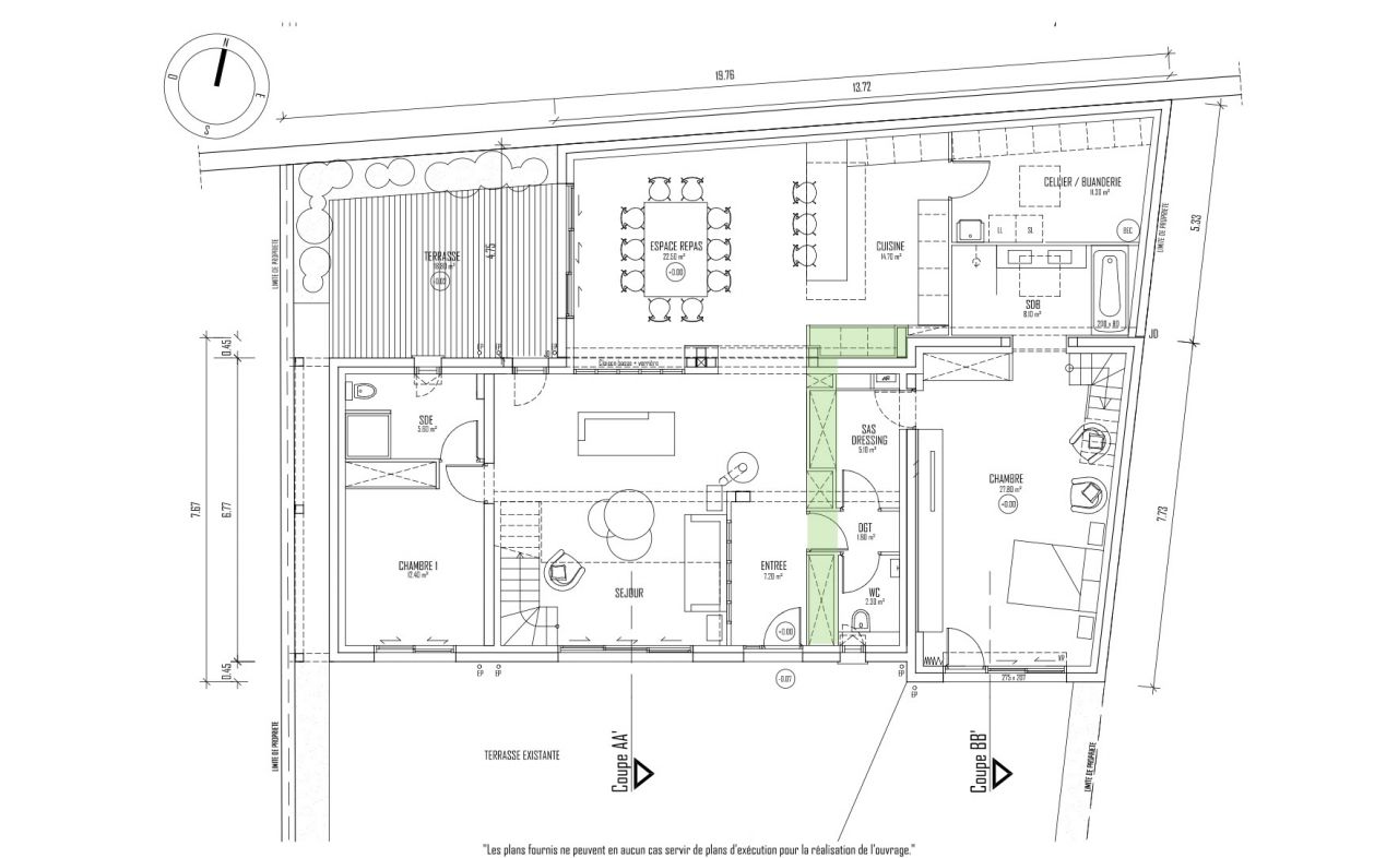
Lors de la remise des plans, notre architecte avait fait une proposition que nous avions retenue : créer un linéaire de meubles de rangements qui irait de l'entrée à la cuisine, se prolongeant naturellement vers celle-ci. L'idée étant de créer un volume qui connecterait les deux espaces et aiderait à rendre invisible la nature de l'extension.
S'est alors posé la question de comment faire réaliser ça, et par qui.
Les cuisinistes que nous avons démarché ne semblaient pas à l'aise avec la création de ce que nous avions en tête... Mais nous ne voulions pas faire indépendamment la cuisine et les meubles de l'entrée, car les deux éléments sont liés.
Sur les conseils de notre MOE, nous avons finalement fait appel à un menuisier-agenceur ( CGA), pour réaliser l'ensemble: meubles et cuisine.
Au cours des discussions avec le menuisier, le projet se définiti:
- dans l'entrée, des meubles de rangement toute hauteur, avec des niches pour rythmer la surface
- un banc à gauche de la porte d'entrée, pour s'assoir et ranger les chaussures
- une cuisine qui suit les plans de l'architecte (en U avec un coté bar), avec plan de travail en céramique et évier sous plan
- prises de main dans la cuisine pour n'avoir aucune poignée
- les portes donnant accès à l'espace parental et à la buanderie seront dissimulées (portes sous tenture)
Coté couleurs et matériaux, on fait confiance à notre MOE sur un choix qui n'aurait pas été le notre initialement : un bleu nuit mat (stratifié) pour la cuisine, avec des éléments en noyer (niches, portes hautes, bardage clairevoie sous le bar). Les meubles d'entrée seront quant à eux dans un beige clair mat (stratifié aussi) avec des niches en noyer également.
Le plan de travail sera le Calcutta Silk de Neolith.
Juste avant la chappe, nous finalisons les derniers éléments : peinture murale et couleur des prises de main.
L'ensemble fonctionne bien sur le carrelage choisi, mais il faut se projeter - ce que j'ai énormément de mal à faire.
Plusieurs versions des plans et des rendus seront réalisés, en particulier pour définir si toute la cuisine sera bleue, ou beige, ou bi-colore. La plaque de cuisson, l'évier, et autres rangement bougeront également au grès des versions (mention spéciale à leur bureau d'études pour sa réactivité de ce point de vue là !)
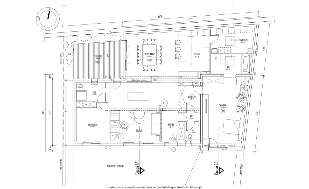
Un version finale finit par émerger :
- Ilot et retour en beige clair, comme les meubles d'entrée
- meubles hauts et colonnes en bleu nuit et noyer
- Plaque de cuisson sur l'ilot, évier au milieu sous les meubles hauts
- Frigo encastré et fours dans les colonnes hautes à gauche de l'ilot.
Côté electroménager, nous réintégrons notre four et la lave-vaisselle Bosch. Un frigo intégré toute hauteur Samsung (le congel sera dans la buanderie), un four combiné micro-ondes Bosch, une cave à vin intégrée Climadiff et une plaque de cuisson Bora viennent s'ajouter.
Il reste toutefois un point à traiter : comment éclairer l'ilôt ? Car celui-ci est directement sous la verrière - impossible de mettre des suspensions.
La solution nous apparait lors d'une visite d'un magasin de meubles à Tours - ils ont en démonstration une suspension composée de spots réglables, suspensus à des cables : Sling, par KDLN
Cette suspension pourrait être accrochée de chaque coté de la verrière, avec les spots au-dessus du plan de travail.
Une modélisation plus tard, nous validons.
A ce stade, nous avons un projet quasi finalisé pour l'ensemble de l'aménagement meubles+cuisine, qui constitue le coeur du projet de l'agrandissement.
Quelques ajustements sur les niches, leur forme et leur nombre aura lieu, mais à la marge uniquement.
Les rendus finalisés (par mes soins, sous Unreal Engine):
Au final, le résultat est au-dessus de nos attentes. Je ferai un article dédié sur la pose de la cuisine et des meubles, mais voici quelques photos des travaux achevés:
Nous avions peur du bleu foncé sur l'échantillon - à tort : le rendu final est génial. C'est clairement la cuisine dont je rêve depuis des années  Et je peine à la remplir pour l'instant !
S'ajoute à ça la quantité délirante de rangements que nous avons maintenant dans l'entrée - finit le bazar des enfants dans le salon.
0
Membre utile
Messages : Env. 200
Dept : Indre Et Loire
Ancienneté : + de 8 ans
En rapport avec cette page :
Autres récits de construction :
-
37 Maison toit terrasse en centre villeBonsoir, Apres de nombreuses soirees a lire vos recits, je me lance car la construction de notre maison a demarree il y a deux semaines. Nous construisons ... Tours (Indre Et Loire) Par adri 770 mess.
-
37 Tourangelle BEPOSApres avoir cherche (sans succes) la perle rare dans l'ancien pendant plusieurs mois, une opportunite s'est presentee sur un terrain idealement place a ... Tours (Indre Et Loire) Par flgrm 211 mess.
-
-
-
37 Maison contemporaine toit platBonjour a toutes et a tous, Nous faisons construire sur Esvres, les allees du Peu, Lot vendu par Nexity. Apres plusieurs rendez-vous avec differents constructeurs ... Esvres (Indre Et Loire) Par Miso 154 mess.
-
-
37 Notre maison VILLATANGO 4 Chambres+ à Ligueil Notre interlocuteur VILLADEALE : Christophe GALLET Disponible, reactif, competent et technique Nous sommes tres heureux de lui avoir fait confiance ... Ligueil (Indre Et Loire) Par Katerina 1059 mess.
|
7 abonnés surveillent ce récit
"Extension & reorganisation de notre Tourangelle"
|