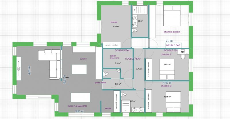
Que pensez-vous de mon plan avant-projet ?
Ce sujet comporte 142 messages et a été affiché 896 fois
Nouveau sujet
Répondre
|
5 abonnés surveillent ce sujet |
Super photographe
Membre super utile
Super photographe
Membre utile
Super photographe
Membre ultra utile
Super photographe
Membre ultra utile
Membre utile
Membre ultra utile
Membre utile
Membre super utile
Membre ultra utile
Membre super utile
Membre ultra utile
Membre utile
Membre ultra utile
Membre ultra utile
Super photographe
Membre ultra utile
Super photographe
Membre utile
Membre ultra utile
Membre utile
Membre utile
Membre ultra utile
Membre utile
Membre utile
Membre ultra utile
Membre ultra utile
Membre ultra utile
Membre ultra utile
Super photographe
Membre ultra utile
Membre ultra utile
Super photographe
Membre utile
Super photographe
Membre super utile
Membre utile
Super photographe
Membre utile
Super photographe
Super photographe
Membre utileEn cache depuis le mercredi 03 décembre 2025 à 02h10
Ce sujet vous a-t-il aidé ?
0
Votez !
0
Votez !
C'est intéressant aussi !
Devis plan de maison
Demandez, en 5 minutes, 3 devis comparatifs aux professionnels de votre région. Gratuit et sans engagement.
Demandez, en 5 minutes, 3 devis comparatifs aux professionnels de votre région. Gratuit et sans engagement.
25 erreurs à éviter dans son plan de maison
Les guides vous aident à y voir plus clair sur la construction.
Les guides vous aident à y voir plus clair sur la construction.
Les 10 maisons les plus extraordinaires des membres ...
L'équipe de Forum Construire sélectionne pour vous les plus belles photos des membres et du web.
L'équipe de Forum Construire sélectionne pour vous les plus belles photos des membres et du web.
5
abonnés
surveillent ce sujet
surveillent ce sujet
Autres discussions sur ce sujet :
-
2 hauteurs de faux plafond différentes
22 réponses Forum Plans de maisons -
Appel à contribution : quel logiciel d'archi utilisez vous et pourquoi ?
145 réponses Forum Plans de maisons -
Mettre des toilettes dans un petit espace, c'est possible ?
73 réponses Forum Plans de maisons -
Résoudre un problème de plan : WC qui donne sur cuisine
21 réponses Forum Plans de maisons -
Avis plans maison 6 mètres de façade
91 réponses Forum Plans de maisons -
Largeur terrain pour acces sous sol sur le coté
23 réponses Forum Plans de maisons -
Quel plan pour une maison R+1 toit plat avec 6 m de hauteur de façade maxi ?
247 réponses Forum Plans de maisons -
Avis plan de maison plain pied 85 m2 sur terrain
39 réponses Forum Plans de maisons -
Plan maison plain pied de 110 m² sur un terrain de 700 m² : qu'en pensez-vous ?
140 réponses Forum Plans de maisons




Nouveau sujet
Répondre







?




Edité 6 fois, la dernière fois il y a +7 mois.






C'est intéressant aussi !




Autres discussions sur ce sujet :