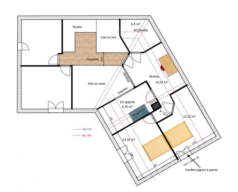
Conseils : optimisation d'un étage sous rampant avec plusieurs chambres
Ce sujet comporte 32 messages et a été affiché 491 fois
Nouveau sujet
Répondre
|
3 abonnés surveillent ce sujet |
Membre utile
Membre utile
Membre utile
Membre utile
Membre utile
Membre utile
Membre utile
Membre utile
Membre utile
Membre utile
Membre utile
Membre utile
Membre utile
Membre ultra utile
Membre ultra utile
Membre ultra utile
Membre ultra utileEn cache depuis le lundi 02 mars 2026 à 20h42
Ce sujet vous a-t-il aidé ?
0
Votez !
0
Votez !
C'est intéressant aussi !
Devis plan de maison
Demandez, en 5 minutes, 3 devis comparatifs aux professionnels de votre région. Gratuit et sans engagement.
Demandez, en 5 minutes, 3 devis comparatifs aux professionnels de votre région. Gratuit et sans engagement.
25 erreurs à éviter dans son plan de maison
Les guides vous aident à y voir plus clair sur la construction.
Les guides vous aident à y voir plus clair sur la construction.
Tour de France : 10 constructions typiques de nos régions ...
L'équipe de Forum Construire sélectionne pour vous les plus belles photos des membres et du web.
L'équipe de Forum Construire sélectionne pour vous les plus belles photos des membres et du web.
3
abonnés
surveillent ce sujet
surveillent ce sujet
Autres discussions sur ce sujet :
-
Couple sans enfant, comment gérer les chambres des futurs enfants dans nos plans ?
24 réponses Forum Plans de maisons -
Avis plans de maison PP 115 m2
30 réponses Forum Plans de maisons
Résolu -
Avis constructifs concernant les plans d’une maison individuelle
31 réponses Forum Plans de maisons -
Plain pied 4 chambres tout début projet
229 réponses Forum Plans de maisons -
Avis Plan maison R+1 220m² exposé sud-ouest
30 réponses Forum Plans de maisons -
Demande d'avis Maison Plain Pied 4 chambres
57 réponses Forum Plans de maisons -
Besoin d'aide pour placer l'entrée du terrain sans gêner garage
30 réponses Forum Plans de maisons -
Avis plan plain pied 4 chambres
31 réponses Forum Plans de maisons -
Avis plan maison de pp (120 m² 3 chambres)
53 réponses Forum Plans de maisons




Nouveau sujet
Répondre




Edité 2 fois, la dernière fois il y a +6 mois.








C'est intéressant aussi !




Autres discussions sur ce sujet :
Résolu