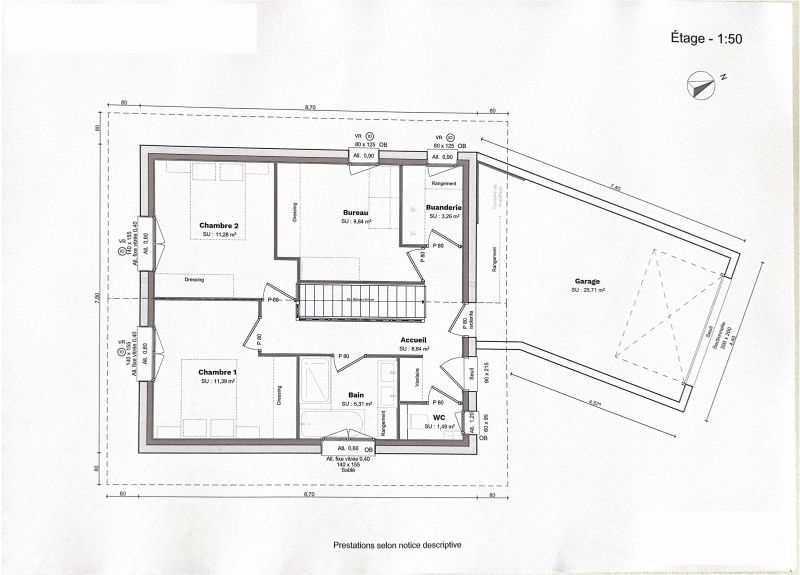
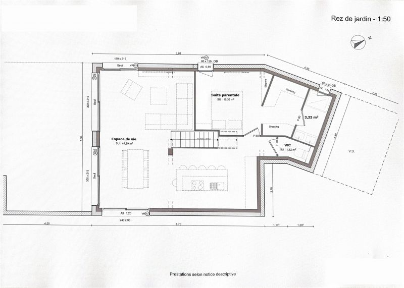
Avis plan de maison 117m2 - denivelé
Ce sujet comporte 8 messages et a été affiché 188 fois
Nouveau sujet
Répondre
|
2 abonnés surveillent ce sujet |
Le sujet est résolu ? Un membre a apporté une réponse ? Cliquez ici pour passer le sujet en résolu !
Membre super utile
Membre utile
Membre super utile
Membre super utile
Membre utileEn cache depuis le mardi 20 janvier 2026 à 18h51
Ce sujet vous a-t-il aidé ?
0
Votez !
0
Votez !
C'est intéressant aussi !
Devis plan de maison
Demandez, en 5 minutes, 3 devis comparatifs aux professionnels de votre région. Gratuit et sans engagement.
Demandez, en 5 minutes, 3 devis comparatifs aux professionnels de votre région. Gratuit et sans engagement.
25 erreurs à éviter dans son plan de maison
Les guides vous aident à y voir plus clair sur la construction.
Les guides vous aident à y voir plus clair sur la construction.
Les 10 maisons les plus extraordinaires des membres ...
L'équipe de Forum Construire sélectionne pour vous les plus belles photos des membres et du web.
L'équipe de Forum Construire sélectionne pour vous les plus belles photos des membres et du web.
2
abonnés
surveillent ce sujet
surveillent ce sujet
Autres discussions sur ce sujet :
-
plan de maison 80m² 2 chambres
7 réponses Forum Plans de maisons
Résolu -
Avis plan maison en U, 250 m², plain pied
6 réponses Forum Plans de maisons -
Avis plan maison plain pied 150m² + grand garage
6 réponses Forum Plans de maisons -
Bonjour, J'ai besoin de 4 chambres a l étage. Voici mon plan. Des idées ?
6 réponses Forum Plans de maisons -
Argument justifiant problème altimètrie
7 réponses Forum Plans de maisons -
Recherche application pour intégrer un paysage depuis l’intérieur d’une maison
7 réponses Forum Plans de maisons -
Recherche Idée plan maison ...
7 réponses Forum Plans de maisons
Résolu -
Vos avis/conseils sur le plan de notre première maison
7 réponses Forum Plans de maisons -
Quel plan réaliser pour notre maison ?
8 réponses Forum Plans de maisons




Nouveau sujet
Répondre





C'est intéressant aussi !




Autres discussions sur ce sujet :
Résolu