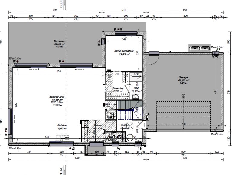
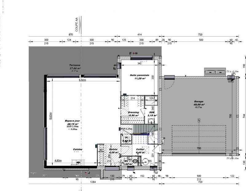
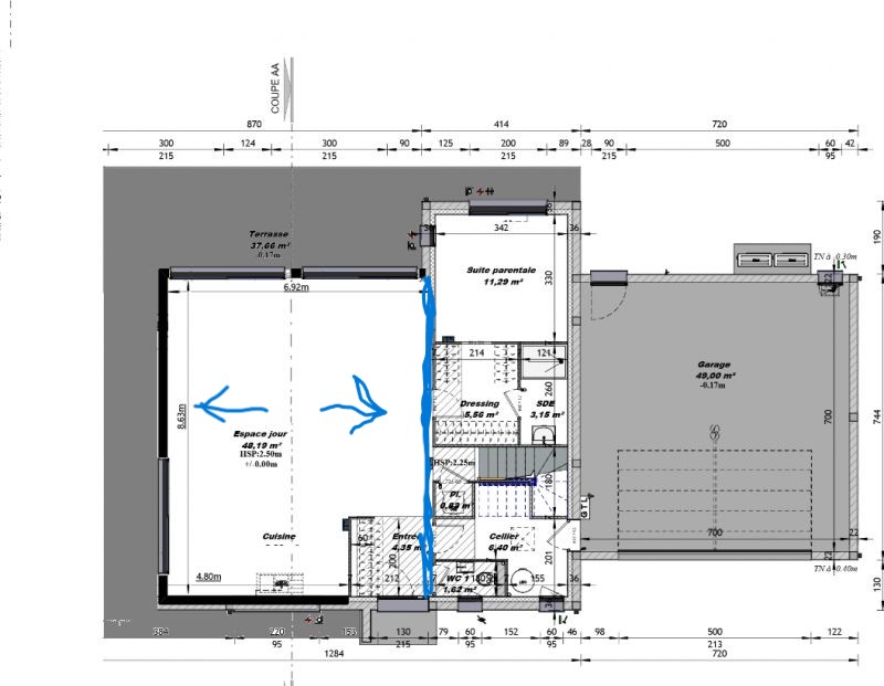
Grande pièce de vie sans poteau au milieu
Ce sujet comporte 13 messages et a été affiché 141 fois
Nouveau sujet
Répondre
|
4 abonnés surveillent ce sujet |
Membre utile
Membre utile
Membre super utile
Membre super utile
Membre utile
Membre utileEn cache depuis le jeudi 23 avril 2026 à 02h40
Ce sujet vous a-t-il aidé ?
0
Votez !
0
Votez !
C'est intéressant aussi !
Devis fondations
Demandez, en 5 minutes, 3 devis comparatifs aux professionnels de votre région. Gratuit et sans engagement.
Demandez, en 5 minutes, 3 devis comparatifs aux professionnels de votre région. Gratuit et sans engagement.
4
abonnés
surveillent ce sujet
surveillent ce sujet
Autres discussions sur ce sujet :
-
Rabaissement du plafond erreur maconnerie
11 réponses Forum Bâtiment et maçonnerie -
Fondations mitoyennes et règles des 3/2
11 réponses Forum Bâtiment et maçonnerie -
Suintement joints de carrelage sur terrasse
12 réponses Forum Bâtiment et maçonnerie -
Où trouver ferraillage selon plans d'exécution ?
12 réponses Forum Bâtiment et maçonnerie -
Conseils sur dalle beton abri de jardin
11 réponses Forum Bâtiment et maçonnerie -
Fissuration hourdis suite à coulage de la chape
12 réponses Forum Bâtiment et maçonnerie -
Bonjour au lecteurs,je me bats avec mon assurance décennale qui veut par économie de la résine sous la maison !
12 réponses Forum Bâtiment et maçonnerie -
Mur en limite et fondations de type puits / longrines
12 réponses Forum Bâtiment et maçonnerie -
Isoler le sol sans vide sanitaire
11 réponses Forum Bâtiment et maçonnerie




Nouveau sujet
Répondre






C'est intéressant aussi !




Autres discussions sur ce sujet :