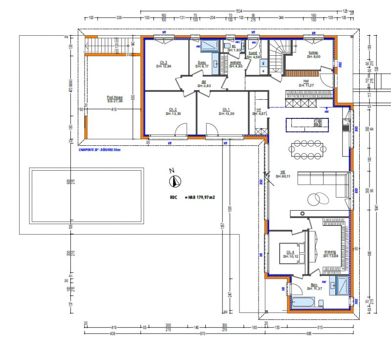
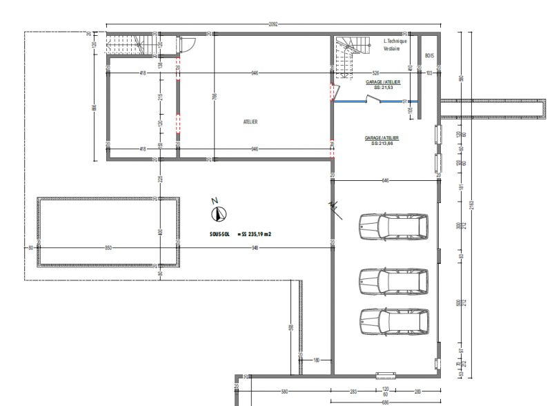
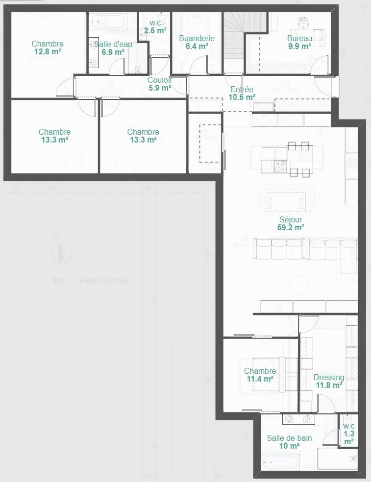
Plan maison plain-pied en L - 180m2
Ce sujet comporte 7 messages et a été affiché 180 fois
Nouveau sujet
Répondre
|
2 abonnés surveillent ce sujet |
Membre super utile
Membre utile
Membre utile
Membre super utile
Membre utileEn cache depuis le jeudi 16 avril 2026 à 08h44
Ce sujet vous a-t-il aidé ?
0
Votez !
0
Votez !
C'est intéressant aussi !
Devis plan de maison
Demandez, en 5 minutes, 3 devis comparatifs aux professionnels de votre région. Gratuit et sans engagement.
Demandez, en 5 minutes, 3 devis comparatifs aux professionnels de votre région. Gratuit et sans engagement.
25 erreurs à éviter dans son plan de maison
Les guides vous aident à y voir plus clair sur la construction.
Les guides vous aident à y voir plus clair sur la construction.
Tour de France : 10 constructions typiques de nos régions ...
L'équipe de Forum Construire sélectionne pour vous les plus belles photos des membres et du web.
L'équipe de Forum Construire sélectionne pour vous les plus belles photos des membres et du web.
2
abonnés
surveillent ce sujet
surveillent ce sujet
Autres discussions sur ce sujet :
-
Avis pour plan de maison plain pied en auto-construction
4 réponses Forum Plans de maisons -
Avis plan plain pied récit évolution détaillée
4 réponses Forum Plans de maisons -
Aide pour plan de maison plain pied 4 chambres
4 réponses Forum Plans de maisons -
MicMac pour positionner une voie d'accès jusqu'au garage. Besoin d'aide.
5 réponses Forum Plans de maisons
Résolu -
Comment créer un coin bureau dans une entrée ?
6 réponses Forum Plans de maisons -
Avis plan de Maison 120m2 plain pied
6 réponses Forum Plans de maisons -
plan maison plain pied 5ch 120/130 m2
3 réponses Forum Plans de maisons -
Que preferez vous pour disposition d'une chambre sous rampant
6 réponses Forum Plans de maisons
Résolu -
2 apparts, 2 plans, 2 choix - "affaire en or" versus "vilain petit canard" - vos avis?
5 réponses Forum Plans de maisons




Nouveau sujet
Répondre





Edité 1 fois, la dernière fois il y a +1 mois.
C'est intéressant aussi !




Autres discussions sur ce sujet :
Résolu