Retour
Menu utilisateur
Menu

[06] Notre maison avec Mikit Alpes maritimes

Récit de construction de cyberastuce - 13 messages - Affiché 728 fois

Présentation du projet :


Bonjour à tous ,

me voici de retour après quelques années
J'ai fait faire une étude par un ingénieur béton et ensuite j'ai cherché un constructeur qui puisse réaliser une maison solide selon l étude béton.

j'avais signé avec deux constructeurs entre-temps mais ils ont fait faillite pendant le covid malheureusement du coup le projet ne reprend que maintenant

Et c'est Mikit alpes maritimes avec leur equipe sympa très à l'écoute qui fait le projet maintenant

Pour l'instant tout se passe bien l'équipe est très bien.
L'équipe est vraiment très à l'écoute et pour l'instant vraiment ils font leur maximum..

La maison est au stade du sous-sol !
J'ai hâte de voir ma maison finie.

Picto list Sommaire du récit :

Picto list Photos du récit :

Option de lecture :

Le récit de la construction :

Option de lecture :
 
cyberastuce Picto info Auteur du sujet
Membre utile Env. 3000 message Bénévole Aamoi En Action ;) (6)
Après les vacances je viens d'avoir un appel du conducteur de travaux,
Les travaux vont bientôt reprendre ! J ai hate !
Maison Témoin AAMOI
Picto recompense Membre utile
Messages : Env. 3000
De : Bénévole Aamoi En Action ;) (6)
Ancienneté : + de 20 ans
Article

« Commande de la charpente »

Gros oeuvre > Fondations - vide sanitaire - dalle Par cyberastuce le 10/10/2025 à 08h40
Depuis la rentrée les ouvriers sont revenus sur le chantier pour decoffrer
Le sous-sol et préparer pour recevoir la dalle du rez-de-chaussée .
Normalement on devrait être bientot etre livré de la dalle du rez-de-chaussée

Le conducteur de travaux et le directeur technique m ont appelé pour commander les menuiseries et que je donne la liste de ce que je voulais en terme de menuiserie pour les couleurs les cintres des volets roulants et cetera... L'équipe m'associe à tous les choix et ils sont vraiment très flexibles et arrangeants.
Chaque fois qu'il y a quelque chose qui peut m'arranger ils essayent et ils font en fonction du souhait du client.

J'avais demandé à être informé pour confirmer à la commande de la charpente et du coup ils m'ont fait voir le devis tout ça donc je vais avoir une charpente en lamellé-collé très sympa et avec le plafond apparent et des caisson chevronné trilattes j'adore parce que ça donne un énorme volume au plafond.

Là il faut travailler sur le plan électrique contrairement aux autres constructeurs on a tout le temps pour réfléchir, on a pas 2h à la map pour mettre le plan électrique .
J ai ete prévenue à l'avance et avec le plan je réfléchis bien tranquillement parce qu'en 2h de map on n'aura pas le temps de réfléchir à tous les emplacements des prises électriques des canapés des lits des tables de chevet et cetera qui vont nécessiter une prise et du coup j'ai vraiment le temps de réfléchir pour que la maison soit au petit oignons.

Le personnel de Mikit m'a associé à tous les choix, et quand c'était le même prix pour eux j'avais le choix de choisir le matériel que je voulais donc ils sont vraiment sympas et arrangeants.

Donc normalement je vais avoir la tuile terreal coloris panaché ou alors la tuile galléane coloris authentique ça fait un petit panaché de couleur sur les tuiles c'est très joli. Normalement au contrat j'avais de la galéane authentique mais en fait j'ai demandé si je pouvais avoir de la Terreal DCL coloris panaché ils m'ont répondu aucun souci si c'est le même prix pour le fournisseur on le fait avec plaisir.

Donc tout se passe bien !
Maison Témoin AAMOI
Picto recompense Membre utile
Messages : Env. 3000
De : Bénévole Aamoi En Action ;) (6)
Ancienneté : + de 20 ans
Article

« Livraison du plancher du RDC kp1 »

Gros oeuvre > Fondations - vide sanitaire - dalle Par cyberastuce le 29/10/2025 à 09h40
Aujourd'hui c'est un grand jour notre plancher est livré ! Les enfants sont fous de joie on a hâte qu'il soit posé
La charpente a été commandée ainsi que les panneaux sandwich de la toiture et les coffres de volet roulant cintré pour donner un aspect provençal à la maison



Vivement que ça pousse !
Maison Témoin AAMOI
Picto recompense Membre utile
Messages : Env. 3000
De : Bénévole Aamoi En Action ;) (6)
Ancienneté : + de 20 ans
Article

« Pose du plancher du rdc en cours ! »

Gros oeuvre > Fondations - vide sanitaire - dalle Par cyberastuce le 01/11/2025 à 15h29
Ça y est la dalle est en cours de pose.
Mikit a bien rajouter les ruptures thermiques de plancher comme j'avais demandé et j'ai eu des hourdis IP 18 au lieu de IP 19 donc c'est encore mieux plus isolant

Tout se passe bien. Les messieurs n'ont pas encore la date de coulage mais j'ai vraiment hâte !





Maison Témoin AAMOI
Picto recompense Membre utile
Messages : Env. 3000
De : Bénévole Aamoi En Action ;) (6)
Ancienneté : + de 20 ans
Article

« Coulage de la dalle du rez-de-chaussée »

Gros oeuvre > Fondations - vide sanitaire - dalle Par cyberastuce le 26/11/2025 à 14h01
Et voilà la date du rez-de-chaussée est coulée c'est trop cool on voit bien ce que ça va donner maintenant et où vont avec les fenêtres !
Je suis super contente de voir mon projet avancer



















Maison Témoin AAMOI
Picto recompense Membre utile
Messages : Env. 3000
De : Bénévole Aamoi En Action ;) (6)
Ancienneté : + de 20 ans
 
Membre utile Env. 1000 message Alpes Maritimes
Bonjour super projet. C'est une extension de la maison actuelle ?
Adhérent AAMOI 10362
Picto recompense Membre utile
Messages : Env. 1000
Dept : Alpes Maritimes
Ancienneté : + de 7 ans
Article

« Élévation des murs pour Noël »

Gros oeuvre > Elévation des murs - étage Par cyberastuce le 24/12/2025 à 14h38
Élévation des murs pour Noël

Aujourd'hui surprise sur le chantier les maçons sont là .
Ce soir nous nous apprêtons à fêter Noël et c'est un un magnifique cadeau de voir cette maison poussée l'équipe est là toutes les briques ont été livrées la semaine dernière et la maison pousse...
Hâte d'habiter là avec mes deux petits-enfants enfin des grands maintenant des ados !











Maison Témoin AAMOI
Picto recompense Membre utile
Messages : Env. 3000
De : Bénévole Aamoi En Action ;) (6)
Ancienneté : + de 20 ans
 
bo Picto info
Membre sympa Env. 2000 message Nord
Joyeux Noël Cyberastuce et je te souhaite une belle maison pour 2026
Picto recompense Membre sympa
Messages : Env. 2000
Dept : Nord
Ancienneté : + de 19 ans
 
cyberastuce Picto info Auteur du sujet
Membre utile Env. 3000 message Bénévole Aamoi En Action ;) (6)
Merci beaucoup à toi aussi joyeux Noël et plein de belles choses pour ces fêtes pour nous le Père Noël nous livre une maison aujourd'hui les maçons ont coulé les raidisseurs verticaux à la toupie

C'est un très beau cadeau pour Noël de voir notre maison pousser les enfants sont fous de joie

La vue va être très belle en plus de la maison ce n'était pas du tout prévu parce que quand nous avons acheté le terrain il y avait beaucoup de ronces et de végétation et on ne voyait pas qu'il y allait avoir une si jolie vue...

Je vais aller voir ton projet à toi aussi si tu en as un !
à bientôt


bo a écrit:Joyeux Noël Cyberastuce et je te souhaite une belle maison pour 2026








Maison Témoin AAMOI
Picto recompense Membre utile
Messages : Env. 3000
De : Bénévole Aamoi En Action ;) (6)
Ancienneté : + de 20 ans
Article

« Élévation de l'étage et commande des menuiseries »

Gros oeuvre > Elévation des murs - étage Par cyberastuce le 20/02/2026 à 14h10
Bonjour à tous
quelques petites nouvelles parce que j'ai été bien débordée........
ces temps-ci tout avance bien on m'a envoyé la commande des menuiseries pour que je puisse choisir et modifier entre les châssis double vantaux et les châssis oscillo battants et aussi entre les seuils PMR et les seuils normaux et choisir le modèle de porte.
à chaque fois que une option ne faisait pas de différence de prix Mikit m'a laissé choisir sans aucun souci ce que je préférais et ils ont été très arrangeants donc je vais avoir des belles fenêtres oscillo-battantes un seul vantail partout normalement sans plus-value donc ça va faire des magnifiques fenêtres sur la vallée. Je vais avoir tout ce que je veux niveau menuiserie c'est vraiment super cool et je vais avoir sans supplément de prix une télécommande pour la porte de garage (je ne savais même pas qu'elle serait motorisée) et une commande centrale des volets roulants et tout ça c'était même pas marqué sur le contrat il y a aucun supplément de prix pour le moteur de porte de garage et centralisation des volets donc franchement super surprise.

Aujourd'hui les maçons sont au travail et ils sont en train de monter les murs de l'étage ils m'ont téléphoné pour vérifier une taille de fenêtre et ils sont très coopératif que ce soit ceux de mikit ou alors les maçons...
Voici quelques petites photos j'adore la vue que je vais avoir de la chambre.

Ça va être une super jolie maison trop contente et les enfants sont trop excités





Maison Témoin AAMOI
Picto recompense Membre utile
Messages : Env. 3000
De : Bénévole Aamoi En Action ;) (6)
Ancienneté : + de 20 ans
Article

« Arase supérieure »

Gros oeuvre > Elévation des murs - étage Par cyberastuce le 18/03/2026 à 10h46
Après quelques péripéties avec les voisins qui se sont plaints de la hauteur de la maison alors que c'est celui qui m'a vendu le terrain qui se plaignait majoritairement (pourquoi a-t-il vendu son terrain pour ensuite se plaindre de la hauteur et que le permis était annexé à la vente ? Le beurre et l'argent du beurre et la crémière,....) ce qui a donné lieu à quelques tergiversations...


La mairie a déclenché un contrôle avec la police municipale et je leur ai envoyé un recommandé pour acter ce qui s'était dit à la réunion de contrôle afin que la mairie ne change pas d'opinion par la suite en cas de changement de majorité à l'élection municipale.

Pour l'instant la mairie demande que les remblais du permis de construire soit faits. J'ai répondu qu'ils allaient être fait en fin de chantier

Les travaux se poursuivent...
Mais les voisins m'ont bien refroidi...
Sans compter que le voisin est chasseur donc j'ai peur en permanence de me prendre un coup de fusil.

Le constructeur nous a accompagné lors de cette etape avec des propositions pertinentes.

l équipe et ses sous-traitants ont su faire preuve de beaucoup de professionnalisme pour s ajuster a la situation. De vrais pros et un chantier dans la bonne humeur malgré les voisins
Maison Témoin AAMOI
Picto recompense Membre utile
Messages : Env. 3000
De : Bénévole Aamoi En Action ;) (6)
Ancienneté : + de 20 ans
Article

« Pose de la charpente et debut des genoises »

Gros oeuvre > Charpente - couverture Par cyberastuce le 04/04/2026 à 12h39
Et voilà la charpente traditionnelle a été posée et les panneaux trilattes ont été livrés pour une charpente apparente et les génoises traditionnelles sont en coursle printemps pointe le bout de son nez !
Nous avons pu choisir la couleur des tuiles et le modèle pour avoir les mêmes que sur la construction existante et ne pas avoir plusieurs moules de tuiles différents en cas de grêle. Le constructeur a été très arrangeant.
Là on doit choisir les appuis de fenêtre et le constructeur nous a laissé voir avec son fournisseur pour qu'on choisisse ce qui nous plaisait le plus.
C'est pas hyper simple de trouver des appuis compatibles parce que on a des seuils PMR pour la norme handicapé et j'aimerais bien une couleur beige pour ne pas que ce soit trop salissant comparé au blanc.






Maison Témoin AAMOI
Picto recompense Membre utile
Messages : Env. 3000
De : Bénévole Aamoi En Action ;) (6)
Ancienneté : + de 20 ans

En rapport avec cette page :

Devis construction de maisonArtisan
Devis construction de maison
Demandez, en 5 minutes, 3 devis comparatifs aux professionnels de votre région. Gratuit et sans engagement.
Comment trouver des avis pertinents sur un constructeur ?
Comment trouver des avis pertinents sur un constructeur ...
Les guides vous aident à y voir plus clair sur la construction.
Les 10 maisons les plus extraordinaires des membres de Forum Construire
Les 10 maisons les plus extraordinaires des membres ...
L'équipe de Forum Construire sélectionne pour vous les plus belles photos des membres et du web.
Calculette construction gratuite !
Calculette construction gratuite !
Découvrez les outils et services exclusifs de ForumConstruire.com

Autres récits de construction :

  • notre maison a valbonne
     06  Notre Maison a Valbonne
    Bonjour Mon mari et moi commencons l'aventure de construire notre maison. Notre projet: maison a Valbonne, dans les Alpes Maritimes, sur un terrain de ...
    Valbonne (Alpes Maritimes) Par Lulita 717 mess.
  • premiere construction
     06  Premiere construction
    apres 7 ans d'attente le plu de notre commune est enfin devenu favorable et notre permis devrait etre accepte. Nous souhaitons construire une villa provencale ...
    Villeneuve Loubet (Alpes Maritimes) Par DIAW 163 mess.
  • maison bois entre le bbc et le passif sur la cote d azur
     06  Maison bois entre le BBC et le Passif sur la Côte d'Azur
    Du reve a la realite : Construction d'une maison en bois A la recherche d'un terrain sur la cote d'azur, nous avons signe un compromis en Fevrier 2011. ...
    Peymeinade (Alpes Maritimes) Par slasch 91 mess.
  • astroconstruction antibes
     06  Astroconstruction Antibes
    Astroconstruction sur Antibes. Une envie d'avoir ma maison, un terrain... mais pas d'argent pour le faire faire... Donc je remonte mes manches et je me ...
    Antibes (Alpes Maritimes) Par pier06 59 mess.
  • notre maison valbonnaise
     06  Notre maison Valbonnaise
    Bonjour, Apres avoir visite beaucoup de maisons, nous avons decide de nous lancer dans la construction suite a un coup de cur pour un terrain. Notre projet ...
    Valbonne (Alpes Maritimes) Par Catyanem 292 mess.
  • 38442 26412 sakamoto
     06  阪本 (Sakamoto)
    J'espere que ce recit servira a d'autres autant que ce que j'ai pu retirer moi-meme sur les derniers mois en parcourant le forum et en rencontrant parfois ...
    Mouans Sartoux (Alpes Maritimes) Par GrooveSAN 82 mess.
  • maison a valbonne
     06  Maison à Valbonne
    Apres avoir essaye de visiter des maisons dans l'ancien, nous avons rapidement constate que nous aurions a faire beaucoup de compromis ou beaucoup de travaux ...
    Valbonne (Alpes Maritimes) Par loum 37 mess.
2
abonnés
surveillent ce récit

"Notre maison avec Mikit Alpes maritimes "

Accueil du projet Sommaire du projet Photos du projet Derniers messages Partager
cyberastuce Auteur : cyberastuce
Localisation du projet Lieu de la construction :
FRProvence Alpes Cote d'azurAlpes Maritimes Le Bar Sur Loup Voir sur une carte
Informations sur le projet Informations sur le projet :
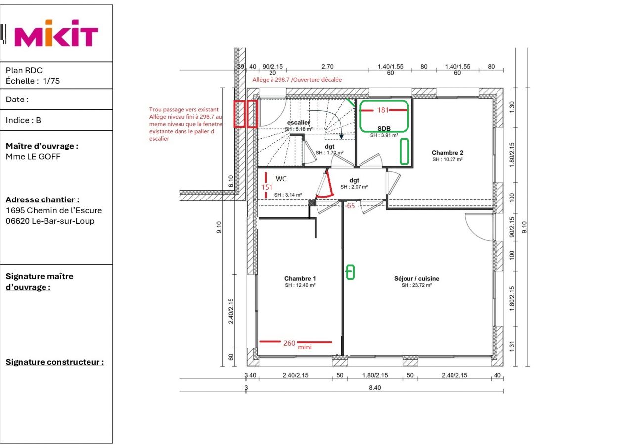
Type de travaux : Construction neuve
Type de construction : Sous sol + RDC + étage
Style : Régionale / Traditionnelle
Label énergétique : RT2012
Surface habitable : 130m² (6 pièces)
Superficie terrain : 1277m²
Informations sur le projet Constructeur du projet :
Mikit
Cagnes sur mer (6)
Avis du membre :
Raccourci internet du récit Raccourci internet
Voir