Retour
Menu utilisateur
Menu

Aménagement de combles en copropriété : Aides et conseils

Ce sujet comporte 34 messages et a été affiché 357 fois
Nouveau sujetPicto plus RépondrePicto reply Picto reply
7
abonnés
surveillent ce sujet
 
Env. 20 message Alpes Maritimes
Bonjour,

Dans ma présentation, j'ai demandé où poster mon message, mais je n'ai pas eu de réponse. J'espère être au bon endroit. (Je suis nouveau ici, j'ai essayé d'intégrer les règles, si je fais mal, merci de me corriger gentiment)

J'ai pour projet d'aménager les combles de ma copro. Étant simple étancheur (bureau d'études), je n'ai pas de compétences en dehors de mon domaine, d'où ma venue ici. Je ferai un second message pour résumer les questions.

Je souhaite apporter des modifications régulières de ce fil de discussion pour y apporter les connaissances accumulées, l'avancement du projet en espérant que cela serve à d'autres.
J'ai besoin de beaucoup de conseils partant de presque rien. Tout ce que je mets ci-dessous est, en l'état de mes connaissances actuelles, mes recherches sont récentes et pas toutes digérées et ne se prévalent pas de l'avis de professionnels étant un simple particulier cherchant uniquement à réaliser son projet.

Pour commencer, j'ai l'accord oral de l'ensemble des copropriétaires. Quand il fallait l'unanimité, il semble que la loi a changé et que la majorité des 2/3 suffit. En revanche, la mise à jour des tantièmes doit être validée par 100% des copropriétaires. Un géomètre expert peut venir valider les surfaces et établir une proposition de la nouvelle répartition.

PLU : En centre ville, le PLU permet de créer éventuellement 5 étages supplémentaires, étant actuellement un immeuble de 2 étages, ça devrait aller de ce coté. Coté nord, il n'y a aucun vis-à-vis, il s'agit d'une cours intérieure avec en face une façade d'un dépôt sans fenêtre. Coté sud, un immeuble R+5. A l'ouest, en mitoyen, un immeuble de R+7 étages et à l'est un immeuble R+3, nous viendrions à leur niveau. Nous resterions plus bas ou au même niveau que les mitoyens.

Etape I : Faisabilité :
Je voulais réaliser une sur-élévation pour avoir une hauteur sous-plafond importante mais cela nécessite semble-t-il d'appliquer les eurocodes. Cela impliquerait donc de faire en sorte qu'un bâtiment de 1920 soit aux dernières normes sismiques (et d'autres). J'opte donc pour une toiture à la Mansart en remplacement d'une toiture tuile traditionnelle. Sur un plan pratique, il ne s'agit pas d'une sur-élévation mais d'un aménagement, donc ce n'est semble-t-il pas soumis aux mêmes règles.

Point important, la contrainte du poids. Après discussion informelle avec un ingénieur structure, il semble d'usage qu'apporter un surplus de 10% du poids du niveau inférieur permet de s'exempter d'une étude de sol qui serait destructive et bien trop couteuse étant en plein centre ville avec des immeubles mitoyens des deux cotés et tous les réseaux en voirie avec la contrainte d'être en radier.
Je ne sais pas si cela veut dire 10% du niveau inférieur + charpente existante ou uniquement du dernier niveau habitable ... à vérifier.

La chasse au poids :
Si je dois viser ces 10% je dois savoir à quoi cela correspond. J'ai donc réalisé un petit fichier excel avec tout (ou presque) ce qui compose mon étage :
Mon étage pèse environ 157 tonnes (murs en pierre d'épaisseur 50cm, dalles et poutres en béton, chape, carrelage, cloisons en machefer, etc.)
La charpente existante 18 tonnes (Tuiles, génoises, plancher existant, poutres support génoises, plâtre, chevêtre, arbaletrier, poutres, pannes, isolant existant, etc)
Poutres béton supports charpente et génoises = 13 tonnes.
Elements divers 2 tonnes (tuyaux, gaines, baignoire, huisseries)

Pour un total de 190 tonnes.

J'aurais donc, si je comprends bien, le droit d'ajouter grosso modo 19 tonnes en sus du poids existant.

Cependant, devant retirer complètement l'ancienne charpente et divers éléments, le poids de ces éléments peut-être conservé dans le calcul du poids total du projet (Si j'enlève 1kg et que je remets 1kg, c'est transparent et n'entre pas dans les 10%)
Donc le futur projet pourra peser 19 tonnes (soit les 10% en sus) + 18 tonnes (soit les éléments retirés) = 37 tonnes.

Il va de soit que pour gagner en poids il faudra réaliser une ossature majoritairement en bois.

Etape II : Conception

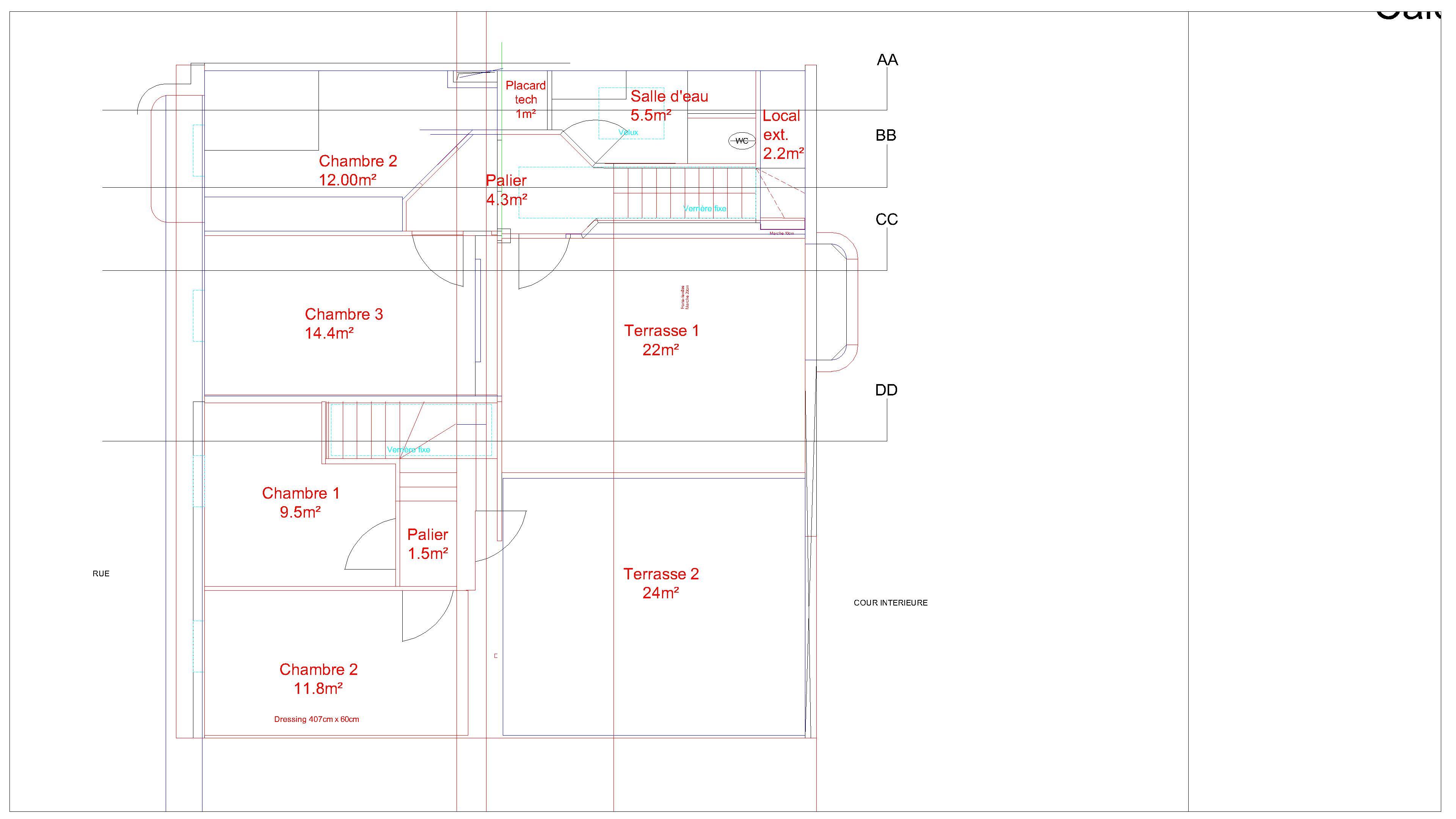
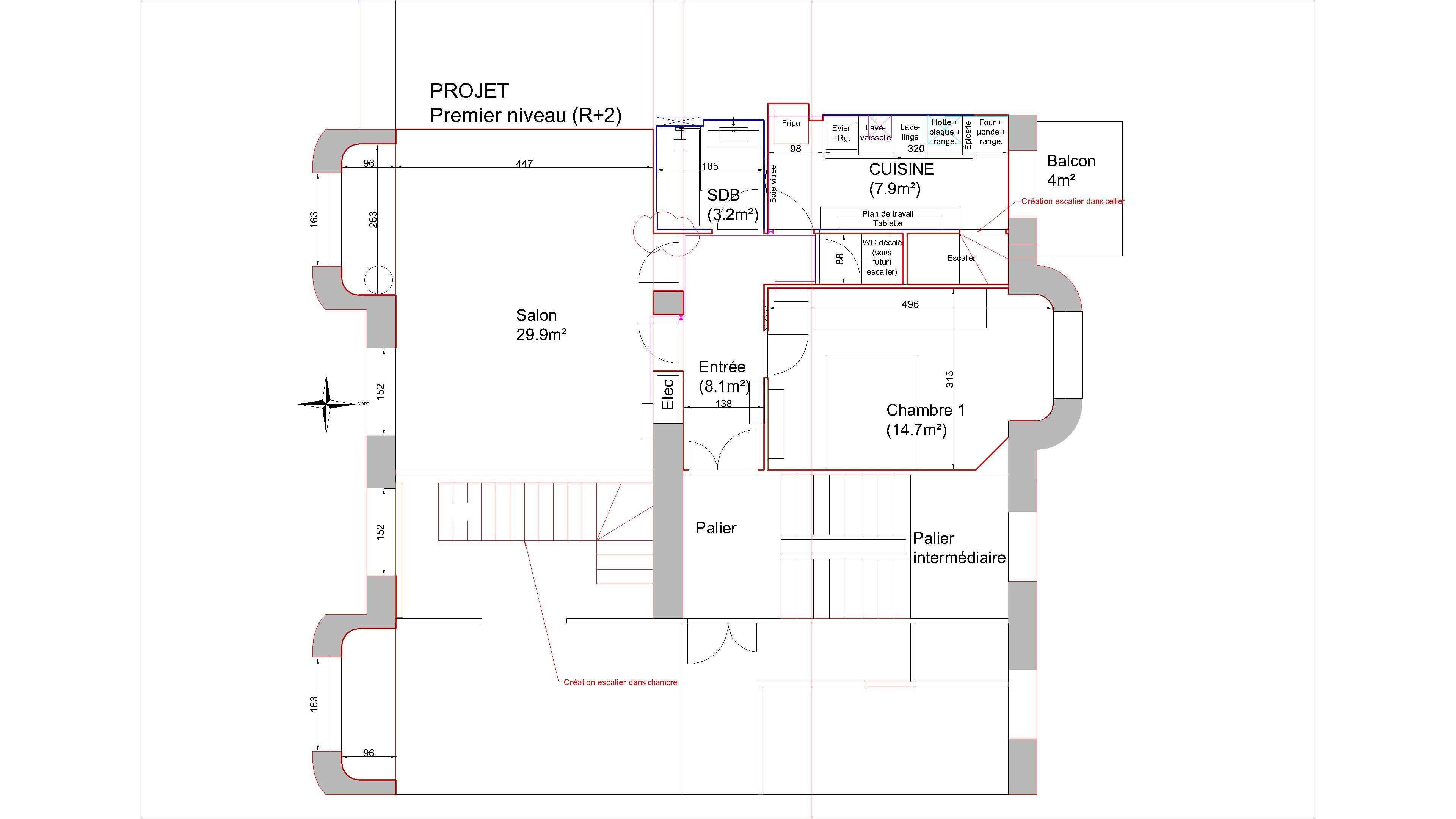
Alors voici les plans de l'existant et les esquisses du projet :


Coupe AA

https://www.zupimages.net/up[...]06/ju5n.jpg


Coupe BB

https://zupimages.net/up/24/[...]06/di6w.jpg


Coupe CC

https://www.zupimages.net/up[...]06/3kni.jpg


Plan du premier niveau (R+2)

https://www.zupimages.net/up[...]06/tm35.jpg


Plan de l'étage (Futur R+3)

https://www.zupimages.net/up[...]06/jugd.jpg


Vue de la façade SUD et des immeubles mitoyens

https://www.zupimages.net/up[...]06/v9gw.jpg


II-A La structure :

Une première contrainte est la création d'une terrasse, coté nord (pour éviter d'une part le vis-à-vis, d'autre part de pouvoir utiliser la terrasse plus facilement en été)
La seconde contrainte est le choix de l'emplacement de l'escalier. J'ai fait ce choix pour mon appartement d'une part éviter de perdre de l'espace au premier niveau, d'autre part de créer une répartition de l'espace optimisée à l'étage.

La grosse question est maintenant de savoir si je peux utiliser les poutres béton existantes nord et sud (il n'y en a pas côté Est/Ouest) comme support de la charpente (ainsi que le mur central de l'immeuble). Puis-je percer cette poutre par dessus pour y mettre les jambes de force, sablières, poteaux, arbalétrier, etc ?
De la même manière, les poutres existantes du plancher présentent actuellement des écarts altimétriques de plus de 10cm. Est-il possible de percer les deux poutres béton où viennent s'encastrer les poutres bois du plancher pour mettre en place des muralières et mieux gérer l'appui périphérique ?

II-B L'aménagement : Le plan d'aménagement est provisoire mais j'ai du mal à voir d'autres possibilités si je respecte la contrainte d'une terrasse au nord et cette position d'escalier.
Le palier distribue toutes les pièces.

La terrasse extérieure, j'hésite entre un plancher bois exotique (massaranduba?) ou des dalles grès céram. Le cout plus élevé, la mise en oeuvre plus complexe et l'entretien du bois me font un peu peur. De l'autre coté, les dalles grès céram, je trouve ça pas génial d'une part sur le plan esthétique, d'autres par en confort de marche (même avec les patins amortisseurs).

Pour info le massuranduba me couterait 60€/m² pour les lames + 4,20/ml€ tasseau + 2€/plot réglable (environ, ça dépend de la hauteur des plots réglables mais c'est l'ordre d'idée) + visserie inox A4-316L (je suis proche de la mer). Les dalles grès 23€/m² (Je ferais moi-même ces travaux)

II-C L'isolation (phonique et thermique)

Alors là c'est un sujet important et peut-être bloquant :

De ce que j'ai vu, si l'aménagement est inférieur à 50m², je ne serais soumis qu'à une version alternative de la RE2020.
J'aurais souhaité réaliser dans un premier temps, l'aménagement d'environ 39.3m² carrez chez moi. La voisine, n'a pas les moyens de faire les travaux pour le moment et sa partie serait d'environ 22.4m² mais faire le bâti et dans 2 ou 3 ans l'aménagement est-il possible ?

Dois-je donc considérer le projet potentiel dans son ensemble même si au final la voisine décide de ne pas réaliser d'aménagement ou puis-je compter juste ma partie ?

D'après le guide (édition 2024), j'ai une obligation de "moyens" donnant le droit à une attestation simplifiée cncernant :

Ok mais qu'est-ce au juste que l'obligation de moyen ? C'est indiqué que "cela impose des performances pour des composants ou ensembles de composants spécifiques qui doivent être obligatoirement respectées pour se conformer à la réglementation." Voici lesquelles :

Citation: -Performance thermique minimale des parois opaques et vitrées donnant sur l'extérieur => Coeff. de transmission thermique max pour plancher bas, porte non vitrées, verrières, vérandas et lanterneaux.
-Performance éclairage => P­­­≤1 W/m² SU pour 100 lux moyen sur zone à éclairer (Qu'est-ce que ça veut dire ?)
-Performance minimale pour les équipements de chauffage et de refroidissement (uniquement concernant l'extension) :
- Radiateurs électriques avec régulation et détection d'absence et d'ouverture de fenêtre (=domotique)
- Radiateurs et convecteurs : variation temporelle <0,6K (Qu'est-ce que ça veut dire ?)
- PAC air/air ≤12 KW, SCOP ≥ 4,2 (resp. 6 pour SEER) (Donc un bloc pour 150m² de 9,5KW, c'est ok ?)
-Ponts thermiques, non requis pour le 1er niveau créé en surélévation, pour les autres => Se limite à Ratio Ψ < 0,6 W/(m² Sref. K) (Qu'est-ce que ça veut dire ?)
- Facteurs solaires, automatisme, dispositif d'arrêt manuel et de réglage par local => Requis



Bon avec tout ça, c'est bien, mais ça ne me parle pas trop. Je ne m'y connais pas du tout en CVC et la résistance thermique minimale n'est pas indiquée dans ce guide (ou j'ai mal vu).

J'imagine donc qu'il faut payer les services d'un bureau d'étude thermique qui vérifie que les obligations de moyens sont bien respectées.
Quid des contraintes minimum sur l'isolant ? Cout du service ?

D'une manière générale, j'ai besoin d'un confort d'été, l'hiver, il neige tous les 10 ans ici. Je pense donc mettre en œuvre des panneaux rigides d'isolant en fibre de bois (ne pas confondre avec la laine de bois beaucoup moins dense) avec un déphasage de 17h

Concernant le phonique : J'aimerais isoler au mieux cet aménagement sur le plan phonique que ce soit entre l'étage créé et le niveau inférieur mais également entre les immeubles mitoyens et l'appartement "jumeau" (nous sommes deux voisins sur le projet). J'ai pensé que la réalisation de deux toitures indépendantes permettrait déjà de limiter la propagation du son entre nos deux appartements.
Ensuite, j'ai pensé que mettre en œuvre les poutres sur un résilient pouvait limiter les bruits de chocs. Ensuite, mettre des cloisons phoniques et de l'isolant entre le nouveau plancher et l'ancien plafond.
Je n'ai aucune idée de comment ça marche et me fourvoies surement. Si vous avez des conseils je suis preneur. 
͎
Concernant les huisseries : Je trouve l'aspect des menuiseries contemporaines souvent horribles. J'aime les meneaux mouton gueule de loup. Existe-t-il des choses à l'aspect ancien mais avec les performances modernes ? Je pensais partir sur un vitrage 4-16-10 pour un meilleur résultat phonique. Ensuite, pour des raisons normatives, il semble qu'il faut que je puisse commander les volets de manière automatique.
Je prends tout conseil sur le sujet. 

II-D Chauffage/Climatisation :

Actuellement, j'ai un chauffage au gaz, dont le cout de l'abonnement est déjà hallucinant vu que je chauffe au pire 2 mois dans l'année, mais avec l'augmentation du prix du gaz, j'ai l'impression que ce n'est pas rentable du tout. Je souhaite virer ma chaudière à gaz pour la remplacer par une installation électrique ou solaire.

Vous l'avez compris, ma crainte, c'est en fait surtout d'avoir trop chaud.

Je souhaite donc mettre en oeuvre une climatisation gainable (hors de question d'avoir des blocs moches). Mais je ne m'y connais pas du tout en flux ... j'ai lu que Daikin était passé de l'excellence à mauvais élève niveau fiabilité et SAV ... Qu'en pensez-vous ?
Je pense donc mettre le bloc clim sur mon petit balcon au premier niveau avec un répartiteur dans un plenum situé dans le couloir du premier niveau, devant la porte de la salle de bain. Je pourrais alimenter le salon, la chambre du premier niveau puis passer une gaine vers l'étage et répartir dans les nouvelles chambres.
Quid de l'entretien ?

II-E Le photovoltaïque.

Profitant d'un ensoleillement plutôt correct bien qu'entourré d'immeubles plus hauts, j'aimerais connaitre l'éventuelle rentabilité d'une installation photovoltaïque avec revente totale à EDF (pas de stockage). Une étude réalisée par un vendeur de panneau est à prendre au sérieux ou ils mettent des étoiles dans les yeux juste pour qu'on signe ?

J'ai entendu qu'il fallait privilégier le monocristalin pour sa meilleure durée de vie ? Des avis ?
Quid vu le prix d'achat/vente d'électricité et des contraintes liée à batterie, est-ce rentable d'avoir un onduleur ? (Je n'ai pas de véhicule électrique et ne pourrait pas en avoir via cette installation, du coup l'intérêt me semble limité).

Etape III : Etude de prix (work in progress)

Achat des combles : Je négocie pour que cela soit une cession. Je m'occupe de la copro, des comptes, des petites réparations et les propriétaires sont contents de mes services.
Pour le moment, ils sont d'accord à ce que les combles me soient cédés mais ... pas à la voisine. :S J'ai peur que ça coince un peu de ce coté là.
J'ai mis en avant que je payais une toiture neuve qui commence à présenter quelques faiblesses et que l'ajustement des tantièmes feraient qu'ils paieraient moins de charges et serait gagnants même à court terme.

Estim études structure/faisabilité : 4500€
Estim permis de construire/validation archi : 3500€
Estim géomètre expert : 1500€
Estim taxe d'aménagement : 3325€ (d'après simulateur)
Estim Charpente 60k€ (compris études, reprises de maçonnerie, DO et GPA)
Estim Nouveau plancher 15k€ structure + 8k€ OSB + 8k€ terrasse
Estim Plomberie sdb : 4k€
Estim élec (déplacement des gaines et de l'antenne) 2k€ (hors aménagement intérieur)
Estim Fourniture isolant sous pente 12k€ (pose compris lot charpente)
Estim cloisons 29k€ : Rails + BA13 phonique / Feu / hydro / simple selon cas) + isolant phonique  ... à voir si  je peux avoir moins cher, c'est un budget énorme.
Estim Revêtements de sol et muraux : 8k€
Estim plomberie : 6250€
Estim escaliers 7k€
Estim portes : 2400€
Estim peintures : 15k€
Estim clim gainable : 12k€
Estim panneaux solaires monocristallin 400wC 13000€
Estim Fenêtres (4) / Baies vitrés 2 voire 3 / Verrières esc x2 : 20.5k€

Total 235k€ dont 145k€ à ma charge.
Je pourrai m'occuper du suivi de chantier de la réalisation de l'étanchéité de la terrasse et sa protection pour moi et la voisine. Concernant la peinture, les cloisons, l'électricité, le parquet, je ferai moi-même pour ma partie pour faire baisser les couts notamment l'isolation si je n'ai pas le droit aux aides.


Etape IV : Finacement, aides.
Ai-je le droit à certaines aides dans mon projet ? (Revenus 2022 et 2023 d'environ 18k€)
Le fait qu'il faille déposer un permis de construire me fait craindre que ça rentre dans le cadre, non d'une rénovation mais d'une construction neuve et qu'il n'y a donc pas d'aides ... Est-ce le cas ?
Il semble que ce soit le bordel sur les aides, car l'État doit simplifier les procédures qui ont été trop complexifiée depuis début 2024 

De mon coté, j'ai une capacité d'emprunt de 90k€ sur 25ans (+ si j'ai le droit à l'éco prêt taux 0%). J'ai 50k€ d'épargne à disposition pour le projet (+ la même chose en cas d'imprévu),
Je pense faire une coloc avec les 2 nouvelles chambres au moins un an pour tester, à raison de 500€ la chambre CC. (je suis à 5-10 minutes à pieds d'une Faculté)

Etape V :
Procédures administratives.

Assemblée générale et modif tantième = à faire
Dépot de permis = à faire
Attestation RE2020 simplifiée = à faire
Déclaration impots = à faire

Etape VI : Réalisation (work in progress)

Choix des intervenants et entreprises.
???
Rédaction CCTP et DPGF en cours.
Edité 1 fois, la dernière fois il y a +1 an.
Messages : Env. 20
Dept : Alpes Maritimes
Ancienneté : + de 8 ans
 
Ne vous prenez pas la tête pour l'aménagement de vos combles...

Allez dans la section devis aménagement des combles du site, remplissez le formulaire et vous recevrez jusqu'à 3 devis comparatifs de artisans de votre région. Comme ça vous ne courrez plus après les artisans, c'est eux qui viennent à vous

C'est ici : https://www.forumconstruire.com/construire/devis-0-75-devis_amenagement_des_combles.php
 
Env. 20 message Alpes Maritimes
Le premier post étant long, voici un résumé des questions les plus importantes/urgentes :
- Rajouter du poids sans étude de sol est-il fortement déconseillé ou les 10% de surplus de l'étage inférieur est un cas classique sans souci auprès des assurances ? (Un BE structure sera mandaté si je dois lancer le projet)
- Comment fonctionnent les DO et les GPA ? En cas de carence de l'entreprise, les assurances prennent le relai rapidement ou c'est un voeu pieu ?
- Est-ce que la charpente peut-se fixer sur les poutres béton existantes ? (sur le dessus)
- Est-ce que des muralières peuvent se fixer sur les cotés des poutres béton existantes ?
- Quelle épaisseur d'isolant faut-il prévoir en fibre de bois pour être conforme à la RE2020 ?
- Est-ce que des aides peuvent être octroyées dans le cas d'un aménagement de combles dans le cas où cela fait l'objet d'un permis de construire ?

Vous remerciant d'avance !
Messages : Env. 20
Dept : Alpes Maritimes
Ancienneté : + de 8 ans
 
Membre utile Env. 400 message Haute Savoie
Bonsoir,

Bon déjà, on voit que vous êtes hyper motivé et impliqué dans ce projet. Mais les questions que vous posez sont pointues et délicates... Rien que pour la 1, la 3 et la 4, je vois mal comment vous pourriez vous contenter d'une réponse sur un forum (même si nous sommes hyper compétents bien évidemment Happy)

L'assurance DO a pour but de déterminer quel corps de métier est responsable en cas de sinistre. Sur la réno d'un bâtiment ancien, je présume qu'ils vont tout faire pour mettre en cause les artisans de 1920 (ou l'absence d'études préliminaires à la construction en 1920), et donc botter en touche.

Pour la question 5, la résistance R minimale à atteindre (et donc l'épaisseur d'isolant) dépend de la zone climatique. Dans le 06, c'est la zone H3. Vous devriez pouvoir facilement trouver l'info sur le net.

Question 6 : j'ai vu passer l'info suivante pour ma Prime Rénov : l'extension de volume vertical (surélévation) ou horizontale ne doit pas dépasser 14m² pour être finançable. Mais c'est à se faire confirmer.
Picto recompense Membre utile
Messages : Env. 400
Dept : Haute Savoie
Ancienneté : + de 2 ans
 
Membre ultra utile Env. 20000 message Alpes Maritimes
Bonjour.

Le budget prévisionnel me paraît extrêmement sous évalué.

Par exemple le poste architecte.

Qui va assurer la maîtrise d'oeuvre ?
Picto recompense Membre ultra utile
Messages : Env. 20000
Dept : Alpes Maritimes
Ancienneté : + de 3 ans
 
Env. 20 message Alpes Maritimes
Alfred74 a écrit:Bonsoir,

Bon déjà, on voit que vous êtes hyper motivé et impliqué dans ce projet. Mais les questions que vous posez sont pointues et délicates... Rien que pour la 1, la 3 et la 4, je vois mal comment vous pourriez vous contenter d'une réponse sur un forum (même si nous sommes hyper compétents bien évidemment Happy)

L'assurance DO a pour but de déterminer quel corps de métier est responsable en cas de sinistre. Sur la réno d'un bâtiment ancien, je présume qu'ils vont tout faire pour mettre en cause les artisans de 1920 (ou l'absence d'études préliminaires à la construction en 1920), et donc botter en touche.

Pour la question 5, la résistance R minimale à atteindre (et donc l'épaisseur d'isolant) dépend de la zone climatique. Dans le 06, c'est la zone H3. Vous devriez pouvoir facilement trouver l'info sur le net.

Question 6 : j'ai vu passer l'info suivante pour ma Prime Rénov : l'extension de volume vertical (surélévation) ou horizontale ne doit pas dépasser 14m² pour être finançable. Mais c'est à se faire confirmer.

Bonjour,

Merci de votre réponse !

Désolé pour les questions "un peu" compliquées. J'ai un peu peur de consulter les entreprises avant d'avoir un minimum de connaissances pour discuter avec le charpentier, le BE structure et l'architecte.

Pour l'assurance DO, ok, donc c'est obligatoire mais ne sert à rien ... du coup en cas de souci, l'assurance des BE, archi, exécutants me couvre ou pas ??
Pour la GPA, c'est efficace ? Vivant dessous, si l'entreprise se barre au milieu, s'il pleut ça serait la catastrophe.

Pour la question 5, la RE2020 prévoir un R de 7 pour les combles aménageables, soit 180mm de fibre de bois 5.00m²*K/W + 8cm de laine de roche (2.05m²*K/W) ...

Pour la question 6, je n'arrive pas à retrouver l'info des 14m². C'est en surface projetée ? (C'est à dire que si je baisse la toiture pour qu'en projection ça fasse moins de 14m² (entre le nouveau faitage et l'actuel), j'aurais le droit aux aides ?
Messages : Env. 20
Dept : Alpes Maritimes
Ancienneté : + de 8 ans
 
Env. 20 message Alpes Maritimes
Calète a écrit:Bonjour.

Le budget prévisionnel me paraît extrêmement sous évalué.

Par exemple le poste architecte.

Qui va assurer la maîtrise d'oeuvre ?


Bonjour,

Merci de votre réponse également !

Le budget étant limité, pour la MOe, habitant et travaillant sur place, je pense pouvoir mon occuper.
Pour l'architecte, je m'occuperai avec une amie de toute la modélisation 3D pour le permis. J'espère avancer les plans un maximum pour qu'au final l'architecte n'ai au final qu'un "coup de tampon" à mettre.

J'ai l'impression, peut-être à tort, que la plupart des choses techniques vont reposer sur le charpentier et son bureau d'études. Qu'en pensez-vous ?

Quels autres postes pensez-vous être sous-évalués ?
Messages : Env. 20
Dept : Alpes Maritimes
Ancienneté : + de 8 ans
 
Membre super utile Env. 3000 message Vesoul (70)
Bonjour doriandoy ,
doriandoy a écrit:Le budget étant limité, pour la MOe, habitant et travaillant sur place, je pense pouvoir mon occuper.

Vous êtes dans une copropriété donc le syndic réclamera probablement que le chantier soit suivi par un architecte de A à Z avant de donner son accord.
C'est le bien patrimonial de chacun des copropriétaires, directement ou indirectement qui est sur la table.

Citation: Pour l'architecte, je m'occuperai avec une amie de toute la modélisation 3D pour le permis. J'espère avancer les plans un maximum pour qu'au final l'architecte n'ai au final qu'un "coup de tampon" à mettre.

Je l'attendais celle-là !
Signature de complaisance = illégal.
On en parle assez sur ce forum. 

Citation: J'ai l'impression, peut-être à tort, que la plupart des choses techniques vont reposer sur le charpentier et son bureau d'études. Qu'en pensez-vous ?

Ca va reposer sur tout le monde, y compris vous-mêmes si vous n'avez pas fait les bons choix (et c'est mal parti)

Citation: Quels autres postes pensez-vous être sous-évalués ?

L'apport de l'architecte, clairement.

Personnellement, je ne répondrais pas à plus de vos questions en raison de votre souhait de signature de complaisance.

Spoonman, MOE
Picto recompense Membre super utile
Messages : Env. 3000
De : Vesoul (70)
Ancienneté : + de 13 ans
 
Membre super utile Env. 3000 message Vesoul (70)
Ah, j'avais oublié ça !
doriandoy a écrit:Le budget étant limité, pour la MOe, habitant et travaillant sur place, je pense pouvoir mon occuper.
Pour l'architecte, je m'occuperai avec une amie de toute la modélisation 3D pour le permis. J'espère avancer les plans un maximum pour qu'au final l'architecte n'ai au final qu'un "coup de tampon" à mettre.

Quand on n'a pas les moyens financiers pour faire réaliser son projet correctement, on revoit ses prétentions à la baisse ou on augmente son budget.

Spoonman, MOE
Picto recompense Membre super utile
Messages : Env. 3000
De : Vesoul (70)
Ancienneté : + de 13 ans
 
Membre ultra utile Env. 20000 message Alpes Maritimes
Tout pareil que Spoonman.

Notamment à propos de la signature de complaisance, du coup de tampon de l'architecte amie.

Elle ne restera pas longtemps une amie à mon avis. 

Il ne faut jamais travailler avec des amis et surtout pas en payant au rabais ces amis.

Et je m'éloigne de ce sujet de discussion d'autant plus que doriandoy souhaite impliquer une voisine dans ce projet, voisine qui n'aurait donc son mot à dire sur rien.

Adieu doriandoy.

Même si j'ai parfois l'impression que ce sujet de discussion est un aimable jeu ou un exercice pour un étudiant.
Picto recompense Membre ultra utile
Messages : Env. 20000
Dept : Alpes Maritimes
Ancienneté : + de 3 ans
 
Env. 20 message Alpes Maritimes
Merci de votre retour,
J'essaye de faire ce que je peux pour optimiser "au mieux" et le mieux n'est peut-être pas ce à quoi je pense. Veuillez me pardonner ma naïveté. Si la présence d'un architecte est un impératif, je m'y plierai sans souci quitte à revoir des prestations à la baisse ou augmenter mon budget. Je ne savais pas du tout que le coup de tampon était prohibé, de ce fait, il est évident que je ne me satisferai pas de cela.
Je ne suis pas un "sachant", je viens avec des questions et j'apporte "ma vision" en l'état de mes connaissances qui ont besoin d'évoluer comme indiqué dans mon premier message. J'ai besoin de vos conseils pour faire avancer mon projet où, je pars de rien. Ce n'est pas facile, vous me tombez dessus, à raison, mais je n'ai pas de "mauvaises intentions".
J'ai une grande crainte, réaliser des fortes dépenses à fond perdu, c'est pourquoi j'essaye d'optimiser au mieux pour faciliter le travail de chacun et obtenir les meilleurs prix de chaque intervenant. J'ai besoin d'être guidé pour cela.

Pour un architecte assurant la MOE, devrais-je compter 6000€ pour le suivi et la même chose pour les plans ?
(Le suivi ne concernerait que la structure, soit plancher + Charpente + fenêtres -> hors d'eau, hors d'air).
N'est-il pas aussi fortement recommandé de missionner également un bureau de contrôle ?

Concernant l'ordre des choses j'imagine procéder de la manière suivante :
1- Consulter les entreprises pour voir si je suis dans les clous de mon budget ? Est-ce trop tôt en l'état ?
2- Si dans les clous, avant de me lancer il faudra que je valide officiellement avec la copro l'accord (avec conditions suspensives de faisabilité)
3- Déposer le permis de construire
4- Demander les aides éventuelles (bon je me fais peu d'illusions)
5- Valider les entreprises et lancer les travaux après ajustement des plans (du coup, avec l'archi) et démarches sur la DOE et la GPA
Est-ce le bon ordre ?
Merci d'avance.
Messages : Env. 20
Dept : Alpes Maritimes
Ancienneté : + de 8 ans
 
Membre ultra utile Env. 20000 message Alpes Maritimes
Picto recompense Membre ultra utile
Messages : Env. 20000
Dept : Alpes Maritimes
Ancienneté : + de 3 ans
 
Membre super utile Env. 3000 message Vesoul (70)
doriandoy, vous demanderez tout ça à votre architecte.
Picto recompense Membre super utile
Messages : Env. 3000
De : Vesoul (70)
Ancienneté : + de 13 ans
 
Env. 20 message Alpes Maritimes
Unsure

Merci quand même pour vos interventions. Mon intention n'a pas été de vous froisser.
Bien à vous.
Messages : Env. 20
Dept : Alpes Maritimes
Ancienneté : + de 8 ans
 
Membre ultra utile Env. 20000 message Alpes Maritimes
Aucun froissage pour ce qui me concerne doriandoy.

Mais certains projets nécessitent impérativement le recours à des professionnels.

Et ces projets doivent être réaliste notamment au niveau budgétaire.

Notamment la mission de l'architecte qui est un pourcentage du coût du chantier si on est en mission complète.

Souvent entre 10 et 15 % du message n'étant des travaux.

Ainsi votre estimation de 6000 Euros pour la mission de l'architecte ça ferait un montant du projet à 60 000 Euros si on est dans le bas de la fourchette.

Et votre estimation de 235 000 Euros pour un tel chantier en hauteur et en ville avec des accès compliqués, pour la création de presque 70 m² de surface de plancher, plus de 40 m² de terrasse, deux escaliers, vous êtes outrageusement optimiste.

Les terrasses coûtent extrêmement cher à créer par exemple.

Une chose que vous avez oublié de chiffrer par exemple, la protection à la pluie tout le long du chantier des appartements des niveaux inférieurs
Picto recompense Membre ultra utile
Messages : Env. 20000
Dept : Alpes Maritimes
Ancienneté : + de 3 ans
 
Env. 20 message Alpes Maritimes
Merci encore de votre réponse.

J'ai justement besoin du genre de réponse que vous venez de me donner pour savoir si déjà sur le plan budgétaire, je suis dans les clous ou dans les choux avant d'aller plus loin.

Pour la mise hors d'eau provisoire de chantier, j'aurais pensé que c'était de facto dans le prix de la charpente. Quid du cout en sus ?

Pour le suivi des travaux, étant donné que je pense réaliser moi-même le plus gros de l'aménagement intérieur (je l'ai fait pour l'étage inférieur), je me suis dit qu'il fallait exclure cette partie pour ne garder que ce qui impacte directement la copro. C'est pas réaliste ?

Pour les travaux de la terrasse, je ferai à prix coutant pour ma partie, je me suis déjà arrangé sur ce point étant donné que c'est mon métier.
Messages : Env. 20
Dept : Alpes Maritimes
Ancienneté : + de 8 ans
 
Membre ultra utile Env. 20000 message Alpes Maritimes
La terrasse c'est la tenue structurelle et l'étanchéité qui coûtent chers.

Le reste c'est broutille.
Picto recompense Membre ultra utile
Messages : Env. 20000
Dept : Alpes Maritimes
Ancienneté : + de 3 ans
 
Membre utile Env. 600 message Seine Et Marne
Bonjour,

vous prenez à votre charge le coût supplémentaire de l'assurance qui sera affectée à l'ensemble de la copro une fois le projet finalisé ?

Et le coût de l'édition du nouveau règlement de copro ? (nouveaux tantièmes nouveau règlement)
Picto recompense Membre utile
Messages : Env. 600
Dept : Seine Et Marne
Ancienneté : + de 10 ans
 
Membre ultra utile Env. 6000 message Loire Atlantique
J'ai déjà réalisé par projet similaire. A l'époque c'était la RT2012 et les coûts étaient assez faramineux. Mais bon la personne pouvait se le permettre. Et pourtant je ne sais même plus si le projet avait été au bout (ou alors changement d'architecte). Ma mission se limitait à la RT2012 on avait refusé les missions de maîtrise d'oeuvre.

Pour les aides vous n'aurez rien. Extension RE2020 limitée à 50 m2. Comment allez vous déclarer l'autre partie ?

Attention aux démarches administratives : fermeture de rue, grue, assurance pour la copropriété...

Bref le budget annoncé n'est pas du tout en adéquation avec le projet à mon sens.
Picto recompense Membre ultra utile
Messages : Env. 6000
Dept : Loire Atlantique
Ancienneté : + de 5 ans
 
Membre utile Env. 400 message Haute Savoie
doriandoy a écrit:
Pour l'assurance DO, ok, donc c'est obligatoire mais ne sert à rien ... du coup en cas de souci, l'assurance des BE, archi, exécutants me couvre ou pas ??


Honnêtement, je n'ai jamais rencontré ce cas (DO engagée sur une rénovation). Mais il me semble hélas logique que l'assurance DO cherche toutes les pistes pour esquiver. Et quand ils vont se rendre compte qu'une partie de la structure a été réalisée en 1920, ils ne vont pas se gêner pour charger mémé...

doriandoy a écrit:Pour la question 6, je n'arrive pas à retrouver l'info des 14m². C'est en surface projetée ? (C'est à dire que si je baisse la toiture pour qu'en projection ça fasse moins de 14m² (entre le nouveau faitage et l'actuel), j'aurais le droit aux aides ?

Je pense que c'est en surface de plancher ajoutée après travaux.

L'info est à faire valider car je la tiens d'une capture d'écran d'un entretien avec un conseiller France Rénov. Authenticité non vérifiée. Je ne sais plus de quel site elle vient (peut-être d'ici), mais je l'avais conservée car elle m'avait interpellé. La voici :

Picto recompense Membre utile
Messages : Env. 400
Dept : Haute Savoie
Ancienneté : + de 2 ans
 
Membre super utile Env. 4000 message Bétheny (51)
Bonjour,
Achat des combles : Je négocie pour que cela soit une cession. Je m'occupe de la copro, des comptes, des petites réparations et les propriétaires sont contents de mes services.
Pour le moment, ils sont d'accord à ce que les combles me soient cédés mais... pas à la voisine. :S J'ai peur que ça coince un peu de ce côté là.
J'ai mis en avant que je payais une toiture neuve qui commence à présenter quelques faiblesses et que l'ajustement des tantièmes feraient qu'ils paieraient moins de charges et serait gagnants même à court terme.
Est-ce que votre projet a été voté en AG ?, car entre ce que les gens disent et ce qu'ils écrivent ce n'est pas la même chose, il suffit qu'un propriétaire vote contre, (la voisine) et cela capote. Est-ce qu'il y a un syndic (c'est long, je n'ai pas tout lu). Pour un projet de cette ampleur, il me semble qu'il faut la majorité absolue.
Picto recompense Membre super utile
Messages : Env. 4000
De : Bétheny (51)
Ancienneté : + de 9 ans
 
Env. 20 message Alpes Maritimes
Bonjour à tous,

Merci pour votre intérêt, je vais essayer de répondre dans l'ordre.

@Calète : Pour la structure de la terrasse, je pensais mettre des "I" acier hauteur 160mm pour des longueurs légèrement inférieures à 6 mètres.
Par contre je ne sais pas comment gérer ça. D'un coté j'ai un mur de refend et ça peut se poser dessus, de l'autre, j'ai une poutre béton mais je ne sais pas comment m'appuyer dessus car les pannes existantes qui sont  incorporées dans cette pour sont trop actuellement trop écartées (voir coupe CC, le lien dessous l'image pour une meilleure qualité) Pour créer la pente, mettre des oméga de tailles différentes (j'avais fait ça sur un chantier en réfection, mais c'était pour du bac acier).

D'où ma question sur la muralière. Puis-je me fixer dans la poutre béton existante ou c'est mort ??

Pour la partie OSB4 et étanchéité, ça me coutera le prix des matériaux et du gaz.

@Ma2t : Alors pour l'assurance, j'avais fait un devis car le cout d'assurance me paraissait très élevé (hors cadre des travaux à la base, comparativement à une autre copro que je suis de près et qui est équivalente en lot et surface) et en fait on passerait de 3500€/an à 1200€ ... Je crois que le Syndic nous banane sur ce post et prend un % conséquent.

Concernant les nouveaux tantièmes, j'ai bien prévu la venue du géomètre expert et la modification du règlement de copro.

Cartman44 :
C'est pas rassurant ce que tu dis, à composer avec (ou plutôt sans).
Moi j'avais compris qu'il y avait des normes pour extensions de 0-50m², d'autres pour 50-80m² et encore d'autres au-delà de 80m² d'extension.
(Je parle d'un guide sorti en janvier 2024 disponible sur le site du gouvernement)

Étant en deux phases (phase 1, ma partie - phase 2, la voisine), la nouvelle partie habitable ne serait que de 39.9m² donc sous les 50m² (mais on parle de 14m² quelques messages au-dessus... mais ça concerne les aides, les 50m² c'est pour les contraintes normatives). La voisine ferait les travaux dans 3-4 ans via un nouveau permis

Pour les démarches, je dois voir tout ça en effet (mais en général, les entreprises le font... la mienne le fait)

Pour le budget, ma venue ici a justement pour but (entre autre) de voir ça avant de consulter des entreprises (et de les embêter pour rien).

@Alfred74
Pour la DO, ça reste obligatoire en "rénovation" (mais est-ce à considérer en rénovation ?) ? Ou ça porte un autre nom ? (comme une assurance spécifique de chantier ?)

Merci pour la capture d'écran, se poste une vraie question du coup : Puis-je considérer que l'agrandissement que je fais est dans le voume déjà bâti ? J'ai tendance à dire que non, ou du moins, c'est vrai mais qu'en parti du plancher ?

@raym5108
Non, pas en AG et effectivement, entre ce que les gens disent et font ...
La loi a semble-t-il changé, il faut les 2/3 et non plus l'unanimité comme avant. Pour le moment 100% sont d'accord.

Concernant le syndic, il est question de ne plus le garder et que je devienne syndic bénévole (à la demande des autres copropriétaires, j'ai pas dit non, mais j'ai pas dit oui).
Messages : Env. 20
Dept : Alpes Maritimes
Ancienneté : + de 8 ans
 
Membre ultra utile Env. 20000 message Alpes Maritimes
Blablabla rrrrrzzzzz rrrrrzzzzz rrrrrzzzzz.

Arrêtez de penser à des choses côté structure, les professionnels ont les compétences voulues.

Pourriez vous être d'avantage concis svp ?
Picto recompense Membre ultra utile
Messages : Env. 20000
Dept : Alpes Maritimes
Ancienneté : + de 3 ans
 
Env. 20 message Alpes Maritimes
Pourriez vous être d'avantage agréable svp ? ;)

J'essaye de comprendre les choses, est-ce un mal ?
Messages : Env. 20
Dept : Alpes Maritimes
Ancienneté : + de 8 ans
 
Membre ultra utile Env. 20000 message Alpes Maritimes
doriandoy a écrit:Pourriez vous être d'avantage agréable svp ? ;)

J'essaye de comprendre les choses, est-ce un mal ?

Avec un massage du dos et des petits bisous ?

doriandoy élu du jour.
Picto recompense Membre ultra utile
Messages : Env. 20000
Dept : Alpes Maritimes
Ancienneté : + de 3 ans
 
Membre utile Env. 400 message Haute Savoie
doriandoy a écrit:@Alfred74
Pour la DO, ça reste obligatoire en "rénovation" (mais est-ce à considérer en rénovation ?) ? Ou ça porte un autre nom ? (comme une assurance spécifique de chantier ?)

Merci pour la capture d'écran, se poste une vraie question du coup : Puis-je considérer que l'agrandissement que je fais est dans le voume déjà bâti ? J'ai tendance à dire que non, ou du moins, c'est vrai mais qu'en parti du plancher ?

Vous prévoyez une surélévation d'environ 2m, si j'ai bien compris. Donc votre projet ne pourra pas être considéré dans le volume bâti.
De plus, toutes les surfaces qui sont < 1,80m de haut dans l'existant vont basculer en surface de plancher avec la nouvelle hauteur sous plafond. Les 14m² de tolérance (si cette info est vérifiée, j'insiste) seront largement explosés.

Pour la DO, je vous ai exposé ma vision des choses plus haut. Mais dans votre cas, je crains que vous ne soyez pas maître du jeu. Le syndic de copro va vraisemblablement vous l'imposer. Sans parler de la banque si vous faites un prêt (les banques aussi peuvent vous imposer la DO).
Picto recompense Membre utile
Messages : Env. 400
Dept : Haute Savoie
Ancienneté : + de 2 ans
 
Membre ultra utile Env. 20000 message Alpes Maritimes
La question de la DO ne se pose pas.

La loi l'impose.
Picto recompense Membre ultra utile
Messages : Env. 20000
Dept : Alpes Maritimes
Ancienneté : + de 3 ans
 
Env. 20 message Alpes Maritimes
Bonjour,

Je souhaite être bien couvert mais n'était pas sûr que ca portait le nom de DO dans mon cas. Mais du coup si elle ne sert à rien puisqu'il se défausseront, comment etre sûr d'être bien couvert ?

Il y a aussi la garantie de parfait achèvement que je souhaite intégrer mais je ne sais pas comment ça fonctionne (s'il y a des choses à savoir, autant être au courant avant)

Alfred74 a écrit:
doriandoy a écrit:@Alfred74
Pour la DO, ça reste obligatoire en "rénovation" (mais est-ce à considérer en rénovation ?) ? Ou ça porte un autre nom ? (comme une assurance spécifique de chantier ?)

Merci pour la capture d'écran, se poste une vraie question du coup : Puis-je considérer que l'agrandissement que je fais est dans le voume déjà bâti ? J'ai tendance à dire que non, ou du moins, c'est vrai mais qu'en parti du plancher ?

Vous prévoyez une surélévation d'environ 2m, si j'ai bien compris. Donc votre projet ne pourra pas être considéré dans le volume bâti.
De plus, toutes les surfaces qui sont < 1,80m de haut dans l'existant vont basculer en surface de plancher avec la nouvelle hauteur sous plafond. Les 14m² de tolérance (si cette info est vérifiée, j'insiste) seront largement explosés.

Pour la DO, je vous ai exposé ma vision des choses plus haut. Mais dans votre cas, je crains que vous ne soyez pas maître du jeu. Le syndic de copro va vraisemblablement vous l'imposer. Sans parler de la banque si vous faites un prêt (les banques aussi peuvent vous imposer la DO).
Messages : Env. 20
Dept : Alpes Maritimes
Ancienneté : + de 8 ans
 
Membre super utile Env. 3000 message Vesoul (70)
Bonjour doriandoy,

Si vous voulez réussir votre projet, voici le déroulé à suivre (liste non-exhaustive) :
  1. Contracter avec un(e) architecte pour une étude de faisabilité. Vous payerez cette étude, sûrement avec un BET Structure, mais vous saurez où vous irez.
  2. Provoquez une AG extraordinaire de la copropriété pour présenter votre projet avec l'étude de faisabilité. Votre architecte pourra être présent(e) pour le faire et répondre aux questions.
  3. Si refus du syndicat de copropriétés, ça se termine là. Si acceptation, la mission de l'architecte se prolonge au minimum jusqu'à l'obtention du PC. Néanmoins, la copropriété peut ou même devrait vous imposer une mission complète pour l'architecte.
  4. Souscription d'une DO obligatoire avant le commencement des travaux car vous touchez des éléments de structure (la charpente) et vous ajoutez de la portance à l'immeuble (étude de sol possiblement à prévoir)
  5. Mission de l'architecte : PC… rédaction des marchés de travaux (PRO-DCE avec EXE structure au minimum)… choix des entreprises par vous-mêmes mais assisté par l'architecte (ACT)… suivi de chantier par l'architecte (VISA et DET)… Réception des travaux (AOR)
  6. Passage d'un géomètre-expert pour nouveau calcul des tantièmes de la copropriété et intervention d'un(e) notaire pour la refonte du règlement de copropriété. Le tout reste toujours à vos frais.

Spoonman, MOE
Picto recompense Membre super utile
Messages : Env. 3000
De : Vesoul (70)
Ancienneté : + de 13 ans
 
Membre super utile Env. 20000 message St Pierre Les Nemours (77)
La garantie de parfait achèvement est obligatoire pourles entreprises, elles doivent pendant 1 an après la réception intervenir au moindre problème, c'est en quelque sorte du SAV.
Maître d'oeuvre - CSPS
Picto recompense Membre super utile
Messages : Env. 20000
De : St Pierre Les Nemours (77)
Ancienneté : + de 21 ans
 
Env. 20 message Alpes Maritimes
jpaul a écrit:La garantie de parfait achèvement est obligatoire pourles entreprises, elles doivent pendant 1 an après la réception intervenir au moindre problème, c'est en quelque sorte du SAV.

Je dois confondre avec autre chose.

En gros une assurance qui prend le relai en cas de faillite de l'entreprise en cours de chantier (ou s'il y a abandon de chantier). Je ne suis pas sûr de son nom. La DO couvre ça ?
Messages : Env. 20
Dept : Alpes Maritimes
Ancienneté : + de 8 ans
 
Membre super utile Env. 20000 message St Pierre Les Nemours (77)
Non
Maître d'oeuvre - CSPS
Picto recompense Membre super utile
Messages : Env. 20000
De : St Pierre Les Nemours (77)
Ancienneté : + de 21 ans
 
Env. 20 message Alpes Maritimes
Bonjour à tous,

Alors voici les nouvelles, il y a quelques complications.

Le chantier doit respecter certains principes pour éviter des études lourdes :

1- La surface du plancher créé ne doit pas dépasser 30% du SHON existant (c'est une vieille notion mais le rajout se fait sur ce principe. De ce coté là, on est bon. Surface habitable actuelle : 254m² projet + 62m² < 30%

2- Le rajout de poids de la surélévation ne doit pas dépasser 10% du niveau inférieur qui tient cette surélévation.

En comptant à la louche, on est à  70-90 tonnes à mon niveau au-dessus de mon plancher bas. Ce qui fait au mieux 9 tonnes de rajout.

Si je dépose la charpente et le plancher haut, on enlève 15-17 tonnes ce qui fait un projet global d'environ 22-26 tonnes ... Le hic, c'est j'ai calculé le poids de tous les matériaux qui me semblent nécessaires (en me basant sur les fiches techniques de tous les matériaux ainsi que les plans selon des principes traditionnels) et j'arrive à ... 49 tonnes ... Oups.

Je vais me tourner vers un BE qui me trouvera peut-être une solution de charpente industrielle plus légère en espérant avoir été très pessimiste sur mes calculs.

Si je ne rentre pas dans les clous niveaux poids, cela va imposer des renforcement structurels qui risque de ne pas rendre le projet viable sur le plan économique.
Messages : Env. 20
Dept : Alpes Maritimes
Ancienneté : + de 8 ans
 
Env. 7000 message 06 (6)
Bonjour

Sympa ce projet, doriandoy, s'il se réalise. Je ne sais pas où c'est, mais certainement dans une zone où le m² de logement coute cher ...

Je vois que vous êtes très motivé, comme quelqu'un vous l'a dit.

Et je comprends la démarche : avant de vous lancer (éventuellement), et financer, vous essayez de savoir le plus possible, et à l'avance, où ça peut vous mener.

En fait, vous vous réalisez une sorte de pré-étude de faisabilité.

Si vous trouvez déjà un blocage (peut-être le fameux poids ?), vous pourriez ainsi abandonner, sans frais.

Sinon, vous pourriez lancer la première étude comme vous le propose spoonman.
A partir de là, il faudra financer cette première étude, et sans être totalement sûr que ça aboutira.

"La vie est l'acte qui fait qu'on doit choisir avant de savoir" disait je ne sais plus qui.

Et à propos de la DO : elle sera obligatoire, sur les travaux neufs. C'est à dire sur ce qui sera fait de neuf.
Si les travaux neufs abîment l'existant, les dommages sur l'ancien ne relèvent pas de l'obligation de la DO.
En fait, ça sera la RC des constructeurs (et peut-être la votre).
Mais les assureurs proposent en option de la DO obligatoire, une garantie dite "facultative" des dommages aux existants, que vous pourriez souscrire en plus.

Pour avoir une garantie de bonne fin du chantier, donnée souvent par une banque, il faut monter un super dossier, avec des intervenants super fiables (super-chers), qui ne risquent pas de faire faillite.
Mon avis, non professionnel, ne peut servir d’étude pour une réalisation.
Messages : Env. 7000
De : 06 (6)
Ancienneté : + de 10 ans
 
Env. 20 message Alpes Maritimes
Bonjour,

Merci pour vos renseignements.
On va essayer de faire ce dossier béton ^^

Je suis allé voir vendredi un charpentier avec qui j'ai déjà eu affaire pour un précédent chantier personnel. Il travaille avec des majors et est implanté depuis des décennies dans la région.

Il m'a rassuré quant à la faisabilité de la chose par rapport aux contraintes de poids. On a vu la méthodologie pour la mise hors d'eau et le phasage. Il faut que je vois une entreprise pour la mise en place de l'échafaudage qui est plus compliqué à installer coté nord car il doit reposer sur un toit en tôle. (Voir la possibilité de n'adapter quelque chose uniquement sur mon balcon).

Par ailleurs, il a soulevé un point très important qui modifie la coupe AA.
Sur l'immeuble mitoyen, il y a un renfoncement qui est environ un mètre au-dessus de ma toiture. Si je surélève tel quel, je bloque l'eau dans ce renfoncement qui n'est peut-être pas évacué autrement que passant sur ma toiture.

Par chance, ce renfoncement se situe intégralement au nord du faitage. La solution est donc de créer un toit-terrasse inaccessible qui sera plus bas que ce renfoncement. Il y a pas mal de marge pour gérer la pente.

Le patron ma très bien accueilli, j'attends son offre de prix et espère faire à nouveau affaire avec lui.

Il ne s'occupe pas de la partie béton pour le chainage périphérique ni de la pose de l'encadrement pierre des chiens-assis. Je vais voir un G.O. pour ces points (j'en connais quelques uns)

Ces deux gros points de budget validés, je pousserai le truc plus loin avec le bureau d'étude et l'archi si ça passe dans mon estimation.
Messages : Env. 20
Dept : Alpes Maritimes
Ancienneté : + de 8 ans
En cache depuis le mercredi 03 décembre 2025 à 18h34
Ce sujet vous a-t-il aidé ?
0
0

Picto forum C'est intéressant aussi !

Devis aménagement de comblesArtisan
Devis aménagement de combles
Demandez, en 5 minutes, 3 devis comparatifs aux professionnels de votre région. Gratuit et sans engagement.
8 conseils pour bien aménager ses combles perdus
8 conseils pour bien aménager ses combles perdus
Les guides vous aident à y voir plus clair sur la construction.
Photos de décoration de combles
Photos de décoration de combles
Picorez des idées en parcourant les photos des constructions des autres !
7
abonnés
surveillent ce sujet

Picto forum Autres discussions sur ce sujet :

Voir