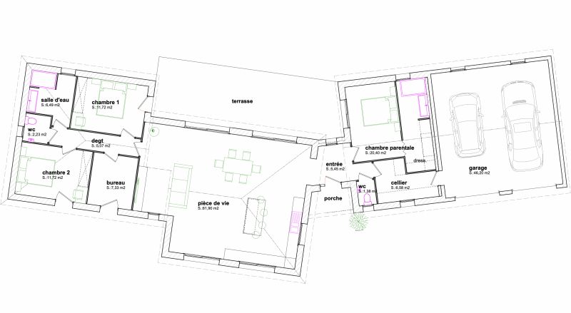
Aide sur plan en fonction du terrain
Ce sujet comporte 4 messages et a été affiché 184 fois
Nouveau sujet
Répondre
|
2 abonnés surveillent ce sujet |
Membre utile
Membre utileEn cache depuis le samedi 29 novembre 2025 à 00h44
Ce sujet vous a-t-il aidé ?
0
Votez !
0
Votez !
C'est intéressant aussi !
Devis plan de maison
Demandez, en 5 minutes, 3 devis comparatifs aux professionnels de votre région. Gratuit et sans engagement.
Demandez, en 5 minutes, 3 devis comparatifs aux professionnels de votre région. Gratuit et sans engagement.
25 erreurs à éviter dans son plan de maison
Les guides vous aident à y voir plus clair sur la construction.
Les guides vous aident à y voir plus clair sur la construction.
Tour de France : 10 constructions typiques de nos régions ...
L'équipe de Forum Construire sélectionne pour vous les plus belles photos des membres et du web.
L'équipe de Forum Construire sélectionne pour vous les plus belles photos des membres et du web.
2
abonnés
surveillent ce sujet
surveillent ce sujet
Autres discussions sur ce sujet :
-
Vos conseils pour l'implantation de ma construction sur terrain et l'optimisation de mon avant-projet
2 réponses Forum Plans de maisons -
Garage intégré au volume de la construction
3 réponses Forum Plans de maisons -
terrain en lotissement comment faire son plan ?
2 réponses Forum Plans de maisons
Résolu -
Avis plan maison et orientation sur terrain en longueur
4 réponses Forum Plans de maisons
Résolu -
Avis plan maison R+1 sur un terrain de 630m²
50 réponses Forum Plans de maisons -
Avis implantation maison R+1 toit en Zone ABF
3 réponses Forum Plans de maisons -
Positionnement de la maison sur terrain de 1400 m2 sachant que le voisin aura une maison à étage
0 réponses Forum Plans de maisons -
Comment trouver (lire) les cotes de niveau de la maison en demi-niveau
2 réponses Forum Plans de maisons -
Plan maison pp de 110m² à rénover avec chambre en enfilade
2 réponses Forum Plans de maisons




Nouveau sujet
Répondre




C'est intéressant aussi !




Autres discussions sur ce sujet :
Résolu