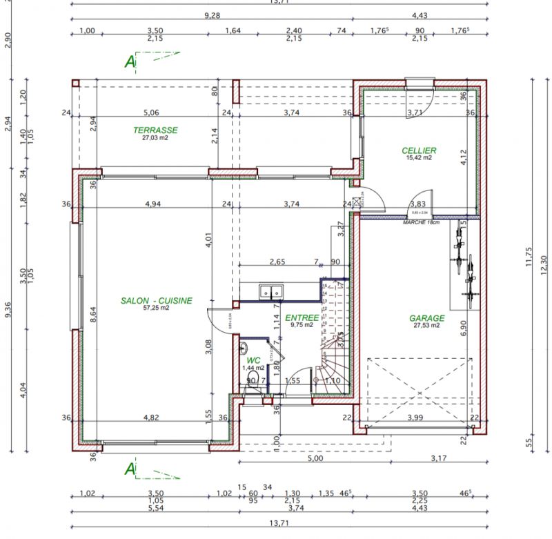
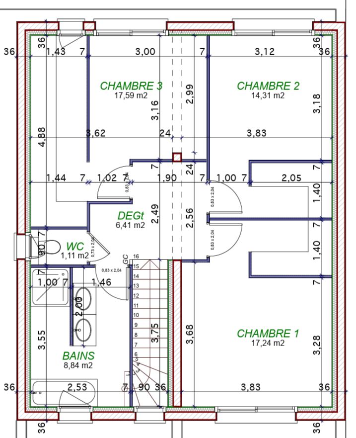
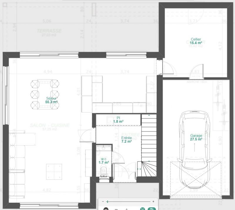
Optimisation du plan de ma maison
Ce sujet comporte 18 messages et a été affiché 236 fois
Nouveau sujet
Répondre
|
4 abonnés surveillent ce sujet |
Membre ultra utile
Membre utile
Membre utile
Membre utile
Membre utile
Membre ultra utile
Membre utile
Membre utile
Membre super utile
Membre super utileEn cache depuis le jeudi 30 avril 2026 à 02h57
Ce sujet vous a-t-il aidé ?
0
Votez !
0
Votez !
C'est intéressant aussi !
Devis plan de maison
Demandez, en 5 minutes, 3 devis comparatifs aux professionnels de votre région. Gratuit et sans engagement.
Demandez, en 5 minutes, 3 devis comparatifs aux professionnels de votre région. Gratuit et sans engagement.
25 erreurs à éviter dans son plan de maison
Les guides vous aident à y voir plus clair sur la construction.
Les guides vous aident à y voir plus clair sur la construction.
Les 10 maisons les plus extraordinaires des membres ...
L'équipe de Forum Construire sélectionne pour vous les plus belles photos des membres et du web.
L'équipe de Forum Construire sélectionne pour vous les plus belles photos des membres et du web.
4
abonnés
surveillent ce sujet
surveillent ce sujet
Autres discussions sur ce sujet :
-
Distance entre murs porteurs ?
17 réponses Forum Plans de maisons -
Voici mon projet dans le 39 ( rt 2012 pour objectif)
17 réponses Forum Plans de maisons -
Un premier jet de plan de maison en V
17 réponses Forum Plans de maisons
Résolu -
Avis sur un plan de maison sous-sol/RdC/Etage
17 réponses Forum Plans de maisons -
Avis plan maison SSOL+R+1 sur pente 15% orienté S-O
17 réponses Forum Plans de maisons -
Projet - Plain Pied de 170m² environ - Moselle 57
17 réponses Forum Plans de maisons -
Aide concevoir plan maison plain pied
17 réponses Forum Plans de maisons -
Avis plan maison pp plus extension (total 89m2)
17 réponses Forum Plans de maisons -
Paradoxe protection solaire avancée de terrasse
17 réponses Forum Plans de maisons




Nouveau sujet
Répondre






Edité 1 fois, la dernière fois il y a +6 mois.
C'est intéressant aussi !




Autres discussions sur ce sujet :
Résolu