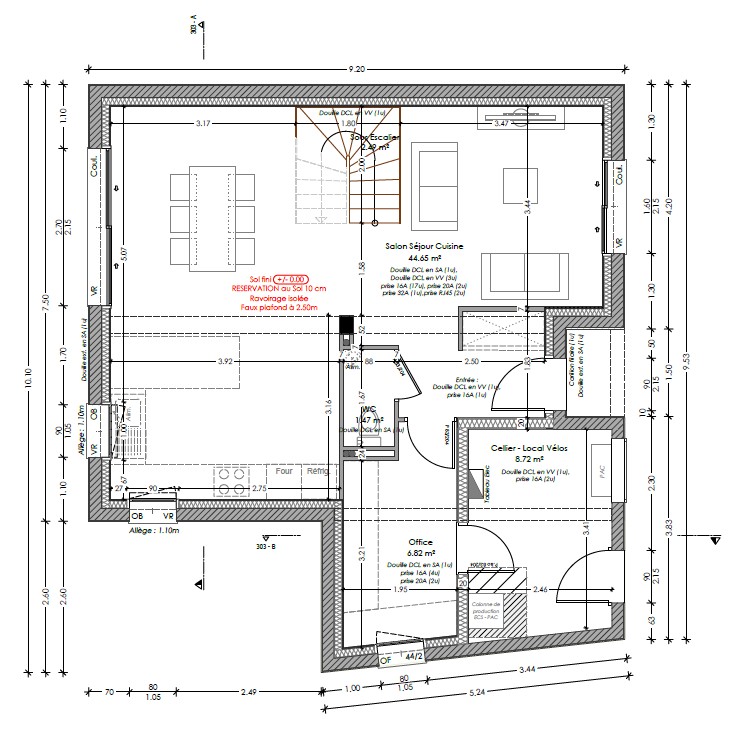
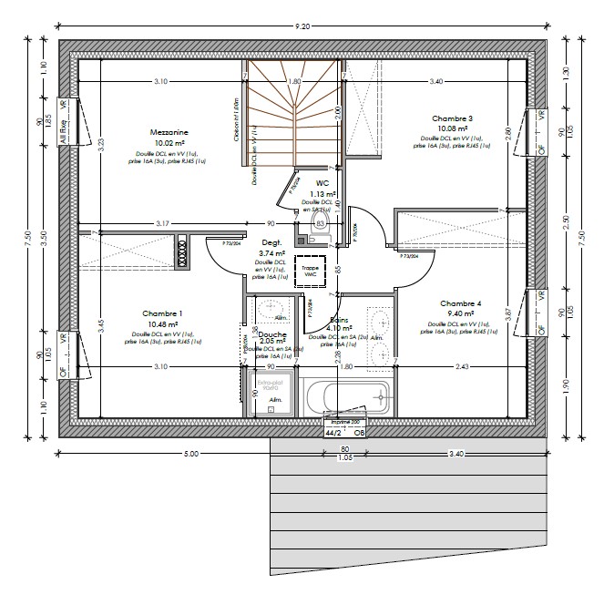
Bonjour j'aimerais avoir des avis sur les plans de ma maison avant validation.
Ce sujet comporte 8 messages et a été affiché 203 fois
Nouveau sujet
Répondre
|
2 abonnés surveillent ce sujet |
Membre utile
Membre utile
Membre super utile
Membre utile
Membre super utileEn cache depuis le dimanche 26 avril 2026 à 01h48
Ce sujet vous a-t-il aidé ?
0
Votez !
0
Votez !
C'est intéressant aussi !
Devis plan de maison
Demandez, en 5 minutes, 3 devis comparatifs aux professionnels de votre région. Gratuit et sans engagement.
Demandez, en 5 minutes, 3 devis comparatifs aux professionnels de votre région. Gratuit et sans engagement.
25 erreurs à éviter dans son plan de maison
Les guides vous aident à y voir plus clair sur la construction.
Les guides vous aident à y voir plus clair sur la construction.
Les 10 maisons les plus extraordinaires des membres ...
L'équipe de Forum Construire sélectionne pour vous les plus belles photos des membres et du web.
L'équipe de Forum Construire sélectionne pour vous les plus belles photos des membres et du web.
2
abonnés
surveillent ce sujet
surveillent ce sujet
Autres discussions sur ce sujet :
-
Avis plans maison 230 m2 / 2 Etages, renovation ancien hangar agricole
5 réponses Forum Plans de maisons -
Position fenêtre de toit dans salle de bain
7 réponses Forum Plans de maisons -
Vos avis/conseils sur le plan de notre première maison
7 réponses Forum Plans de maisons -
Avis et conseils plans version 1 maison traditionnelle
3 réponses Forum Plans de maisons -
Avis sur les plans d'une maison compacte R+Combles aménagés.
9 réponses Forum Plans de maisons -
Avis plans maison sud de le France et optimisations
4 réponses Forum Plans de maisons -
Avis plans maison R+1 99M2
166 réponses Forum Plans de maisons -
Sondage Emplacement Toilettes - Dans salle de bain ou Pièce Isolée?
7 réponses Forum Plans de maisons -
maison 6 chambres.. Plain pied ou à étages..
7 réponses Forum Plans de maisons




Nouveau sujet
Répondre





Edité 1 fois, la dernière fois il y a +6 mois.
C'est intéressant aussi !




Autres discussions sur ce sujet :