Avis sur plan de maison R+1
Ce sujet comporte 8 messages et a été affiché 182 fois
Nouveau sujet
Répondre
|
2 abonnés surveillent ce sujet |
Membre utile
Membre utile
Membre utile
Membre utile
Membre utileEn cache depuis le mardi 28 avril 2026 à 19h29
Ce sujet vous a-t-il aidé ?
0
Votez !
0
Votez !
C'est intéressant aussi !
Devis plan de maison
Demandez, en 5 minutes, 3 devis comparatifs aux professionnels de votre région. Gratuit et sans engagement.
Demandez, en 5 minutes, 3 devis comparatifs aux professionnels de votre région. Gratuit et sans engagement.
25 erreurs à éviter dans son plan de maison
Les guides vous aident à y voir plus clair sur la construction.
Les guides vous aident à y voir plus clair sur la construction.
Tour de France : 10 constructions typiques de nos régions ...
L'équipe de Forum Construire sélectionne pour vous les plus belles photos des membres et du web.
L'équipe de Forum Construire sélectionne pour vous les plus belles photos des membres et du web.
2
abonnés
surveillent ce sujet
surveillent ce sujet
Autres discussions sur ce sujet :
-
Aide pour plan de maison plain pied 4 chambres
4 réponses Forum Plans de maisons -
maison 6 chambres.. Plain pied ou à étages..
7 réponses Forum Plans de maisons -
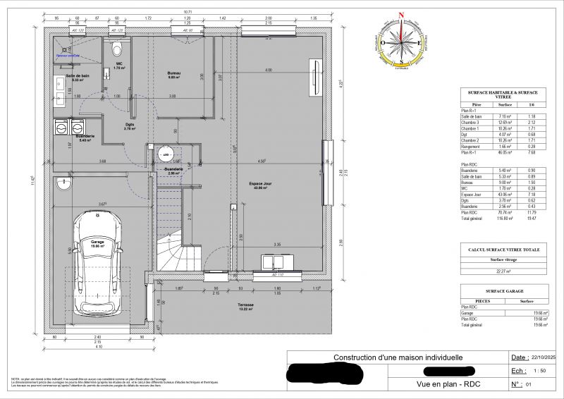
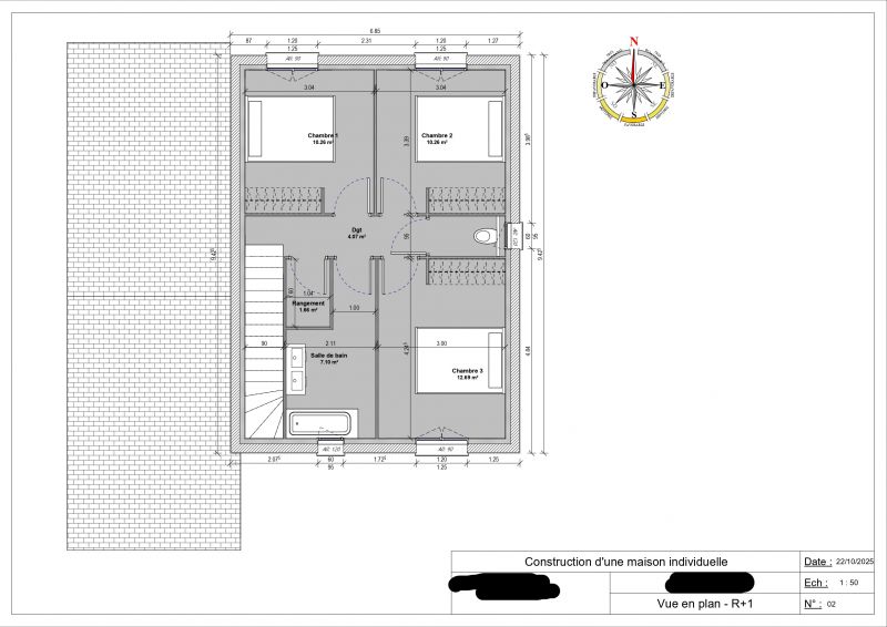
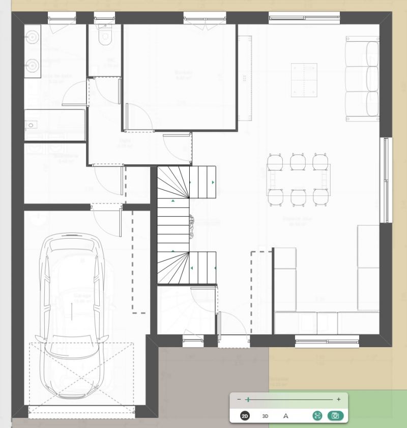
Bonjour j'aimerais avoir des avis sur les plans de ma maison avant validation.
7 réponses Forum Plans de maisons -
Recherche logiciel (gratuit !) pour plan 3D
7 réponses Forum Plans de maisons -
VEFA : avis sur grille de ventilation basse (VB) parking
7 réponses Forum Plans de maisons -
Avis plan de maison individuelle pour diminution surface
4 réponses Forum Plans de maisons -
Avis plan maison R+1 de 180m2 - jardin orienté vers le Nord
8 réponses Forum Plans de maisons -
plan maison étage 100 m² + suite parentale + garage
7 réponses Forum Plans de maisons -
Avis plan maison 110/115 m2 sur terrain légèrement en pente
4 réponses Forum Plans de maisons




Nouveau sujet
Répondre





Edité 1 fois, la dernière fois il y a +5 mois.




C'est intéressant aussi !




Autres discussions sur ce sujet :