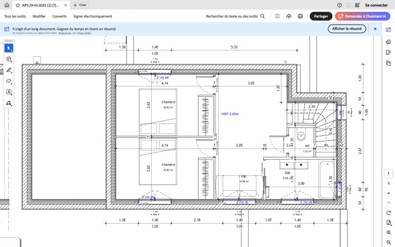
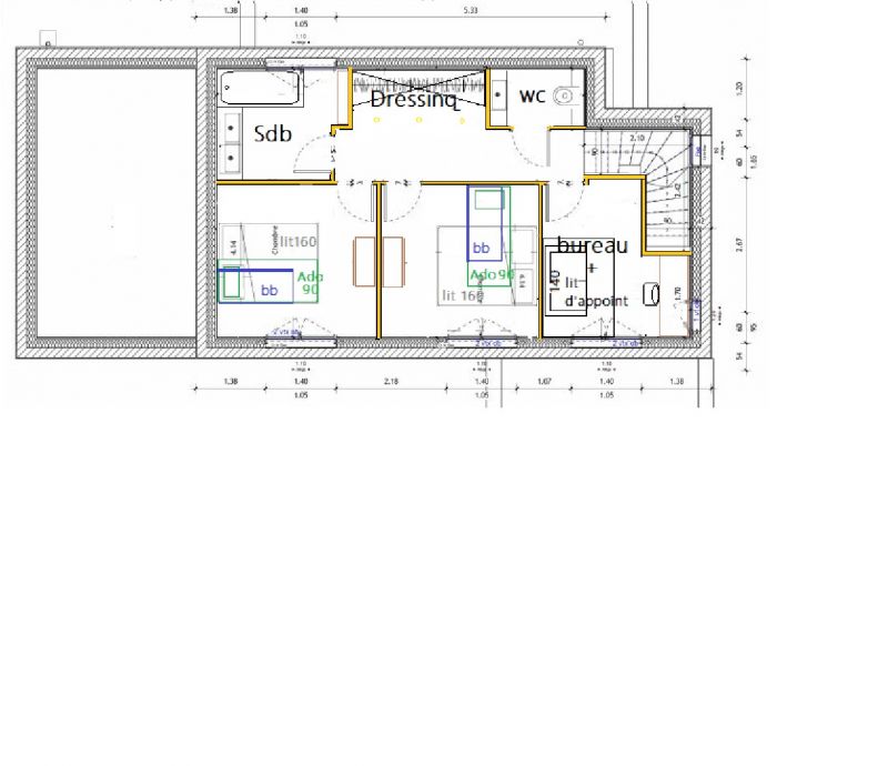
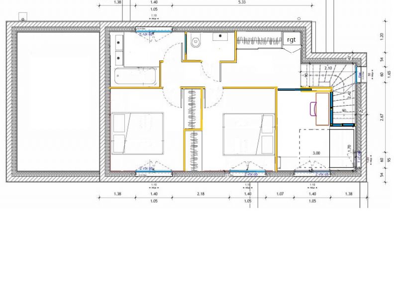
Aménagement / cloisonnement R+1.
Ce sujet comporte 11 messages et a été affiché 286 fois
Nouveau sujet
Répondre
|
3 abonnés surveillent ce sujet |
Membre utile
Membre super utile
Membre utile
Membre super utile
Membre utileEn cache depuis le vendredi 20 février 2026 à 15h24
Ce sujet vous a-t-il aidé ?
0
Votez !
0
Votez !
C'est intéressant aussi !
Devis plan de maison
Demandez, en 5 minutes, 3 devis comparatifs aux professionnels de votre région. Gratuit et sans engagement.
Demandez, en 5 minutes, 3 devis comparatifs aux professionnels de votre région. Gratuit et sans engagement.
25 erreurs à éviter dans son plan de maison
Les guides vous aident à y voir plus clair sur la construction.
Les guides vous aident à y voir plus clair sur la construction.
Les 10 maisons les plus extraordinaires des membres ...
L'équipe de Forum Construire sélectionne pour vous les plus belles photos des membres et du web.
L'équipe de Forum Construire sélectionne pour vous les plus belles photos des membres et du web.
3
abonnés
surveillent ce sujet
surveillent ce sujet
Autres discussions sur ce sujet :
-
Votre avis : aménagement d'une pièce de vie + chambre
54 réponses Forum Plans de maisons -
Plan de maison 125 m² sur sous sol
597 réponses Forum Plans de maisons
Résolu -
Demande d'aide pour plans/aménagement de l'étage
87 réponses Forum Plans de maisons
Résolu -
Aménagement cuisine ouverte sur séjour.
87 réponses Forum Plans de maisons -
Conception plan de maison
1 réponses Forum Plans de maisons
Résolu -
Maison contemporaine en charente maritime : permis déposé !
518 réponses Forum Plans de maisons -
Plan maison 110m2
10 réponses Forum Plans de maisons -
JCBW : Avis maison contemporaine R+1 140m² (Garage finalement construit en même temps --> Aménagement à faire )
225 réponses Forum Plans de maisons -
Aménagement pièce mansardé en bureau
4 réponses Forum Plans de maisons




Nouveau sujet
Répondre






C'est intéressant aussi !




Autres discussions sur ce sujet :
Résolu