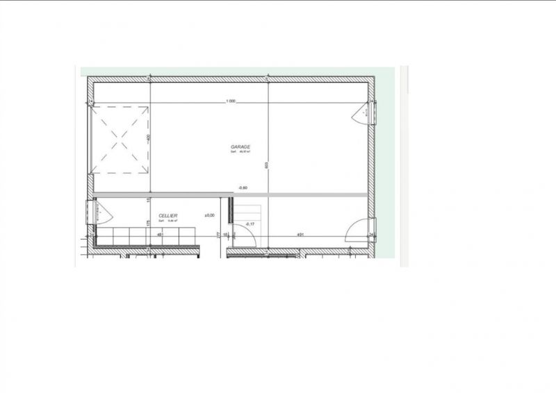
Dalle béton garage sur plancher hourdis
Ce sujet comporte 8 messages et a été affiché 121 fois
Nouveau sujet
Répondre
|
1 personne surveille ce sujet |
Membre ultra utile
Membre ultra utile
Membre ultra utile
Membre ultra utile
Membre ultra utileEn cache depuis hier à 18h36
Ce sujet vous a-t-il aidé ?
0
Votez !
0
Votez !
C'est intéressant aussi !
Devis fondations
Demandez, en 5 minutes, 3 devis comparatifs aux professionnels de votre région. Gratuit et sans engagement.
Demandez, en 5 minutes, 3 devis comparatifs aux professionnels de votre région. Gratuit et sans engagement.
1
personne
surveille ce sujet
surveille ce sujet
Autres discussions sur ce sujet :
-
Dalle, combien de temps apres...
19 réponses Forum Bâtiment et maçonnerie -
Séchage des fondations
20 réponses Forum Bâtiment et maçonnerie -
Epaisseur plancher poutrelle/hourdis pour garage
8 réponses Forum Bâtiment et maçonnerie -
Dalle ou chape sur tout venant dans sous-sol
6 réponses Forum Bâtiment et maçonnerie -
Fondations et argile
6 réponses Forum Bâtiment et maçonnerie -
En général dans le garage et le sous sol pas de chappe donc
3 réponses Forum Bâtiment et maçonnerie -
plancher bois sur une dalle de garage (hauteur 15 cm)
3 réponses Forum Bâtiment et maçonnerie -
Chape béton pour surélever plancher garage
2 réponses Forum Bâtiment et maçonnerie -
Quelle fondation choisir avec deux études de sol contradictoires ?
16 réponses Forum Bâtiment et maçonnerie -
Pour avis : plancher garage
30 réponses Forum Bâtiment et maçonnerie
Résolu




Nouveau sujet
Répondre




[/url]
C'est intéressant aussi !




Autres discussions sur ce sujet :
Résolu