Retour
Menu utilisateur
Menu

Présentation du projet :


Avant-projet février 2025

Bonjour
Nous allons construire bientôt,
de préférence un plain-pieds, avec 3 chambres (2+une suite parentale) sur le terrain N°1 du plan partagé dans mes photos.
Je suis actuellement en contact avec "quelques" constructeurs pour étudier leurs propositions.
Le terrain est en pente et il faudra probablement faire un demi-niveau pour ne pas avoir l'ouest de la maison "suspendu".
L'entrée devra se faire par le haut, à l'Est.
La maison sera bien exposée au sud.
Si vous avez des idées ou des réflexions sur l'implantation, je suis preneur.
Merci

Info nov 2025: Rajout d'un étage, avec Espace jeux + un bureau et grenier...

Picto list Sommaire du récit :

Picto list Photos du récit :

Option de lecture :

Le récit de la construction :

Option de lecture :
 
Membre super utile Env. 1000 message Morbihan
Bonjour,

J'ai construit aussi sur Guidel il y 6 ans, les fameux 60% de toiture deux pans on y a eu le droit aussi, dans quel coin de Guidel, lotissement à priori? Vous avez déjà eu des projets avec les constructeurs?
Picto recompense Membre super utile
Messages : Env. 1000
Dept : Morbihan
Ancienneté : + de 12 ans
 
DC56520 Picto info Auteur du sujet
Bloggeur Env. 20 message Guidel (56)
Morgane56 a écrit:Bonjour,

J'ai construit aussi sur Guidel il y 6 ans, les fameux 60% de toiture deux pans on y a eu le droit aussi, dans quel coin de Guidel, lotissement à priori? Vous avez déjà eu des projets avec les constructeurs?

Bonjour 
Le lotissement est celui du "domaine de la Laïta" anciennement PratFoen Nord.
J'ai actuellement trois études d'implantation par des constructeurs en CCMI. Lamotte, Arteco, et CBI.
Picto recompense Bloggeur
Messages : Env. 20
De : Guidel (56)
Ancienneté : + de 1 an
 
Membre super utile Env. 1000 message Morbihan
Arteco fait des maisons assez qualitatives et avec des bons avis dans le coin, Lamotte on est plus dans l'entrée de gamme, CBI connait juste de nom.

Le plain pied c'est pour une raison spécifique?
Picto recompense Membre super utile
Messages : Env. 1000
Dept : Morbihan
Ancienneté : + de 12 ans
 
DC56520 Picto info Auteur du sujet
Bloggeur Env. 20 message Guidel (56)
Morgane56 a écrit:Arteco fait des maisons assez qualitatives et avec des bons avis dans le coin, Lamotte on est plus dans l'entrée de gamme, CBI connait juste de nom.

Le plain pied c'est pour une raison spécifique?

Nous avons déjà fonctionné en plain-pied et on aimait bien.
Le pb, c'est qu'avec la pente, il faudra surement un 1/2 niveau.



Sinon, comme sur ce schéma, trop de hauteur en bout de terrasse (Ouest) avant nivellement.
Il faudra surement descendre d'1.5m la partie gauche de cette "maquette" (Ouest). L'entrée et l'accroche de la maison devant impérativement se faire à droite (Est)
Picto recompense Bloggeur
Messages : Env. 20
De : Guidel (56)
Ancienneté : + de 1 an
 
DC56520 Picto info Auteur du sujet
Bloggeur Env. 20 message Guidel (56)


Bonjour 
Sur une grille Excel, j'ai fait une tentative de répartition sur le terrain. Maison en L de Plain pied.
La pente du terrain va probablement imposer un demi niveau avec un escalier de quelques marches au niveau des pointillés.
La réglementation oblige à 60% de toit sur la partie traditionnelle avec toit double pente et accroche de maison à droite (Est) avec double place de parking extérieur non déplaçable...
La partie droite sera plus haute (mais avec toit plat) car le terrain descend de l'est vers l'ouest 
Picto recompense Bloggeur
Messages : Env. 20
De : Guidel (56)
Ancienneté : + de 1 an
 
DC56520 Picto info Auteur du sujet
Bloggeur Env. 20 message Guidel (56)
Bonjour
La maison étant de plain-pied, j'ai des propositions avec un plafond cathédrale à l'ouest sur le séjour, avec une mezzanine. La mezzanine est intéressante pour une pièce supplémentaire au-dessus, mais le chauffage et les accès d'entretien pour le plafond cathédrale m'inquiète...
Picto recompense Bloggeur
Messages : Env. 20
De : Guidel (56)
Ancienneté : + de 1 an
 
DC56520 Picto info Auteur du sujet
Bloggeur Env. 20 message Guidel (56)
Morgane56 a écrit:Arteco fait des maisons assez qualitatives et avec des bons avis dans le coin, Lamotte on est plus dans l'entrée de gamme, CBI connait juste de nom.

Le plain pied c'est pour une raison spécifique?



Bonjour

Pour info, je regarde aussi les maisons et propositions Be Home (Maho, à Baud).
Picto recompense Bloggeur
Messages : Env. 20
De : Guidel (56)
Ancienneté : + de 1 an
 
DC56520 Picto info Auteur du sujet
Bloggeur Env. 20 message Guidel (56)
Bonjour
Avant de me lancer dans la construction de la maison, je cherche à connaitre le coût d'une terrasse d'une cinquantaine de m2 sur vide sanitaire, avant revêtement et rambardes, d'une hauteur moyenne de 1m. Les constructeurs en CCMI ne semblent pas très motivés par cette prestation et certains de leurs devis pour cette options sont très élevés...Meerci
Picto recompense Bloggeur
Messages : Env. 20
De : Guidel (56)
Ancienneté : + de 1 an
 
Membre super utile Env. 1000 message Morbihan
Bonjour, de quel ordre de prix sont les devis pour la terrasse ?
Picto recompense Membre super utile
Messages : Env. 1000
Dept : Morbihan
Ancienneté : + de 12 ans
 
DC56520 Picto info Auteur du sujet
Bloggeur Env. 20 message Guidel (56)
Morgane56 a écrit:Bonjour, de quel ordre de prix sont les devis pour la terrasse ?

Bonjour Morgane
Dans les 24 000 euros, avec un escalier béton de 8 marches, sans les rambardes et revêtement mais avec les enduits de côté...
Picto recompense Bloggeur
Messages : Env. 20
De : Guidel (56)
Ancienneté : + de 1 an
Article

« Signature CCMI ARTECO Lorient oct 25 »

Préparation > Choix du constructeur Par DC56520 le 30/10/2025 à 10h30
Plan d'implantation de la maison sur le terrain

Bonjour 
30 oct 25
Après plusieurs mois de contacts et d'études du projet, nous avons signé hier, notre contrat de construction avec ARTECO Lorient.
Le commercial d'Arteco, Monsieur GUILLEVIC, a su répondre à nos attentes, dans le budget convenu, pour notre maison de Guidel.
Les deux autres constructeurs avaient également bien travaillé sur le projet ("Lamotte" maisons individuelles Lorient 56 et "Be Home" Baud 56) mais ont pris du retard dans l'élaboration du projet.
L'implantation de notre maison dans le terrain, légèrement en pente, est optimisée par l'utilisation d'un demi niveau.
Nous avons également rajouté 2 pièces à l'étage, non prévues à l'origine mais finalement bien utiles dans l'optimisation de cette construction 
DC

#arteco
Edité 1 fois, la dernière fois il y a +6 mois.
Picto recompense Bloggeur
Messages : Env. 20
De : Guidel (56)
Ancienneté : + de 1 an
 
Membre utile Env. 900 message Var
DC56520

Bonjour,

Tout d'abord vous etes donc dans les 10 jours de réflexions donc de rétractation encore possible.
En effet un constructeur est la pour vendre avec son "commercial", car pour la construction de votre habitations ils passeront par des sous traitants pour tous les lots.

Vous auriez du poster l'ensemble, plan de masse avec orientation + plan de maison définitif du pc afin d'avoir des avis sur vos plans.

  Enfin, sachant que vous passez par un constructeur avez vous, ou ont il bien tout détaillé :

  Prévu les visites techniques , notamment aux étapes importantes ( par exemple avant la pose du placo, afin de vérifier la presence et la bonne mise en place de l'isolant si ITI).

    Lors du terrassement :évacuation des terres
  Implantation maison (avec chaise), délais de séchages (mini 28 jours) pour les fondations et dalles,
  detaillés le type d'isolation, marques/modeles exact des equipements techniques ( chauffage,ECS, VMC), et pas d'inscription "ou équivalent".
  Lors de mise en place des vidanges de 100 dans le vide sanitaire, ont il prévu de les fixer aux murs du vs (et en complement fixer au plancher ) ou de le jeter au sol ?

    Enfin prenez le temps de bien relire votre ccmi
Edité 2 fois, la dernière fois il y a +6 mois.
Picto recompense Membre utile
Messages : Env. 900
Dept : Var
Ancienneté : + de 1 an
 
DC56520 Picto info Auteur du sujet
Bloggeur Env. 20 message Guidel (56)
Merci pour les informations 
Fabienvar a écrit:DC56520

Bonjour,

Tout d'abord vous etes donc dans les 10 jours de réflexions donc de rétractation encore possible.
En effet un constructeur est la pour vendre, car pour la construction de votre habitations ils passeront par des sous traitants pour tous les lots.

Vous auriez du poster l'ensemble, plan de masse avec orientation + plan de maison définitif du pc afin d'avoir des avis sur vos plans.

  Enfin, sachant que vous passez par un constructeur avez vous, ou ont il bien tout détaillé :

  Prévu les visites techniques , notamment aux étapes importantes ( par exemple avant la pose du placo, afin de vérifier la presence et la bonne mise en place de l'isolant si ITI).

    Lors du terrassement :évacuation des terres
  Implantation maison (avec chaise), délais de séchages (mini 28 jours) pour les fondations et dalles,
  detaillés le type d'isolation, marques/modeles exact des equipements techniques ( chauffage,ECS, VMC)
  Lors de mise en place des vidanges de 100 dans le vide sanitaire, ont il prévu de les fixer aux murs du vs (et en complement fixer au plancher ) ou de le jeter au sol ?

    Enfin prenez le temps de bien relire votre ccmi
Picto recompense Bloggeur
Messages : Env. 20
De : Guidel (56)
Ancienneté : + de 1 an
Article

« Plans pour permis de construire »

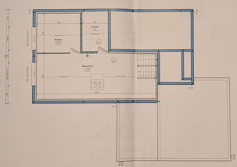
Préparation > Plan de maison Par DC56520 le 31/10/2025 à 07h26





Bonjour
Voici les plans qui vont être présentés pour le dépôt de PC.

Si vous avez des remarques.

Je vous rappelle l'intérêt du demi niveau pour optimiser l'implantation de la maison dans le terrain légèrement en pente.
Picto recompense Bloggeur
Messages : Env. 20
De : Guidel (56)
Ancienneté : + de 1 an
 
Membre utile Env. 900 message Var
DC56520

Bonjour,

Juste un petit détail pour la sdb 2 : ouverture de la porte dans l'autre sens , pour que la porte s'ouvre contre les wc, afin qu'ouverte elle n'obture pas l'entrée de la chambre.

Sur la partie toit plat, cela engendrerai un cout mais j'aurais implanté des panneaux Photovoltaiques.
Picto recompense Membre utile
Messages : Env. 900
Dept : Var
Ancienneté : + de 1 an
 
DC56520 Picto info Auteur du sujet
Bloggeur Env. 20 message Guidel (56)
Merci beaucoup Fabienvar pour tes informations 👍
Fabienvar a écrit:DC56520

Bonjour,

Juste un petit détail pour la sdb 2 : ouverture de la porte dans l'autre sens , pour que la porte s'ouvre contre les wc, afin qu'ouverte elle n'obture pas l'entrée de la chambre.

Sur la partie toit plat, cela engendrerai un cout mais j'aurais implanté des panneaux Photovoltaiques.
Picto recompense Bloggeur
Messages : Env. 20
De : Guidel (56)
Ancienneté : + de 1 an
Article

« Maquette au 1/30eme (en Lego) »

Préparation > Plan de maison Par DC56520 le 08/11/2025 à 18h46
Bonjour 
<br />
Les plans en 2D et aussi en 3D sont importants, mais une maquette réelle peut aussi avoir son  utilité. J'avais un stock de Lego de mes enfants et j'ai pu réaliser une construction au 1/30eme pour étudier des modifications éventuelles.

Bonjour 
Les plans en 2D et aussi en 3D sont importants, mais une maquette réelle peut aussi avoir son utilité. J'avais un stock de Lego de mes enfants et j'ai pu réaliser une construction au 1/30eme pour étudier des modifications éventuelles.
Picto recompense Bloggeur
Messages : Env. 20
De : Guidel (56)
Ancienneté : + de 1 an
Article

« Aménagement et Évacuations eaux »

Gros oeuvre > Terrassement Par DC56520 le 11/11/2025 à 15h20
Bonjour 
Le lotissement est dans sa phase d'aménagement.
Les grosses canalisations sont posées dans les rues.
Sur le plan d'aménagement, les évacuations des eaux pluviales et eaux usées devaient se faire à l'est (point 1), j'ai demandé aux responsables URBATYS de faire ces branchements au sud ouest, dans la partie la plus basse du terrain. Cela à été fait. Sans cette modification j'allais être dépendant de pompes pour relever de 2,5 mètres mes eaux pluviales et usés, pas très écologique et surtout exposé aux pannes.
Sur le plan, en rouge les deux lieux, l'ancien et le nouveau.
Les évacuations à l'est étaient pour s'aligner sur les 6 autres terrains existants mais comme l'ensemble des grosses canalisations passent au sud, le point bas est facilement accessible.

Picto recompense Bloggeur
Messages : Env. 20
De : Guidel (56)
Ancienneté : + de 1 an
Article

« Re: Aménagement et Évacuations eaux »

Gros oeuvre > Terrassement Par DC56520 le 11/11/2025 à 15h44
Achat immobilier neuf Grand Ouest | Urbatys Promoteur https://share.google/D2StuSN1QJPfTQ6SY

https://www.urbatys.com/programme/le-domaine-de-la-laita-guidel/
DC56520 a écrit:Bonjour 
Le lotissement est dans sa phase d'aménagement.
Les grosses canalisations sont posées dans les rues.
Sur le plan d'aménagement, les évacuations des eaux pluviales et eaux usées devaient se faire à l'est (point 1), j'ai demandé aux responsables URBATYS de faire ces branchements au sud ouest, dans la partie la plus basse du terrain. Cela à été fait. Sans cette modification j'allais être dépendant de pompes pour relever de 2,5 mètres mes eaux pluviales et usés, pas très écologique et surtout exposé aux pannes.
Sur le plan, en rouge les deux lieux, l'ancien et le nouveau.
Les évacuations à l'est étaient pour s'aligner sur les 6 autres terrains existants mais comme l'ensemble des grosses canalisations passent au sud, le point bas est facilement accessible.

Picto recompense Bloggeur
Messages : Env. 20
De : Guidel (56)
Ancienneté : + de 1 an
Article

« Re: Signature CCMI ARTECO Lorient oct 25 »

Préparation > Choix du constructeur Par DC56520 le 17/12/2025 à 19h26
Bonjour 
Mauvaise nouvelle, le lotisseur annonce trois mois de retard pour la livraison des terrains.
Les PCMI 09 et 10 devront attendre.
A priori... Retards des branchements Enedis sur le lotissement qui posent problème....
Échéances fin mars 26 au lieu de fin décembre 25.

Il faut rajouter les délais du permis de construire et d'affichage...

Si vous connaissez la réglementation et les usages pour ces délais je suis intéressé, merci.

DC56520 a écrit:Plan d'implantation de la maison sur le terrain

Bonjour 
30 oct 25
Après plusieurs mois de contacts et d'études du projet, nous avons signé hier, notre contrat de construction avec ARTECO Lorient.
Le commercial d'Arteco, Monsieur GUILLEVIC, a su répondre à nos attentes, dans le budget convenu, pour notre maison de Guidel.
Les deux autres constructeurs avaient également bien travaillé sur le projet ("Lamotte" maisons individuelles Lorient 56 et "Be Home" Baud 56) mais ont pris du retard dans l'élaboration du projet.
L'implantation de notre maison dans le terrain, légèrement en pente, est optimisée par l'utilisation d'un demi niveau.
Nous avons également rajouté 2 pièces à l'étage, non prévues à l'origine mais finalement bien utiles dans l'optimisation de cette construction 
DC

#arteco
Picto recompense Bloggeur
Messages : Env. 20
De : Guidel (56)
Ancienneté : + de 1 an
Article

« Choix des matériaux dans le cadre du CCMI »

Préparation > Plan de maison Par DC56520 le 25/02/2026 à 23h10
Bonjour 
Projet d'escalier pour accéder aux étages en 1/2 niveaux.

Nous commençons à choisir des éléments comme le carrelage, plancher contrecollé, escalier...

Le choix de l'escalier auprès de la société Groupe Riaux nous motivent pour un ensemble de ce type.
Nous attendons le surcoût par rapport à la proposition de base du contrat avec le constructeur.

Le plancher contrecollé de chez Panaget en faible épaisseur (pour le plancher chauffant) du salon séjour cuisine a notre préférence 
Picto recompense Bloggeur
Messages : Env. 20
De : Guidel (56)
Ancienneté : + de 1 an
Article

« Dépôt du PC »

Préparation > Permis de construire Par DC56520 le 12/05/2026 à 07h40
Le PC est déposé en mairie, les aménagements de la voirie par le lotisseur Urbatys ont amené la société ARTECO à adapté les plans pour optimiser l'implantation sur le terrain.
Picto recompense Bloggeur
Messages : Env. 20
De : Guidel (56)
Ancienneté : + de 1 an
 
DC56520 Picto info Auteur du sujet
Bloggeur Env. 20 message Guidel (56)


Finalement, après intervention sur les voiries du lotissement et les courbes de niveau, le dénivelé est bien moindre par rapport à mon schéma basique d'il y a un an. 😀
DC56520 a écrit:
Morgane56 a écrit:Arteco fait des maisons assez qualitatives et avec des bons avis dans le coin, Lamotte on est plus dans l'entrée de gamme, CBI connait juste de nom.

Le plain pied c'est pour une raison spécifique?

Nous avons déjà fonctionné en plain-pied et on aimait bien.
Le pb, c'est qu'avec la pente, il faudra surement un 1/2 niveau.



Sinon, comme sur ce schéma, trop de hauteur en bout de terrasse (Ouest) avant nivellement.
Il faudra surement descendre d'1.5m la partie gauche de cette "maquette" (Ouest). L'entrée et l'accroche de la maison devant impérativement se faire à droite (Est)
Picto recompense Bloggeur
Messages : Env. 20
De : Guidel (56)
Ancienneté : + de 1 an
 
DC56520 Picto info Auteur du sujet
Bloggeur Env. 20 message Guidel (56)
DC56520 a écrit:
Morgane56 a écrit:Bonjour, de quel ordre de prix sont les devis pour la terrasse ?

Bonjour Morgane
Dans les 24 000 euros, avec un escalier béton de 8 marches, sans les rambardes et revêtement mais avec les enduits de côté...

Bonjour
Bonne nouvelle, plus besoin de terrasse surélevée. Le dénivelé est beaucoup moins impactant. Plus besoin d'une structure de terrasse avec vide sanitaire et rambardes de sécurité couteuses. Terrasse classique sur le sol.
Picto recompense Bloggeur
Messages : Env. 20
De : Guidel (56)
Ancienneté : + de 1 an

En rapport avec cette page :

Devis construction de maisonArtisan
Devis construction de maison
Demandez, en 5 minutes, 3 devis comparatifs aux professionnels de votre région. Gratuit et sans engagement.
MAP (mise au point technique) : comment la préparer et la réussir ?
MAP (mise au point technique) : comment la préparer ...
Les guides vous aident à y voir plus clair sur la construction.
Les 10 maisons les plus extraordinaires des membres de Forum Construire
Les 10 maisons les plus extraordinaires des membres ...
L'équipe de Forum Construire sélectionne pour vous les plus belles photos des membres et du web.
Calculette construction gratuite !
Calculette construction gratuite !
Découvrez les outils et services exclusifs de ForumConstruire.com

Autres récits de construction :

  • notre seconde maison
     56  Notre seconde maison
    maison moderne de 150m2 avec une toiture en zinc
    Morbihan Par kathld56 199 mess.
  • c est partiiiiii
     56  C est partiiiiii !!!!!
    Bonjour, Je me presente, Stephanie nous venons de vendre notre premiere maison de plein pied et tout en toit plat et REPARTONS SUR UNE AUTRE MAISON ...
    Nostang (Morbihan) Par tazsauv 172 mess.
  • steel juke joint
     56  Steel Juke-Joint
    Ma future construction sera ma residence principale pour ma retraite prochaine. Elle sera en ossature metallique de forme globalement cubique, le toit ...
    Allaire (Morbihan) Par Alceste 91 mess.
  • maison monopente et cubes a pluneret
     56  Maison Monopente et Cubes à Pluneret
    Bonjour a toutes et a tous Fin decembre 2012: Nous sommes au debut du projet, on a achete un terrain d'environ 725m2 sur Pluneret. On travaille actuellement ...
    Pluneret (Morbihan) Par cmrugby 2931 mess.
  • construction bbc bohal 56
     56  Construction BBC Bohal (56)
    Bonjour a tous, Travaillant a Ploermel et ma femme a Vannes, nous avons decide de vendre notre premiere construction a Caden (56) afin de nous rapprocher ...
    Bohal (Morbihan) Par Arno56 129 mess.
  • maison toiture zinc dans le morbihan
     56  Maison, toiture zinc dans le Morbihan
    Bonjour a tous Nous avons decide de nous lancer dans un projet de construction sur la commune de Pluneret dans le morbihan. Notre projet est une maison ...
    Pluneret (Morbihan) Par Kalodrima 95 mess.
  • maison bois booa morbihan
     56  Maison bois BOOA Morbihan
    Notre Projet se porte sur une maison bois de plain pied Nous avons un budget de 315000 terrain compris.
    Languidic (Morbihan) Par jayjey36 112 mess.
8
abonnés
surveillent ce récit

"Construction à Guidel 56 début en 2025,2026"

Accueil du projet Sommaire du projet Photos du projet Derniers messages Partager
DC56520 Auteur : DC56520
Localisation du projet Lieu de la construction :
FRBretagneMorbihan Voir sur une carte
Informations sur le projet Informations sur le projet :
Type de travaux : Construction neuve
Type de construction : Plain pied + combles
Surface habitable : 118m² (4 pièces)
Superficie terrain : 509m²
Informations sur le projet Constructeur du projet :
Maisons Arteco
Lorient (56)
Raccourci internet du récit Raccourci internet
Aucun raccourci internet pour ce récit.
Voir