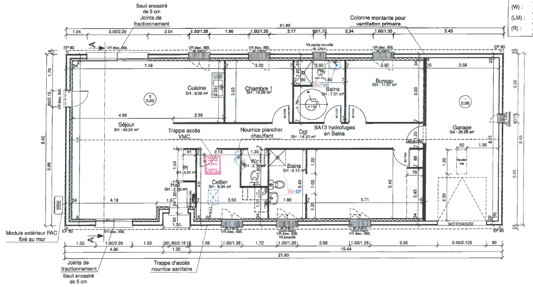
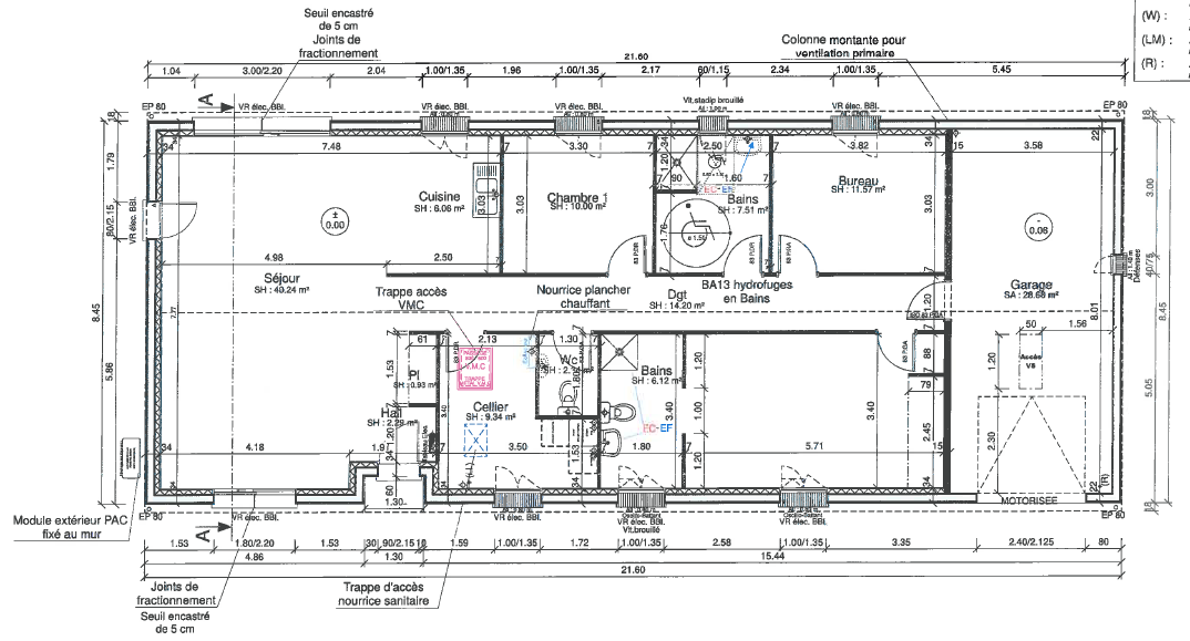
Avis sur plain pied de 130M²
Ce sujet comporte 17 messages et a été affiché 388 fois
Nouveau sujet
Répondre
|
7 abonnés surveillent ce sujet |
Membre sympa
Photographe
Membre utile
Membre ultra utile
Membre ultra utileEn cache depuis le dimanche 25 janvier 2026 à 00h36
Ce sujet vous a-t-il aidé ?
0
Votez !
0
Votez !
C'est intéressant aussi !
Devis plan de maison
Demandez, en 5 minutes, 3 devis comparatifs aux professionnels de votre région. Gratuit et sans engagement.
Demandez, en 5 minutes, 3 devis comparatifs aux professionnels de votre région. Gratuit et sans engagement.
25 erreurs à éviter dans son plan de maison
Les guides vous aident à y voir plus clair sur la construction.
Les guides vous aident à y voir plus clair sur la construction.
Tour de France : 10 constructions typiques de nos régions ...
L'équipe de Forum Construire sélectionne pour vous les plus belles photos des membres et du web.
L'équipe de Forum Construire sélectionne pour vous les plus belles photos des membres et du web.
7
abonnés
surveillent ce sujet
surveillent ce sujet
Autres discussions sur ce sujet :
-
Avis plan de maison plain pied de 93M2
17 réponses Forum Plans de maisons
Résolu -
Permis construire en cour de réalisation avis/conseil
16 réponses Forum Plans de maisons -
Besoin d’avis sur agencement
16 réponses Forum Plans de maisons -
Notre plan de maison plain-pied 108m2.
14 réponses Forum Plans de maisons -
Idee plan de maison 90m2 plain pied
15 réponses Forum Plans de maisons
Résolu -
Demande aide plan orientation et organisation différente des pièces
16 réponses Forum Plans de maisons -
Plan maison plain pied proche Castres
14 réponses Forum Plans de maisons -
Avis plan 120m² plain pied
13 réponses Forum Plans de maisons -
Avis Plan de mon appartement de 60 m2
16 réponses Forum Plans de maisons




Nouveau sujet
Répondre






C'est intéressant aussi !




Autres discussions sur ce sujet :
Résolu