Avis et conseils plans maison R+1 104M2 (57)
Ce sujet comporte 23 messages et a été affiché 336 fois
Nouveau sujet
Répondre
|
6 abonnés surveillent ce sujet |
Membre utile
Membre utile
Membre utile
Membre utile
Membre utile
Membre utile
Membre utile
Membre ultra utile
Membre ultra utile
Membre utile
Membre utile
Membre super utile
Membre utile
Membre utileEn cache depuis le dimanche 07 décembre 2025 à 04h22
Ce sujet vous a-t-il aidé ?
0
Votez !
0
Votez !
C'est intéressant aussi !
Devis plan de maison
Demandez, en 5 minutes, 3 devis comparatifs aux professionnels de votre région. Gratuit et sans engagement.
Demandez, en 5 minutes, 3 devis comparatifs aux professionnels de votre région. Gratuit et sans engagement.
25 erreurs à éviter dans son plan de maison
Les guides vous aident à y voir plus clair sur la construction.
Les guides vous aident à y voir plus clair sur la construction.
Tour de France : 10 constructions typiques de nos régions ...
L'équipe de Forum Construire sélectionne pour vous les plus belles photos des membres et du web.
L'équipe de Forum Construire sélectionne pour vous les plus belles photos des membres et du web.
6
abonnés
surveillent ce sujet
surveillent ce sujet
Autres discussions sur ce sujet :
-
Avis plans de maison sur terrain avec restanques dans le Sud-Est
145 réponses Forum Plans de maisons -
Section plans de maison : dernier avertissement avant bannissement
201 réponses Forum Plans de maisons -
Rénovation de petite maison (68m²) - Avis sur plans
117 réponses Forum Plans de maisons -
Avis et conseils pour maison R Combles - nouveaux plans p.9
144 réponses Forum Plans de maisons -
Chambre 7,4m2 c'est envisageable ?
23 réponses Forum Plans de maisons -
plans à valider pour un projet de construction d'une maison de 170 m2 moderne, aérée, spacieuse et revendable à l'avenir
2208 réponses Forum Plans de maisons -
Une chambre doit-elle comporter obligatoirement une ouverture (fenêtre) ?
19 réponses Forum Plans de maisons
Résolu -
Taille fenêtres étage
154 réponses Forum Plans de maisons -
Avis sur organisation intérieure
18 réponses Forum Plans de maisons




Nouveau sujet
Répondre






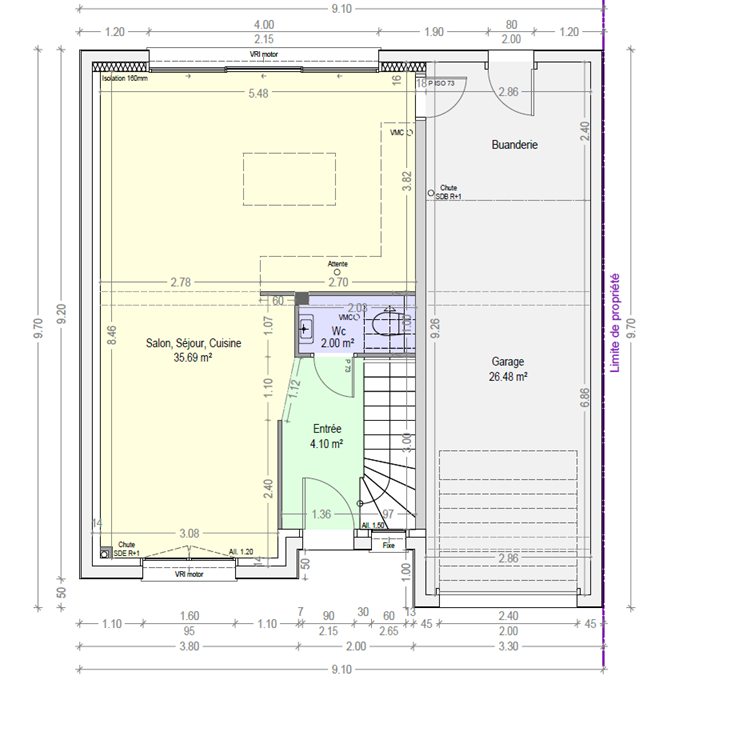
) louche ; 270cm en longueur pour une chambre me parait un minimum .




Edité 1 fois, la dernière fois il y a +6 mois.
C'est intéressant aussi !




Autres discussions sur ce sujet :
Résolu