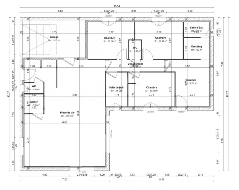
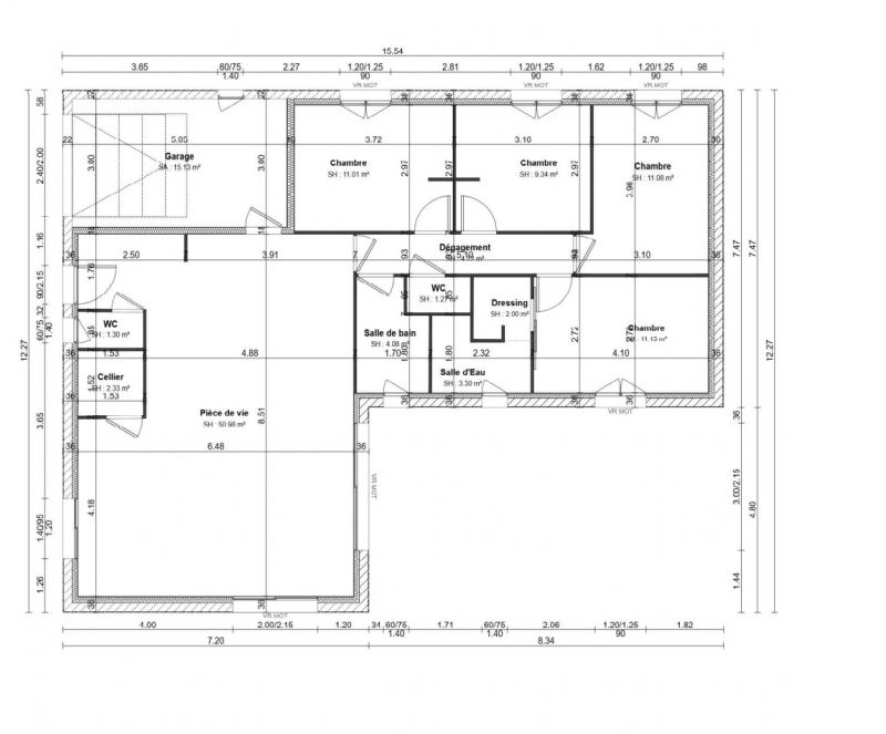
Avis plan maison plein pied 115 m2
Ce sujet comporte 16 messages et a été affiché 234 fois
Nouveau sujet
Répondre
|
4 abonnés surveillent ce sujet |
Membre utile
Membre super utile
Membre ultra utile
Membre super utile
Membre super utile
Membre utile
Membre super utile
Membre super utileEn cache depuis le jeudi 19 mars 2026 à 12h11
Ce sujet vous a-t-il aidé ?
0
Votez !
0
Votez !
C'est intéressant aussi !
Devis plan de maison
Demandez, en 5 minutes, 3 devis comparatifs aux professionnels de votre région. Gratuit et sans engagement.
Demandez, en 5 minutes, 3 devis comparatifs aux professionnels de votre région. Gratuit et sans engagement.
25 erreurs à éviter dans son plan de maison
Les guides vous aident à y voir plus clair sur la construction.
Les guides vous aident à y voir plus clair sur la construction.
Tour de France : 10 constructions typiques de nos régions ...
L'équipe de Forum Construire sélectionne pour vous les plus belles photos des membres et du web.
L'équipe de Forum Construire sélectionne pour vous les plus belles photos des membres et du web.
4
abonnés
surveillent ce sujet
surveillent ce sujet
Autres discussions sur ce sujet :
-
Création d'une chambre en bas
15 réponses Forum Plans de maisons -
Avis sur plan, problème agencement chambre parentale!
15 réponses Forum Plans de maisons -
Aide implantation maison 130m² sur terrain en forte pente 1175m²
15 réponses Forum Plans de maisons -
Critique plan amateur plain pied 150m² (avec garage)
16 réponses Forum Plans de maisons
Résolu -
Idee plan de maison 90m2 plain pied
15 réponses Forum Plans de maisons
Résolu -
plan maison plain pied proche Castres
14 réponses Forum Plans de maisons -
Votre avis éclairé sur maison 190 m2 orienté sud est
15 réponses Forum Plans de maisons
Résolu -
plan maison plein pied 109 m2 avis
15 réponses Forum Plans de maisons -
Avis plan - maison de plain pied 140m²
15 réponses Forum Plans de maisons




Nouveau sujet
Répondre



Edité 2 fois, la dernière fois il y a +5 mois.
au lieu de décaler la porte de 70cm pour faire un pan de mur




C'est intéressant aussi !




Autres discussions sur ce sujet :
Résolu