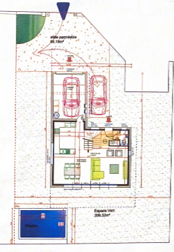
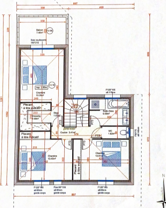
Demande d'avis sur les plans d'une maison T5
Ce sujet comporte 5 messages et a été affiché 186 fois
Nouveau sujet
Répondre
|
2 abonnés surveillent ce sujet |
Membre utile
Membre utile
Membre utileEn cache depuis hier à 18h24
Ce sujet vous a-t-il aidé ?
0
Votez !
0
Votez !
C'est intéressant aussi !
Devis plan de maison
Demandez, en 5 minutes, 3 devis comparatifs aux professionnels de votre région. Gratuit et sans engagement.
Demandez, en 5 minutes, 3 devis comparatifs aux professionnels de votre région. Gratuit et sans engagement.
25 erreurs à éviter dans son plan de maison
Les guides vous aident à y voir plus clair sur la construction.
Les guides vous aident à y voir plus clair sur la construction.
Les 10 maisons les plus extraordinaires des membres ...
L'équipe de Forum Construire sélectionne pour vous les plus belles photos des membres et du web.
L'équipe de Forum Construire sélectionne pour vous les plus belles photos des membres et du web.
2
abonnés
surveillent ce sujet
surveillent ce sujet
Autres discussions sur ce sujet :
-
Avis sur nos plans de maison neuve (132 m² R+1 – 3 chambres + suite parentale – CCMI)
16 réponses Forum Plans de maisons -
Plan de maison investissement locatif
1 réponses Forum Plans de maisons
Résolu -
Conseils pour cacher une poutre apparente
5 réponses Forum Plans de maisons -
Avis plans maison de plain pied 130 m2
213 réponses Forum Plans de maisons -
plans à valider pour un projet de construction d'une maison de 170 m2 moderne, aérée, spacieuse et revendable à l'avenir
2208 réponses Forum Plans de maisons -
Agrandissement et agencement de notre pièce à vivre
3 réponses Forum Plans de maisons -
Largeur du couloir menant aux chambres
4 réponses Forum Plans de maisons -
1ers plans de maison : besoin de vos conseils
228 réponses Forum Plans de maisons -
Avis plans maison R 1 130m² ( Avis Balcon et Info Terasse )
288 réponses Forum Plans de maisons




Nouveau sujet
Répondre







C'est intéressant aussi !




Autres discussions sur ce sujet :
Résolu